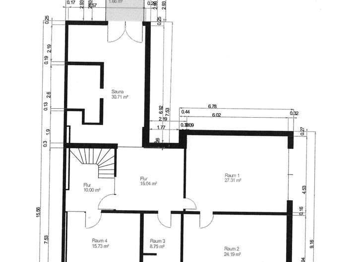
Der hier angebotene Bungalow ist ein Eckhaus mit entsprechend großem Grundstück. Er ist voll unterkellert, wobei fast alle Räume im Untergeschoss wohnlich ausgestattet und auch beheizt sind. Durch die Modellierung des Grundstückes sind an 2 Stellen große Fenster eingebaut worden, so dass die Räume auch über Tageslicht verfügen. Hier gibt es ein zusätzliches großes Wohn-/Schlafzimmer, diverse Nebenräume sowie eine Saunaanlage inkl. Tauchbecken. Außerdem kann man von hier direkt in den Garten gehen. Im Garten findet man einen Brunnen sowie einen Außenkamin und einen Zierteich mit kleiner Brücke.
Eck-Bungalow mit großem Grundstück und toller Gartenanlage
51149 Köln
Die vollständige Adresse der Immobilie erhalten Sie vom Anbieter.
Auf Karte anzeigen
Die vollständige Adresse der Immobilie erhalten Sie vom Anbieter.
Finanzierungszertifikat
In nur zwei Minuten zu Ihrem persönlichen Finanzierungszertifkat.
Infos
| Haustyp | Bungalow |
|---|---|
| Wohnfläche ca. | 176 m2 |
| Grundstücksfläche | 682 m2 |
| Zimmer | 6 |
| Garage/Stellplatz | Garage |
| Anzahl Garage/Stellplatz | 1 |
Kosten
| Kaufpreis |
638.000 € |
|---|---|
| Provision | Nein |
Finanzierungsrechner:
Kaufpreis:
600.000 €
Eigenkapital:
600.000 €
Monatliche Rate
0 €
Effektiver Jahreszins
0 %
Sollzinsbindung
10 Jahre
Bausubstanz & Energieausweis
| Baujahr | 1972 |
|---|---|
| Objektzustand | Gepflegt |
| Heizungsart | Zentralheizung |
| Wesentliche Energieträger | Gas |
| Energieausweis | liegt vor |
| Energieausweistyp | Verbrauchsausweis |
| Energieverbrauchskennwert | 187,6 kWh/(m²*a) |
| Energieeffizienzklasse | F |
187,6
kWh/(m²*a)
Energieeffizienzklasse F
- A+
- A
- B
- C
- D
- E
- F
- G
- H
- 0
- 25
- 50
- 75
- 100
- 125
- 150
- 175
- 200
- 225
- >250
Beschreibung des Objekts
Ausstattung
Die Beheizung sowie die Warmwasserversorgung des Bungalows erfolgen über eine modernisierte Zentralheizungsanlage. Fast alle Flächen im Haus wurden mit Parkett oder Laminat ausgestattet. Im Laufe der letzten Jahre haben diverse Modernisierungen stattgefunden. Die gesamte Wohn-Nutzfläche beträgt 261 m². Das Haus ist insgesamt sehr gepflegt und kann voraussichtlich im Februar / März 26 übernommen werden. Im Kaufpreis enthalten ist eine Garage in einem separaten Garagenhof.
Lage
Die Genter Straße liegt in einem sehr ruhigen reinen Wohngebiet im Stadtteil Eil bzw. Finkenberg. Die Erschließung mit öffentlichen Verkehrsmitteln ist optimal; sowohl zur S-Bahn als auch zur Straßenbahn Linie 7 gelangt man zu Fuß in wenigen Minuten. Durch die Nähe zur Flughafen-Autobahn A59 erreicht man mit dem Auto schnell die Kölner und auch die Bonner City sowie den Flughafen. Einkaufsmöglichkeiten (u.a. ein REWE-Markt) sind in der näheren Umgebung vorhanden; gleiches gilt für Schulen und Kindergärten.
Sonstige Angaben
** Eine Maklerprovision vom Käufer berechnen wir nicht! **
Wir bitten um diskrete Außenbesichtigung, bevor Sie mit uns einen Termin vereinbaren!
Die Ihnen hier mitgeteilten Daten sind nur für Sie bestimmt und vertraulich zu behandeln! Die Objektangaben erhalten wir in der Regel vom Verkäufer, eine Gewähr für deren Genauigkeit können wir deshalb nicht übernehmen. Der Zwischenverkauf bleibt vorbehalten!
*** Bitte berücksichtigen Sie, dass wir ein Exposé nur mit Ihrer vollständigen Anschrift versenden! ***
Adresse
51149 Köln
Interessante Orte
Preis- und Lageinformationen
Preistrend für Bestandsimmobilien in Finkenberg