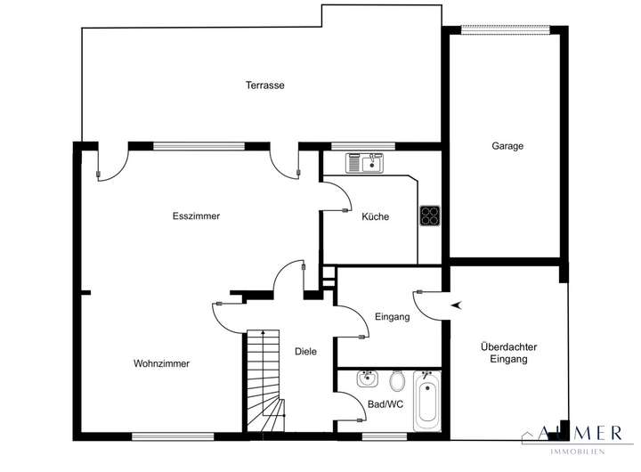
Willkommen in diesem großzügigen Einfamilienhaus auf einem Eckgrundstück von ca. 991 m², das viel Platz für die ganze Familie bietet. Die Wohnfläche von etwa 141 m² verteilt sich auf Erdgeschoss, Obergeschoss und Keller. Beim Betreten empfängt Sie ein großer Eingangsbereich mit Platz für Garderobe. Das helle Wohnzimmer ist großzügig geschnitten und durch einen eleganten Rundbogen mit dem offenen Essbereich verbunden. Von hier gelangen Sie direkt auf die Süd-/West-Terrasse von etwa 30–50 m², die gemeinsam mit dem gemauerten Grill perfekt für warme Sommerabende geeignet ist. Das Esszimmer verfügt zusätzlich über einen Kaminofen. Die separate, voll ausgestattete Küche bietet einen schönen Blick auf die Terrasse. Das Erdgeschoss wird durch ein helles Vollbad mit Duschwanne und Fenster abgerundet, das für angenehmen Tageslichteinfall sorgt.
Im Obergeschoss befinden sich zwei gleich große Zimmer, zwei kleinere Abstellräume und ein Gästezimmer sowie ein Bad mit Wanne und Dachfenster. Das Elternschlafzimmer verfügt über eine große Terrasse über der Garage, die einen ruhigen Rückzugsort im Freien bietet. Weitere kleine Räume im Obergeschoss können flexibel als Büro oder Hobbyzimmer genutzt werden.
Das Kellergeschoss erweitert den Wohnraum um Vorratsraum, Heizraum mit Gastherme und Warmwasserbehälter, Gästezimmer, Partyraum sowie eine kleine Werkstatt. Ein Außenzugang ermöglicht direkten Zugang zum Garten.
Ergänzt wird das Angebot durch eine Garage und einen zusätzlichen Außenstellplatz für Fahrzeuge.
Dieses Einfamilienhaus vereint helles, großzügiges Wohnen, flexible Nutzungsmöglichkeiten, Altbaucharme und moderne Technik. Die ruhige Lage, kombiniert mit guter Anbindung sowie vielfältigen Einkaufsmöglichkeiten, Schulen und Freizeitangeboten, macht das Objekt zu einem idealen Zuhause für Familien.
Familienfreundliches Einfamilienhaus mit Süd-/West-Terrasse und großem Garten
21435 Stelle
Die vollständige Adresse der Immobilie erhalten Sie vom Anbieter.
Auf Karte anzeigen
Die vollständige Adresse der Immobilie erhalten Sie vom Anbieter.
Finanzierungszertifikat
In nur zwei Minuten zu Ihrem persönlichen Finanzierungszertifkat.
Infos
| Haustyp | Einfamilienhaus |
|---|---|
| Wohnfläche ca. | 141 m2 |
| Grundstücksfläche | 991 m2 |
| Bezugsfrei ab | nach Vereinbarung |
| Zimmer | 5 |
| Schlafzimmer | 4 |
| Badezimmer | 2 |
| Garage/Stellplatz | Garage |
| Anzahl Garage/Stellplatz | 2 |
Kosten
| Kaufpreis |
479.000 € |
|---|---|
| Provision |
3,57% inkl. MwSt. vom Kaufpreis Der Maklervertrag mit uns kommt entweder durch schriftliche Vereinbarung oder auch durch die Inanspruchnahme unserer Maklertätigkeit auf der Basis des Objekt-Exposés und seiner Bedingungen zu Stande. Sollte das von uns nachgewiesene Objekt bereits bekannt sein, teilen Sie uns dieses bitte unverzüglich mit. Die Provision in Höhe von 3,57% auf den Kaufpreis inkl. MwSt. ist bei notariellem Vertragsabschluss fällig und vom Käufer an die Fa. Michael Aumer Immobilien, zu zahlen. |
Finanzierungsrechner:
Kaufpreis:
600.000 €
Eigenkapital:
600.000 €
Monatliche Rate
0 €
Effektiver Jahreszins
0 %
Sollzinsbindung
10 Jahre
Bausubstanz & Energieausweis
| Baujahr | 1962 |
|---|---|
| Heizungsart | Zentralheizung |
| Wesentliche Energieträger | Gas |
| Energieausweis | liegt vor |
| Energieausweistyp | Bedarfsausweis |
| Energieverbrauchskennwert | 217,3 kWh/(m²*a) |
| Energieeffizienzklasse | G |
217,3
kWh/(m²*a)
Energieeffizienzklasse G
- A+
- A
- B
- C
- D
- E
- F
- G
- H
- 0
- 25
- 50
- 75
- 100
- 125
- 150
- 175
- 200
- 225
- >250
Beschreibung des Objekts
Ausstattung
• Wohnfläche: ca. 141 m² auf Erdgeschoss, Dachgeschoss und Keller
• Grundstück: ca. 991 m², Eckgrundstück in ruhiger finnischer Siedlung
• Dach: klassisches Satteldach
• Erdgeschoss:
• Großzügiger Eingangsbereich mit Platz für Garderobe
• Helles Wohnzimmer, verbunden mit Essbereich über Rundbogen
• Süd-/West-Terrasse ca. 35 m² mit gemauertem Grill
• Separate Küche, voll ausgestattet (Einbauküche ca. 13 Jahre alt)
• Vollbad mit Fenster und Duschwanne
• Böden: Mischung aus Stäbchenparkett, Fliesen und Teppich
• Kaminofen im Essbereich
• Obergeschoss:
• 2 gleich große Zimmer (ca. 14 m²)
• 2 kleinere Räume als Abstellkammern oder Büronischen
• Gästezimmer
• Elternschlafzimmer mit großer Terrasse über Garage ca. 20 m² sowie einem kleinen begehbaren Raum
• Bad mit Wanne und Dachfenster
• Dachraum isoliert, Stauraum im Spitzboden
• Böden überwiegend Teppich
• Kellergeschoss:
• Vorratsraum
• Heizraum mit moderner Gastherme und Warmwasserbehälter
• Gästezimmer
• Kleine Werkstatt
• Außenzugang zum Garten
• Böden gefliest/Teppich
• Außenbereich:
• Große Terrasse mit Süd-/West-Ausrichtung im Erdgeschoss ideal für Sommerabende, mit gemauertem Grill
• Garage und Außenstellplatz für Fahrzeuge
• Großzügiger Garten
• Besonderheiten:
• Satteldach
• Lage in ruhiger finnischer Siedlung
Lage
Das Einfamilienhaus befindet sich im idyllischen Ortsteil Ashausen der Gemeinde Stelle. Die ruhige Wohnlage überzeugt durch ihre familiäre Atmosphäre, viel Grün und zugleich eine hervorragende Anbindung an die umliegenden Städte.
Infrastruktur und Einkaufsmöglichkeiten:
Der Ortskern von Ashausen entlang des Büllhorner Wegs ist fußläufig erreichbar. Hier finden Sie Lebensmittelgeschäfte wie Edeka, Bäckereien, eine Bank, Cafés und weitere Geschäfte des täglichen Bedarfs. Ärzte, Friseure sowie weitere Dienstleister sind mit dem Fahrrad in nur wenigen Minuten erreichbar. Für ein noch größeres Angebot sorgen die nahegelegene Stadt Winsen (Luhe) und weitere Orte der Umgebung mit Einkaufszentren, Fachgeschäften, Ärzten und Apotheken.
Bildung und Betreuung:
Kindergarten und Grundschule befinden sich nur etwa drei Fahrminuten von der Immobilie entfernt. Auch weiterführende Schulen und Betreuungseinrichtungen sind in den Nachbarorten gut erreichbar – ideal für Familien mit Kindern.
Verkehrsanbindung:
Die Anbindung an den öffentlichen Nahverkehr ist ausgezeichnet. Über den Bahnhof Ashausen gelangen Sie in unter 30 Minuten direkt zum Hamburger Hauptbahnhof oder nach Lüneburg. Die nächste Autobahnauffahrt ist nur etwa drei Minuten entfernt und führt auf die A39, über die Sie Hamburgs Innenstadt in rund 30 Minuten und Lüneburg in etwa 25 Minuten erreichen.
Freizeit und Erholung:
Ashausen bietet vielfältige Möglichkeiten zur Freizeitgestaltung. Zahlreiche Sportvereine befinden sich in unmittelbarer Nähe und sind fußläufig oder mit dem Fahrrad schnell erreicht. Ebenso laden die umliegenden Felder, Wiesen und Grünflächen zu Spaziergängen, Radtouren und Erholung im Freien ein. Die harmonische Kombination aus naturnaher Ruhe und hervorragender Erreichbarkeit der Stadtzentren macht diese Lage besonders attraktiv für Familien und Berufspendler.
Weitere Dokumente
Energieausweis.pdfGrundriss
Grundriss - EG
>
>
Grundriss - OG
>
>
Grundriss - UG
>
>
Adresse
21435 Stelle
Interessante Orte
Preis- und Lageinformationen
Preistrend für Bestandsimmobilien in Stelle