Das Satteldachhaus Cara zeigt schon von außen einige Besonderheiten und seinen ganz speziellen Charme: Neben einer flachen Dachneigung wurden Fenster im Drempelbereich für lichtdurchflutete Räume sowie eine Holzfassade angebracht. Innen überzeugt das Architektenhaus mit einer klaren Grundrissaufteilung auf 121 Quadratmetern Wohnfläche, vier Zimmern und zwei Vollgeschossen.
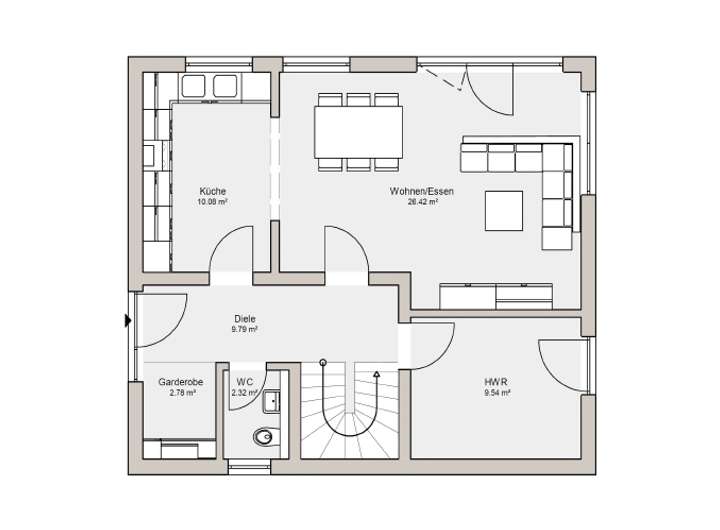
Im Erdgeschoss bietet das Familienhaus eine halboffene Küche zum großzügigen Wohn- und Essbereich mit bodentiefen Fenstern. Daneben gibt es auf dieser Etage ein Gäste-WC und eine Diele mit Garderobe. Praktisch ist auch der Hauswirtschaftsraum mit direktem Zugang in den Garten. Im Dachgeschoss stehen den Bewohnern große Individualräume zur Verfügung. Das Kinder- und das Eltern-Schlafzimmer bieten jeweils über 16 Quadratmeter Wohnfläche. Komplettiert wird die Etage durch ein Familien-Badezimmer und ein praktisches Home-Office.
Dieses Haus wird nach Ihren individuellen Wünschen geplant und ausgestattet!
Ein Haus mit eigenem Charakter!
63517 Rodenbach
Die vollständige Adresse der Immobilie erhalten Sie vom Anbieter.
Auf Karte anzeigen
Die vollständige Adresse der Immobilie erhalten Sie vom Anbieter.
Finanzierungszertifikat
In nur zwei Minuten zu Ihrem persönlichen Finanzierungszertifkat.
Infos
| Haustyp | Einfamilienhaus |
|---|---|
| Wohnfläche ca. | 121 m2 |
| Grundstücksfläche | 272 m2 |
| Zimmer | 4 |
| Schlafzimmer | 3 |
| Badezimmer | 1 |
| Anzahl Garage/Stellplatz | 2 |
Kosten
| Kaufpreis |
450.100 € |
|---|---|
| Provision | Nein |
Finanzierungsrechner:
Kaufpreis:
600.000 €
Eigenkapital:
600.000 €
Monatliche Rate
0 €
Effektiver Jahreszins
0 %
Sollzinsbindung
10 Jahre
Bausubstanz & Energieausweis
| Baujahr | 2026 |
|---|---|
| Bauphase | Haus in Planung (projektiert) |
| Objektzustand | Erstbezug |
| Qualität der Austattung | Gehoben |
| Heizungsart | Wärmepumpe |
| Energieausweis | liegt vor |
| Energieausweistyp | Bedarfsausweis |
| Energieeffizienzklasse | A |
Energieeffizienzklasse A
- A+
- A
- B
- C
- D
- E
- F
- G
- H
- 0
- 25
- 50
- 75
- 100
- 125
- 150
- 175
- 200
- 225
- >250
Beschreibung des Objekts
Ausstattung
4 Zimmer, offene Küche, Diele mit Garderobe, WC, Flur, Bad, Hauswirtschaftsraum
Das gezeigte Traumhaus im Überblick:
+ Schlüsselfertiges Massivhaus im Sinne der Ausstattungsbeschreibung "Easy"
+ Inklusive Bodenplatte
Beste Markenausstattung in jedem Kern-Haus:
+ Zimmermannsmäßiger Dachstuhl aus Konstruktionsvollholz
+ Dacheindeckung mit Betondachsteinen von Braas
+ Hochwertiger Kunstharz-Außenputz für eine langlebige Fassade
+ Vollständige Badausstattung von Villeroy & Boch mit Badewanne und flacher Duschwanne
+ Fliesen von Villeroy & Boch in Bad und WC
+ Haustür mit 3-fach-Sicherheitsverriegelung
+ Erstklassige Innentüren der Marke Herholz
+ Fenster mit 3-Scheiben-Wärmeschutzverglasung und Rollläden
+ Stahl-Holz-Treppe mit individueller Farbgestaltungsmöglichkeit
+ Elektroausstattung inklusive Klingelanlage
+ Rauchmelder für Ihre Sicherheit
+ Alle Leistungen aus einer Hand
+ Alle Planungs- und Architektenleistungen
+ Einsatz regionaler Handwerksbetriebe
+ Individuelle Anpassung auf Ihre Bedürfnisse
+ Auf Wunsch mit Keller erhältlich
+ Auf Wunsch mit weiteren Energietechniken erhältlich
Lage
Das Baugrundstück befindet sich in Oberrodenbach, einem Ortsteil von Rodenbach in der Nähe von Hanau, etwa 20 km östlich von Frankfurt am Main.
In Rodenbach gibt es mit der Adolf-Reichwein-Schule eine Grund-, Haupt und Realschule mit Förderstufe sowie mehrere Kindergärten. Gymnasien gibt es in den benachbarten Orten Somborn und Hanau. Die Gemeinde bietet eine gut ausgebaute Infrastruktur mit diversen Allgemein- und Fachärzten, Apotheken, Handwerks- und Gastronomiebetrieben sowie verschiedenen Einzelhandelsgeschäften.
Fast 100 Vereine bieten umfangreiche Möglichkeiten der Freizeitgestaltung. Besonders zu erwähnen sind die moderne und großzügig gestaltete Bücherei im alten Ortskern, das Strandbad sowie verschiedene Sportanlagen. Die Umgebung bietet sehr gute Bedingungen zum Wandern, Joggen oder Rad- bzw. Mountainbikefahren.
Sonstige Angaben
Kern-Haus baut individuelle und massive Architektenhäuser zu einem attraktiven Preis-Leistungs-Verhältnis – und das bereits mit einer Erfahrung seit 1980.
Maximale Sicherheit bei Kern-Haus:
+ 10 Jahre Gewährleistung auf die wesentlichen Bauleistungen
+ Bis zu 24 Monate Festpreisbindung
+ 50 Jahre Gewährleistung auf das DuoTherm-Mauerwerk
+ Verbindliche Bauzeit
+ Zahlung nach Baufortschritt
Preise und Auszeichnungen von Kern-Haus:
- German Brand Award in den Jahren 2018 und 2021
- Hausbau Design Award: Sieger in den Jahren 2017, 2018, 2019, 2020, 2021, 2022 und 2023
- Deutscher Traumhauspreis: Sieger in den Jahren 2014, 2015, 2016 und 2018 und Silber 2017, 2020 und 2021
- Mittelstandspreis "Top 100" in den Jahren 2014, 2016, 2018, 2020 und 2022
- German Design Award im Jahr 2018
Weitere Informationen
Der gezeigte Preis versteht sich inklusive Grundstück und exklusive der Baunebenkosten. Auf das Grundstück fällt eine Maklerprovision i. H. v. 3,57 % an.
Grundriss
Grundriss Erdgeschoss
>
>
Grundriss Dachgeschoss
>
>
Adresse
63517 Rodenbach
Interessante Orte
Preis- und Lageinformationen
Preistrend für Bestandsimmobilien in Rodenbach