Von außen zurückhaltend, im Inneren ein echtes Raumwunder – dieses charmante Reihenmittelhaus in Gröbenzell überrascht mit Großzügigkeit und einem durchdachten Grundriss, der perfekt auf die Bedürfnisse einer Familie abgestimmt ist.
Im Erdgeschoss werden Sie von einem einladenden Eingangsbereich empfangen, der ausreichend Platz für Jacken, Schuhe und Alltagsutensilien bietet. Von hier gelangen Sie in die Küche mit Einbauküche sowie in den hellen Wohn- und Essbereich. Große Fensterflächen öffnen den Blick in den liebevoll eingewachsenen Garten – ein idyllischer Rückzugsort für gemütliche Sommerabende, zum Spielen oder Entspannen im Grünen. Ein praktisches Gäste-WC ergänzt das Raumangebot auf dieser Ebene.
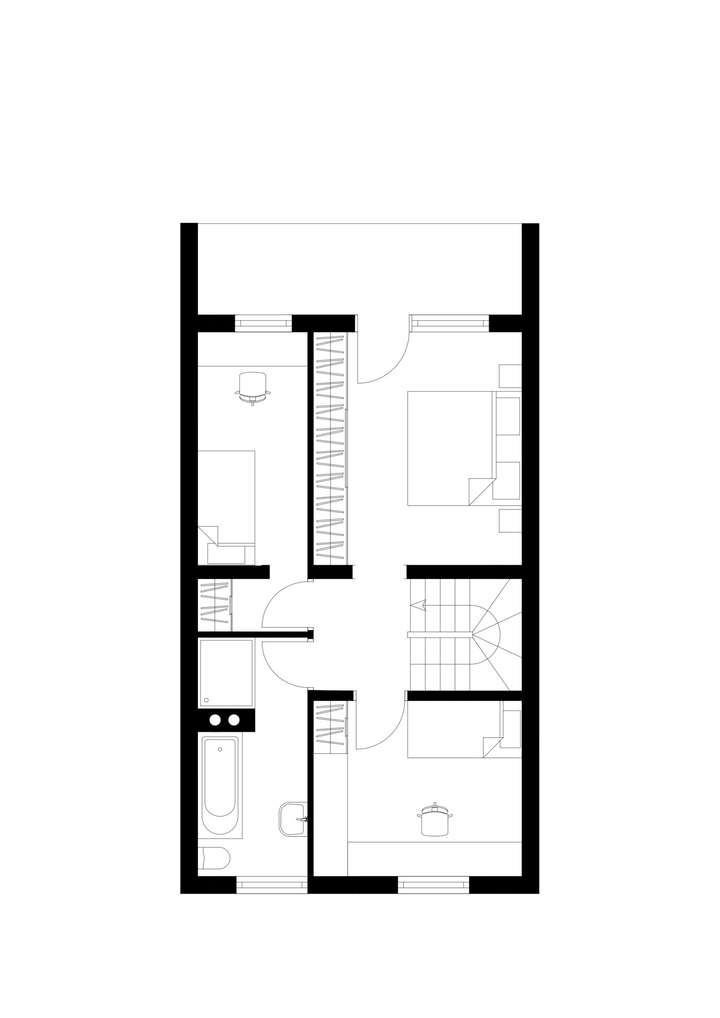
Im Obergeschoss erwarten Sie drei gut geschnittene Schlafzimmer sowie ein großzügiges Badezimmer mit Badewanne und Dusche – ideal, wenn sich morgens mal wieder alle gleichzeitig fertig machen müssen.
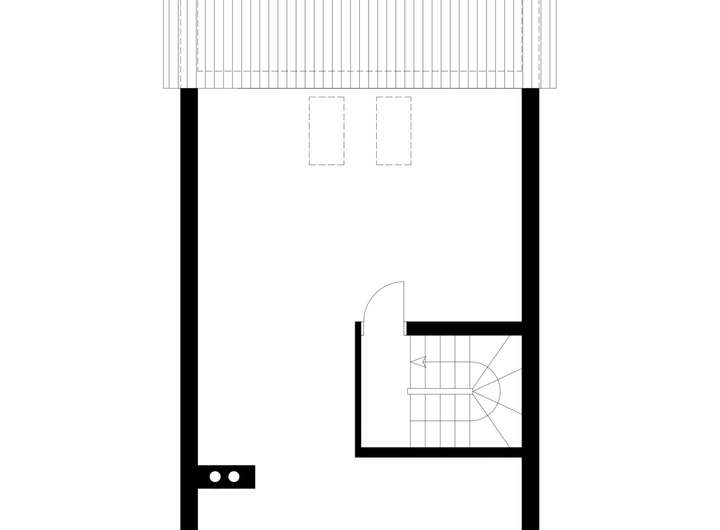
Zusätzlich zu den 105 m² Wohnfläche im Erdgeschoss und dem 1. Obergeschoss haben Sie im Dachgeschoss eine große Ausbaureserve. Das Dachgeschoss befindet sich derzeit im Rohbau und bietet vielfältige Möglichkeiten für Ihre individuellen Wohnideen: Ob ein großzügiger Elternbereich mit Ankleide und eigenem Bad oder zusätzliche Kinder- bzw. Arbeitszimmer – hier ist alles realisierbar.
Das Dachgeschoss wurde zu Präsentationszwecken mit Homestaging als Schlafbereich mit Bad und Ankleide eingerichtet, das Bad ist jedoch noch nicht realisiert.
Ein besonderes Highlight ist die ruhige Lage ohne direkte Straßenanbindung vor dem Haus. Kinder können hier unbeschwert spielen und Sie genießen das beruhigende Gefühl von Sicherheit und Gemeinschaft.
Eine Einzelgarage in der Nähe des Hauses gehört ebenfalls zum Haus und ist wie die Einbauküche bereits im Preis enthalten.
Gut geschnittenes Reihenmittelhaus mit großer Ausbaureserve im Dach
82194 Gröbenzell
Die vollständige Adresse der Immobilie erhalten Sie vom Anbieter.
Auf Karte anzeigen
Die vollständige Adresse der Immobilie erhalten Sie vom Anbieter.
Finanzierungszertifikat
In nur zwei Minuten zu Ihrem persönlichen Finanzierungszertifkat.
Infos
| Haustyp | Reihenmittelhaus |
|---|---|
| Wohnfläche ca. | 105 m2 |
| Grundstücksfläche | 225,48 m2 |
| Zimmer | 4 |
| Schlafzimmer | 3 |
| Badezimmer | 1 |
| Garage/Stellplatz | Garage |
| Anzahl Garage/Stellplatz | 1 |
Kosten
| Kaufpreis |
720.000 € |
|---|---|
| Provision |
3,57 % |
Finanzierungsrechner:
Kaufpreis:
600.000 €
Eigenkapital:
600.000 €
Monatliche Rate
0 €
Effektiver Jahreszins
0 %
Sollzinsbindung
10 Jahre
Bausubstanz & Energieausweis
| Baujahr | 1978 |
|---|---|
| Objektzustand | Gepflegt |
| Heizungsart | Zentralheizung |
| Wesentliche Energieträger | Öl |
| Energieausweis | liegt vor |
| Energieausweistyp | Bedarfsausweis |
| Energieverbrauchskennwert | 138,8 kWh/(m²*a) |
| Energieeffizienzklasse | E |
138,8
kWh/(m²*a)
Energieeffizienzklasse E
- A+
- A
- B
- C
- D
- E
- F
- G
- H
- 0
- 25
- 50
- 75
- 100
- 125
- 150
- 175
- 200
- 225
- >250
Beschreibung des Objekts
Ausstattung
+ heller Wohn-Essbereich mit großen Fensterfronten zum Garten
+ sonnige Terrasse und Süd-West Garten
+ Fliesenboden im Erdgeschoss
+ Elektrische Janlousien in den Wohn- und Schlafräumen
+ geräumiges Badezimmer mit Wanne und Dusche
+ Balkon im Obergeschoss
+ große Ausbaureserve im DG (aktuell Rohbau und nicht in die Wohnfläche eingerechnet)
+ großer Hobbyraum im Keller mit Einbauschränken
+ Einzelgarage
Lage
Das Haus liegt in einer ruhigen, verkehrsberuhigten Anliegerstraße – hier genießen Sie eine entspannte Atmosphäre fernab vom Durchgangsverkehr. Kinder können unbeschwert vor der Tür spielen, man grüßt sich auf der Straße und alles wirkt sehr entspannt.
Nur wenige Minuten entfernt befindet sich der idyllische Böhmer Weiher – ein echtes Kleinod für Naturliebhaber. Ob für die morgendliche Joggingrunde, einen Spaziergang im Grünen oder ein erfrischendes Bad im Sommer: Hier beginnt Ihr Freizeitvergnügen direkt vor der Haustür.
Auch die Infrastruktur lässt keine Wünsche offen. Einkaufsmöglichkeiten für den täglichen Bedarf, Ärzte, Cafés und Restaurants sind bequem erreichbar. Der S-Bahnhof Gröbenzell sorgt mit der Linie S3 für eine schnelle Anbindung an München – ideal für Berufspendler und Stadtliebhaber.
Familien wissen die ausgezeichnete Schul- und Kinderbetreuung besonders zu schätzen: Verschiedene Kitas und Grundschulen befinden sich vor Ort. Das Gymnasium in Gröbenzell hat ebenso wie die Mittelschule, die Realschule und das Gymnasium in Puchheim einen hervorragenden Ruf. So können die Kinder alle Schulen zu Fuß oder mit dem Rad in kurzer Zeit erreichen. Mit der Waldorfschule haben Sie in Gröbenzell eine weitere gute Möglichkeit für die Schule der Kinder.
Für Sportbegeisterte bietet der Ort ein breites Angebot an Vereinen und Freizeitmöglichkeiten – von Fußball über Tennis bis hin zu Reiten und Leichtathletik. Die umliegenden Wiesen, Wälder und Naherholungsgebiete laden zu Fahrradtouren und ausgedehnten Spaziergängen ein. Und die Hügel der Aubinger Lohe sind im Winter perfekte Schlittenberge.
Sonstige Angaben
Die Vermittlung dieser Immobilie erfolgt exklusiv durch die JALEA Immobilien GmbH. Mit der Anfrage bei und durch Inanspruchnahme der Dienstleistung der Firma JALEA Immobilien GmbH, wird ein Maklervertrag geschlossen. Vom Käufer ist eine Vermittlungsprovision in Höhe von 3,57 % (inklusive 19% Mehrwertsteuer) vom vertraglich vereinbarten Kaufpreis, nach Abschluss des notariell beurkundeten Kaufvertrages, zu zahlen. Bitte beachten Sie zusätzlich unsere AGBs.
Wir weisen darauf hin, dass die von uns weitergegebenen Objektinformationen, Unterlagen, Pläne etc. vom Verkäufer stammen. Eine Haftung für die Richtigkeit oder Vollständigkeit der Angaben übernehmen wir daher nicht. Es obliegt daher unseren Kunden, die darin enthaltenen Objektinformationen und Angaben auf ihre Richtigkeit hin zu überprüfen. Alle Immobilienangebote sind freibleibend und vorbehaltlich Irrtümer, Zwischenverkauf- und Vermietung oder sonstiger Zwischenverwertung.
Grundriss
Erdgeschoss
>
>
Obergeschoss
>
>
Dachgeschoss
>
>
Keller
>
>
Adresse
82194 Gröbenzell
Interessante Orte
Preis- und Lageinformationen
Preistrend für Bestandsimmobilien in Gröbenzell