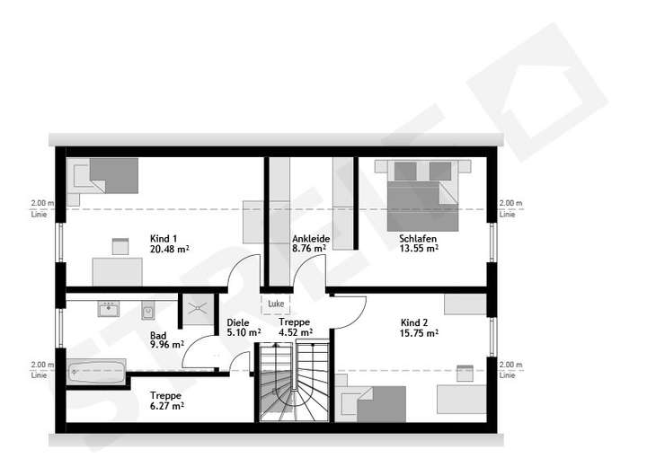
Willkommen in Ihrem zukünftigen Traumhaus, einem individuell geplanten Einfamilienhaus mit Einliegerwohnung von STREIF im charmanten Sehnde. Mit einer großzügigen Wohnfläche von 167,94 m² auf zwei Etagen bietet dieses Haus ausreichend Platz für die ganze Familie. Das durchdachte Design umfasst drei geräumige Schlafzimmer und zwei luxuriöse Badezimmer, die mit einer Dusche, einer Wanne und einem Fenster wahre Wellnessoasen darstellen. Ein zusätzliches Gäste-WC sorgt für Komfort im Alltag. Lassen Sie sich von der hohen Flexibilität überzeugen: Ob Walmdach, Flachdach oder klassisches Satteldach - bei STREIF wird Ihr Traumhaus nach Ihren Vorstellungen verwirklicht.
**Platz für alles: Einfamilienhaus mit Einliegerwohnung für flexibles Leben mit Klinkeraktion!**
31319 Sehnde
Die vollständige Adresse der Immobilie erhalten Sie vom Anbieter.
Auf Karte anzeigen
Die vollständige Adresse der Immobilie erhalten Sie vom Anbieter.
Finanzierungszertifikat
In nur zwei Minuten zu Ihrem persönlichen Finanzierungszertifkat.
Infos
| Haustyp | Einfamilienhaus |
|---|---|
| Etagenzahl | 2 |
| Wohnfläche ca. | 167 m2 |
| Nutzfläche | 25 m2 |
| Grundstücksfläche | 848 m2 |
| Bezugsfrei ab | 2025 |
| Zimmer | 6 |
| Schlafzimmer | 3 |
| Badezimmer | 2 |
Kosten
| Kaufpreis |
678.995 € |
|---|---|
| Provision | Nein |
Finanzierungsrechner:
Kaufpreis:
600.000 €
Eigenkapital:
600.000 €
Monatliche Rate
0 €
Effektiver Jahreszins
0 %
Sollzinsbindung
10 Jahre
Bausubstanz & Energieausweis
| Baujahr | 2025 |
|---|---|
| Bauphase | Haus in Planung (projektiert) |
| Qualität der Austattung | Gehoben |
| Heizungsart | Wärmepumpe |
| Energieausweis | liegt zur Besichtigung vor |
Beschreibung des Objekts
Ausstattung
Die Ausstattung des Hauses ist gehoben und lässt keine Wünsche offen. Die Bodenbeläge aus Fliesen bieten nicht nur eine zeitlose Eleganz, sondern sind auch pflegeleicht und langlebig. Für weitere Bereiche können Sie ganz nach Wunsch auswählen, um jedem Raum eine persönliche Note zu verleihen. Die Befeuerungsart mit Wärmepumpe sorgt für ein effizientes und umweltfreundliches Heizen, während der KFW40 Standard gewährleistet, dass Ihr neues Zuhause energieeffizient und nachhaltig ist.
Lage
Das Objekt befindet sich in einer ruhigen Wohngegend von Sehnde / Haimer und bietet eine hervorragende Infrastruktur. In unmittelbarer Nähe finden Sie Apotheken, Einkaufsmöglichkeiten sowie Bildungseinrichtungen wie Grundschulen, Kindergärten und weiterführende Schulen. Der nahegelegene Bahnhof vereinfacht Pendelwege erheblich, während das Wohngebiet selbst Ruhe und Erholung verspricht.
Sonstige Angaben
STREIF Haus - der Pionier der deutschen Fertighausbranche
Die langjährige Firmentradition des Unternehmens reicht bis in das Jahr 1929 zurück. In den 50er und 60er Jahren wurde in Deutschland schnell und viel Wohnraum für Familien benötigt, seitdem konzentrierte sich das Unternehmen auf die Entwicklung und Produktion von Fertighaustypen, die im Werk in großen Stückzahlen hergestellt werden konnten. So kann das Unternehmen auf 90.000 gebaute Hausobjekte zurückblicken und sich zu Recht als Pionier der deutschen Fertighausbranche bezeichnen.
Die neuen Energiesparhäuser - So baut man heute.
Unser Anspruch ist es, in enger Partnerschaft mit unseren Kunden langlebige Häuser zu bauen, mit einer hohen architektonischen Qualität, individuell geplant und dabei energieeffizient und ressourcenschonend. Jedes STREIF-Haus ist einzigartig und wird speziell für jeden Kunden "maßgeschneidert" und gebaut. Passend zu den persönlichen Wünschen, dem vorgegebenen Budget und dem vorhandenen Grundstück planen und bauen wir jedes Haus mit viel Liebe zum Detail.
Adresse
31319 Sehnde
Interessante Orte
Preis- und Lageinformationen
Preistrend für Bestandsimmobilien in Sehnde