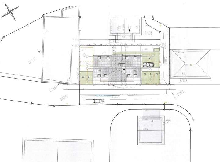
Bei diesem Immobilienangebot handelt es sich um ein ca. 463 m² großes Baugrundstück in einer gewachsenen Einfamilienhaussiedlung im grünen Krostitz. Für das Grundstück liegt eine Baugenehmigung vor, die zulässig ist für den Bau eines Mehrfamilienhauses mit vier Geschossflächen. Insgesamt sollen sechs Wohneinheiten auf einer vermietbaren Fläche von ca. 363,29 m² entstehen. Für jede Wohneinheit ist ein PKW-Stellplatz und ein Fahrradstellplatz vorgesehen.
Ebenfalls ist die Bebauung mit einem Einfamilienhaus möglich.
Das Grundstück ist voll erschlossen. Alle Medien liegen straßenseitig an.
Ausstattung:
- ca. 463 m² großes Baugrundstück
- Wohnfläche/vermietbare Fläche: 363,29 m²
- Baugenehmigung liegt vor (bis 2023)
- MFH mit 6 Wohneinheiten
- 7 Stellplätze
- straßenseitig erschlossen (Strom/Wasser/Abwasser)
- zum Teil eingezäunt
Weitere Informationen erhalten Sie gern auf Anfrage!
" frisch, engagiert, solide "
Die Künne Immobilien Gruppe ist professioneller Dienstleister der Immobilienbranche und steht Ihnen in den Bereichen Projektentwicklung, Verkauf, Vermietung, Verwaltung und Facility Management zur Verfügung.
Für weitere Informationen und Einblicke besuchen Sie unsere Homepage: www.kuenne-gruppe.de Sie wollen Ihre Immobilie verkaufen? Egal ob Mehrfamilien- oder Einfamilienhaus, Eigentumswohnung, Grundstück oder Neubau- bzw. Bauträgerprojekt. Wir vermitteln kompetent, transparent und zügig Ihre Immobilie, bundesweit.
Grundstück mit Baugenehmigung für ein kleines Mehrfamilienhaus oder Einfamilienhaus
04509 Krostitz
Die vollständige Adresse der Immobilie erhalten Sie vom Anbieter.
Auf Karte anzeigen
Die vollständige Adresse der Immobilie erhalten Sie vom Anbieter.
Finanzierungszertifikat
In nur zwei Minuten zu Ihrem persönlichen Finanzierungszertifkat.
Infos
| Vermarktungsart | Kaufen |
|---|---|
| Grundstücksfläche | 463 m2 |
| Erschließung | Erschlossen |
| Empfohlene Nutzung | Doppelhaus, Einfamilienhaus, Mehrfamilienhaus |
| Bebaubar nach | Bebauungsplan |
Kosten
| Miete pro Jahr |
225.000 € |
|---|---|
| Provision |
13.387,50 € |
Finanzierungsrechner:
Kaufpreis:
600.000 €
Eigenkapital:
600.000 €
Monatliche Rate
0 €
Effektiver Jahreszins
0 %
Sollzinsbindung
10 Jahre
Beschreibung des Objekts
Lage
Der Ort Krostitz befindet sich nördlich der Leipziger Innenstadt. Die Nähe zur City, zur A14 und zum Flughafen zeichnet die Attraktivität dieser Lage aus.
Hier befinden sich ein sehr schöner Kindergarten, die Grund- und die Mittelschule. Gute Einkaufmöglichkeiten, eine Apotheke und Ärzte sind fußläufig zu erreichen.
Das Lebenswerte in Krostitz und seinen Ortsteilen ist der Mix aus ländlicher Idylle, der Nähe zur Großstadt, eine optimale Verkehrsanbindung und nicht zuletzt die hervorragend ausgebaute Infrastruktur mit Erziehung, Handel und Gewerbe, Nahverkehr und sozialen Einrichtungen. Der Ort befindet sich 5 Minuten von BMW-Gelände und 15 Fahrminuten von Leipzig entfernt. Die Nächste Einkaufsmöglichkeit befindet sich 100 Meter entfernt. In ca. 20 Fahrminuten erreichen Sie den Schladitzer See. In ca. 500 Meter befindet sich die überregional bekannte'Krostitzer Brauerei'.