In der schönen Stadt Hanau im Ballungsraum von Frankfurt steht hier ein 789 m² großes, ruhig gelegenes Grundstück in einer Bestandssiedlung im Ortsteil Großauheim zum Verkauf. Das 12m-breite Grundstück ist teilerschlossen, die üblichen Ver- und Entsorgungsleitungen sind in der Straße vorhanden und durch den Erwerber auf das Grundstück zu legen.
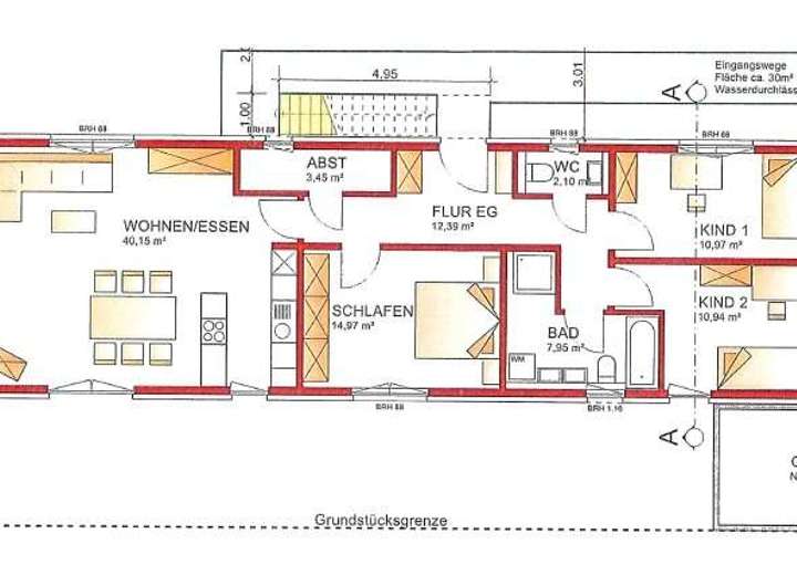
Für das Grundstück gab es schon einmal eine Baugenehmigung welche mittlerweile abgelaufen ist. Diese beinhaltete den Neubau eines Zweifamilienhauses mit einer Wohnfläche von ca. 220m² auf 2 Vollgeschossen nebst Garage und offenem Stellplatz. Für das Bauvorhaben müssen 5, laut Baumschutzsatzung der Stadt Hanau geschützte Bäume, gefällt werden. Eine Fällgenehmigung lag im Zuge der Genehmigung vor. Da die Baugenehmigung abgelaufen ist, können sie das Grundstück auch frei in Abstimmung mit dem Bauamt beplanen.
Lassen Sie Ihren Traum vom Eigenheim wahr werden!
" frisch, engagiert, solide "
Die Künne Immobilien Gruppe ist professioneller Dienstleister der Immobilienbranche und steht Ihnen in den Bereichen Projektentwicklung, Verkauf, Vermietung, Verwaltung und Facility Management zur Verfügung.
Für weitere Informationen und Einblicke besuchen Sie unsere Homepage: www.kuenne-gruppe.de Sie wollen Ihre Immobilie verkaufen? Egal ob Mehrfamilien- oder Einfamilienhaus, Eigentumswohnung, Grundstück oder Neubau- bzw. Bauträgerprojekt. Wir vermitteln kompetent, transparent und zügig Ihre Immobilie, bundesweit.
Baugrundstück direkt vom Eigentümer für ein Einfamilien-/ Doppelhaus
63457 Hanau
Die vollständige Adresse der Immobilie erhalten Sie vom Anbieter.
Auf Karte anzeigen
Die vollständige Adresse der Immobilie erhalten Sie vom Anbieter.
Finanzierungszertifikat
In nur zwei Minuten zu Ihrem persönlichen Finanzierungszertifkat.
Infos
| Vermarktungsart | Kaufen |
|---|---|
| Grundstücksfläche | 789 m2 |
| Empfohlene Nutzung | Doppelhaus, Einfamilienhaus, Reihenhaus |
| Bebaubar nach | wie Nachbarbebauung |
Kosten
| Miete pro Jahr |
380.000 € |
|---|---|
| Provision | Nein |
Finanzierungsrechner:
Kaufpreis:
600.000 €
Eigenkapital:
600.000 €
Monatliche Rate
0 €
Effektiver Jahreszins
0 %
Sollzinsbindung
10 Jahre
Beschreibung des Objekts
Lage
Großauheim als Stadtteil von Hanau liegt im hessischen Main-Kinzig-Kreis etwa 30km nordöstlich von Frankfurt am Main. Der Bahnhof Großauheim bindet den Ort an das Schienennetz an, außerdem gibt es zwei Buslinien sowie eine Regionalbuslinie. In wenigen Fahrminuten erreicht man die B43a, über die man rasch das Autobahnnetz erreicht. Großauheim bietet als Standort für familiäres Wohnen mehrere Grundschulen, eine Gesamtschule mit gymnasialer Oberstufe und Privatschulen.
Grundriss
Grundriss Planung EG
>
>
Grundriss Planung OG
>
>