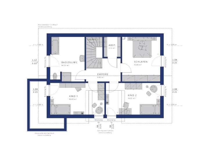
Architektur und Design zum Verlieben - willkommen im "Alleskönner". Mit 5° Pultdach und Flachdach auf dem Querhaus, dem Dachüberstand im Modern-Landhaus-Stil und den Fensterpaketen 1098, 1099, 1105, 1106, 1108 und 1109 ist das EVOLUTION 148 V5 ein äußerst repräsentatives und attraktives Haus und bietet allem voran richtig viel Platz. Hier genießt man das Leben auf 155 Quadratmetern mit allem, was dazugehört. Im Erdgeschoss sind Wohnen, Essen, Kochen und Arbeiten ideal kombiniert und bieten dank der großzügigen und offenen Aufteilung das perfekte Wohngefühl. Attraktive Details, wie Garderobe und Gäste-WC, komplettieren diesen Alleskönner. Im Obergeschoss garantieren die beiden großen Kinderzimmer und das luxuriöse Elternschlafzimmer viele schöne Momente zum Entspannen und Träumen. Für den perfekten Wellness-Genuss sorgt das großzügige Bad.
Bestpreisgarantie bei Bien-Zenker EVO148 Rickenbach-Altenschwand
79736 Rickenbach
Die vollständige Adresse der Immobilie erhalten Sie vom Anbieter.
Auf Karte anzeigen
Die vollständige Adresse der Immobilie erhalten Sie vom Anbieter.
Finanzierungszertifikat
In nur zwei Minuten zu Ihrem persönlichen Finanzierungszertifkat.
Infos
| Haustyp | Einfamilienhaus |
|---|---|
| Etagenzahl | 2 |
| Wohnfläche ca. | 155 m2 |
| Grundstücksfläche | 1.400 m2 |
| Bezugsfrei ab | 31.12.2026 |
| Zimmer | 5 |
| Schlafzimmer | 3 |
| Badezimmer | 1 |
| Anzahl Garage/Stellplatz | 2 |
Kosten
| Kaufpreis |
688.999 € |
|---|---|
| Provision | Nein |
Finanzierungsrechner:
Kaufpreis:
600.000 €
Eigenkapital:
600.000 €
Monatliche Rate
0 €
Effektiver Jahreszins
0 %
Sollzinsbindung
10 Jahre
Bausubstanz & Energieausweis
| Baujahr | 2026 |
|---|---|
| Bauphase | Haus in Planung (projektiert) |
| Objektzustand | Erstbezug |
| Qualität der Austattung | Gehoben |
| Heizungsart | Wärmepumpe |
Beschreibung des Objekts
Ausstattung
Bereits im Kaufpreis enthalten: - Baugrundstück, Baunebenkosten, Bodengutachten, Projektiertes Haus schlüsselfertig auf Bodenplatte. Gerne bieten wir es Ihnen auch "zur Ausstattung fertig" an. - innovative Effizienzhaus 40 Wand - Photovoltaikanlage mit Batteriespeicher - innovative Effizienzhaus 40 Thermo-Energiesparfenster mit 3 Scheiben Isolierverglasung für energiebewusstes Wohnen - Außenfensterbänke, in verschieden Farben wählbar - hochwertige Dacheindeckung mit 30 Jahren Herstellergarantie -moderne Vollholzhaustür mit 5-Punkt-Verriegelung mit Edelstahlgriff - modernste, effiziente und innovative Heizungstechnik mit unserer Wohlfühlklimaheizung inkl. Kühlfunktion und integriertem Pollenfilter, bestens geeignet für Familien mit Kindern und Allergiker - ein IPad 64 GB ist inklusive und kann zur Bedienung Ihrer Smart Home Funktionen benutzt werden. Gerne begleiten wir Ihre Familie zuverlässig und persönlich auf dem Weg zu Ihrem eigenen Bien-Zenker Traumhaus.
Lage
Diese Einfamilienhäuser entstehen im Wohngebiet von Altenschwand. Aufgrund der guten Verkehrsanbindung zur Schweizer Grenze, ist diese Lage auch für Pendler begehrenswert. Eine gute Grundversorgung ist im Ort gegeben. Ein Kindergarten sowie einige Schulen sind wertvolle Einrichtungen für Familien mit Kindern. Sie sind gut vor Ort erreichbar.
Für Freizeitaktivitäten wie Golf, Tennis, Skifahren und Wandern ist dieser Ort im Schwarzwald bekannt!
Sonstige Angaben
Bei uns erhalten Sie bereits im Standard die Effizienzklasse 40. Wir beraten Sie gerne! Nutzen Sie unseren Grundstücksservice! Egal, ob es dieses Grundstück oder ein anderes werden soll - wenn Sie sich für ein Neubauprojekt mit Bien-Zenker entscheiden, unterstützen wir Sie aktiv und kostenfrei bei Ihrer Suche nach einem geeigneten Grundstück für Ihr Zuhause. Bei dem dargestellten Objekt handelt es sich um eine Projektierung, die im Hinblick auf Kubatur, architektonischer Gestaltung und Energieeffizienzklasse an individuelle Anforderungen und Bedürfnisse unserer Bauherren angepasst werden kann. Ein bedarfsbestimmter Energieausweis wird nach endgültiger Planung und unter Berücksichtigung regionaler baurechtlicher Bestimmungen erstellt und an die Bauherren nach Fertigstellung übergeben. Angebotspreis zuzüglich Grunderwerb- und Baunebenkosten. Vorbehaltlich Irrtümer und Zwischenverkauf. Abbildungen, Fotos und Grundrisse enthalten Extras. Bitte beachten Sie die Erklärung zur Datenschutzverordnung im Impressum. Die Bundesregierung hat am 24. Januar 2022 mit sofortiger Wirkung die Bundesförderung für effiziente Gebäude (BEG) mit einem vorläufigen Programmstopp belegt. Ab dem 24. Januar 2022 können zunächst keine neuen Anträge für Fördermittel für die KfW-Programme in der Bundesförderung für effiziente Gebäude (BEG) gestellt werden. Dies gilt für alle drei KfW-Programmbereiche: Effizienzhaus /Effizienzgebäude 55 im Neubau (EH/EG55), Effizienzhaus /Effizienzgebäude 40 im Neubau (EH/EG40), Energetische Sanierung. Bitte informieren Sie sich dazu unter www.bmwi.de und www.kfw.de. Wir informieren umgehend über neue Fördermöglichkeiten. Unabhängig davon sind unsere Angebote auch so attraktiv! Überzeugen Sie sich selbst!
Adresse
79736 Rickenbach
Interessante Orte
Preis- und Lageinformationen
Preistrend für Bestandsimmobilien in Rickenbach