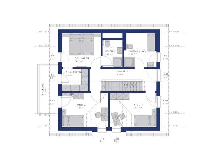
Endlich zuhause! Dieses Gefühl gibt Ihnen dieses Einfamilienhaus mit den komfortablen Außenmaßen von rund 9,4 x 9,4 Metern. Im Erdgeschoss lädt es zu offenem Wohnen auf über 44 Quadratmetern ein und bietet Ihrer drei- bis vierköpfigen Familie im Obergeschoss die nötige Privatsphäre.
Eine großzügige Einzelgarage unterstreicht dieses vollkommene Wohnkonzept. Fahren Sie jetzt schon oder vielleicht künftig ein Elektroauto? Dann sind Sie bei uns genau richtig, denn eine Wallbox in der Garage ist im Angebot enthalten. Und Sie haben die Möglichkeit, diesen Entwurf ganz auf Ihre persönlichen Bedürfnisse und Vorstellungen zuzuschneiden. Machen Sie dieses Einfamilienhaus zu Ihrem individuellen Traumhaus.
Erstellt wird es schlüsselfertig auf einer Bodenplatte, auf Wunsch und Mehrpreis kann auch ein Keller realisiert werden. Der Preis beinhaltet das Grundstück inkl. schlüsselfertigen Haus inklusive Baunebenkosten und voraussichtlicher Außenanlagen. Im Preis inbegriffen ist ebenso eine schicke Einbauküche.
Das schlüsselfertige Haus beinhaltet u.a. auch sämtliche Bodenbeläge und Malerarbeiten. Es handelt sich um ein hochenergieeffizientes KfW40 Haus mit einer Photovoltaikanlage, die seit Mai 2022 in Baden Württemberg Vorschrift ist. Das komfortable Smarthome-Paket "Loxone" ist im Preis enthalten, es ist bedienerfreundlich und lässt das Haus auf modernste Art per Smartphone-App steuern. 3-fach-verglaste Fenster mit hochwertigen Aluminium-Rollläden sind für uns selbstverständlich.
Eine äußerst energieeffiziente Luft-Luft-Wärmepumpe inkl. kontrollierter Be- und Entlüftung sorgt für wohlige Wärme im Winter sowie angenehme Kühle im Sommer.
Eine Besichtigung des Grundstückes sowie ein individuelles Planungsgespräch sind nach Absprache jederzeit möglich.
Bestpreisgarantie bei Bien-Zenker - Modernes Einfamilienhaus Grundstück in Altenschwand
79736 Rickenbach
Die vollständige Adresse der Immobilie erhalten Sie vom Anbieter.
Auf Karte anzeigen
Die vollständige Adresse der Immobilie erhalten Sie vom Anbieter.
Finanzierungszertifikat
In nur zwei Minuten zu Ihrem persönlichen Finanzierungszertifkat.
Infos
| Haustyp | Einfamilienhaus |
|---|---|
| Etagenzahl | 2 |
| Wohnfläche ca. | 150 m2 |
| Grundstücksfläche | 1.400 m2 |
| Bezugsfrei ab | 31.12.2026 |
| Zimmer | 4 |
| Schlafzimmer | 3 |
| Badezimmer | 3 |
| Garage/Stellplatz | Garage |
| Anzahl Garage/Stellplatz | 1 |
Kosten
| Kaufpreis |
585.000 € |
|---|---|
| Provision | Nein |
Finanzierungsrechner:
Kaufpreis:
600.000 €
Eigenkapital:
600.000 €
Monatliche Rate
0 €
Effektiver Jahreszins
0 %
Sollzinsbindung
10 Jahre
Bausubstanz & Energieausweis
| Baujahr | 2026 |
|---|---|
| Bauphase | Haus in Planung (projektiert) |
| Objektzustand | Erstbezug |
| Qualität der Austattung | Gehoben |
| Heizungsart | Wärmepumpe |
Beschreibung des Objekts
Ausstattung
- Schlüsselfertiges KfW40 Haus
- inkl. Malerarbeiten und Bodenbelägen
- zweigeschossig
- ca. 150,00 m² Netto-Grundfläche
- Stahlbeton-Bodenplatte (inkl. Sockeldämmung, Bodengutachten, Statik)
- Wärmepumpe mit Kühlfunktion (Wohlfühlklimaheizung PLUS)
- Photovoltaikanalge
- Zweifarbige Putzfassade
- Fenster in Farbe nach Ihrer Wahl
- Garage mit Wallbox
- Bodengutachten, Statik
- Aluminium-Rollläden
- mit Smarthome-Paket - der Baustein "Intelligentes Wohnen Loxone"
- Zuzüglich ortsübliche Baunebenkosten und Außenanlage
Eigenleistungen sind auf Wunsch möglich, Grundrisse werden individuell gestaltet.
Lage
Einfamilienhäuser entstehen im ruhig gelegen Wohngebiet von Altenschwand. Aufgrund der naheliegenden Grenzübergänge von Laufenburg ist diese Lage auch für Pendler in die Schweiz begehrenswert. Eine gute Grundversorgung ist am Ort gegeben. Ein Kindergarten sowie eine Grundschule sind wertvolle Einrichtungen für Familien mit Kindern. Sie sind teilweise sogar fußläufig erreichbar.
Freizeitaktivitäten: Golf, Tennis, Wandern!
Sonstige Angaben
Es handelt sich um ein projektiertes Objekt. Abbildungen können kostenpflichtige Zusatzteile enthalten.
Wir beraten Sie gerne bei der Finanzierung inkl. einer KfW-Förderung.
Adresse
79736 Rickenbach
Interessante Orte
Preis- und Lageinformationen
Preistrend für Bestandsimmobilien in Rickenbach