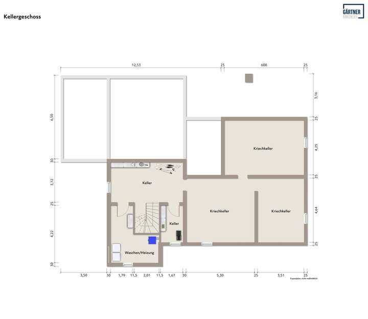
Dieses gemütliche und toll geschnittene Einfamilienhaus im Stil eines Bungalows verfügt über 5,5 Zimmer und hat eine Wohnfläche von ca. 143 m². Das Haus befindet sich in ruhiger Sackgassenlage von Hanau-Kesselstadt auf einem ca. 744 m² großen Erbpachtgrundstück. Es erwartet Sie ein großer lichtdurchfluteter Wohn- und Essbereich mit großer Fensterfront und hohen Decken. Über das Wohnzimmer und das kleine angrenzende Arbeitszimmer haben Sie Zugang auf die gemütliche Außenterrasse sowie in den Garten. Die separate Küche schließt an den Essbereich an. Des Weiteren sind ein vom Platz angemessenes Schlafzimmer mit "en Suite" Tageslichtbad mit Wanne, ein großes Kinder- / Arbeitszimmer, ein weiteres Arbeitszimmer sowie ein zusätzliches Tageslichtbad mit Dusche vorhanden. Im Eingangs- / Flurbereich befindet sich selbstverständlich ein Gäste-WC mit Fenster und genügend Platz für eine Garderobe. Das Haus ist teilweise unterkellert. Hier steht Ihnen ein geräumiger Kellerraum, ein kleiner Vorratskeller sowie ein Heizungs- und Waschraum zur Verfügung. Für Ihre PKWs sind eine Garage mit davorliegendem Stellplatz am Haus vorgesehen.
Den virtuellen 3D-Rundgang finden Sie in Ihrem persönlichen Login-Bereich auf unserer Webseite.
Hanau-Kesselstadt: Tolles Einfamilienhaus / Bungalow mit Garten & Erbpachtgrundstück in ruhiger Lage
63454 Hanau
Die vollständige Adresse der Immobilie erhalten Sie vom Anbieter.
Auf Karte anzeigen
Die vollständige Adresse der Immobilie erhalten Sie vom Anbieter.
Finanzierungszertifikat
In nur zwei Minuten zu Ihrem persönlichen Finanzierungszertifkat.
Infos
| Haustyp | Bungalow |
|---|---|
| Etagenzahl | 1 |
| Wohnfläche ca. | 143 m2 |
| Grundstücksfläche | 744 m2 |
| Bezugsfrei ab | Nach Absprache |
| Zimmer | 5,5 |
| Anzahl Garage/Stellplatz | 2 |
Kosten
| Kaufpreis |
535.000 € |
|---|---|
| Provision |
3,57 % |
Finanzierungsrechner:
Kaufpreis:
600.000 €
Eigenkapital:
600.000 €
Monatliche Rate
0 €
Effektiver Jahreszins
0 %
Sollzinsbindung
10 Jahre
Bausubstanz & Energieausweis
| Baujahr | 1977 |
|---|---|
| Objektzustand | Renovierungsbedürftig |
| Heizungsart | Fußbodenheizung |
| Wesentliche Energieträger | Fernwärme |
| Energieausweis | liegt vor |
| Energieausweistyp | Bedarfsausweis |
| Energieverbrauchskennwert | 203,2 kWh/(m²*a) |
| Energieeffizienzklasse | H |
203,2
kWh/(m²*a)
Energieeffizienzklasse H
- A+
- A
- B
- C
- D
- E
- F
- G
- H
- 0
- 25
- 50
- 75
- 100
- 125
- 150
- 175
- 200
- 225
- >250
Beschreibung des Objekts
Ausstattung
- Erbpachtgrundstück
- Erbpacht Monatsbetrag Euro 107,37
- Laufzeit Erbpachtvertrag bis Dezember 2069
- Sanierungsbedürftiger Allgemeinzustand
- Umliegender Garten
- Überdachte Terrasse mit südlicher Ausrichtung
- Großer, ausbaufähiger Spitzboden
- Elektrische Rollläden
- Gemütliche Fußbodenheizung
- En Suite-Tageslichtbad mit Badewanne
- Tageslichtbad mit Dusche
- Separates Gäste-WC mit Fenster
- Holzfenster mit Isolierverglasung
- Teilweise unterkellert
- PKW-Garage mit davorliegendem Stellplatz am Haus
Lage
Das Objekt befindet sich in ruhiger Sackgassenlage von Hanau-Kesselstadt
- Bahn-Anbindung direkt nach Frankfurt nur wenige Minuten entfernt
- Beliebter Standort östlich von Frankfurt mit guter Anbindung an die A66 / A45 / A3
- Vielfältige Einkaufsmöglichkeiten in unmittelbarer Nähe zu dem Objekt
- Kindergärten / Tagesstätten, Schulen in wenigen Minuten erreichbar
- Freibad und Hallenbad sowie große Spielplätze und Vereinssport
- Sehr gute Gastronomie mit Bars und Restaurants
Sonstige Angaben
Für nähere Informationen oder einen Besichtigungstermin stehen wir Ihnen gerne jederzeit zur Verfügung.
Den virtuellen 3D-Rundgang finden Sie in Ihrem persönlichen Login-Bereich auf unserer Webseite.
Grundriss
Erdgeschoss
>
>
Kellergeschoss
>
>
Adresse
63454 Hanau
Interessante Orte
Preis- und Lageinformationen
Preistrend für Bestandsimmobilien in Hanau