Willkommen in dieser charmanten Doppelhaushälfte im idyllischen Schleiden-Gemünd welches ursprünglich als Dreiparteienhaus konzipiert war. Dieses attraktive Haus aus dem Jahr 1964 bietet beeindruckende ca. 196 m² Wohnfläche, verteilt auf neun Zimmer, darunter drei Schlafzimmer und drei Badezimmer, auf einem ca. 439 m² großen Grundstück. Baujahr Wärmeerzeuger 2023.
Die Immobilie ist ab sofort verfügbar und erfordert eine Renovierung, bietet jedoch ein enormes Potenzial, ideal für Kapitalanleger oder Familien, die viel Platz schätzen. Ein Highlight ist die Möglichkeit, drei separate Einliegerwohnungen zu gestalten, die zusätzliche Flexibilität für Vermietung oder familiäre Nutzung bieten.
Genießen Sie entspannte Stunden auf der großzügigen Terrasse oder dem Balkon und verwirklichen Sie Ihre individuellen Gestaltungsideen im großzügigen Garten. Der große Keller und die vorhandene Garage, sowie mehrere Stellplätze vor dem Haus, sorgen für zusätzlichen Komfort.
Die ruhige und dennoch zentrale Lage macht dieses Haus zu einem idealen Rückzugsort. Erleben Sie die vielfältigen Möglichkeiten und schaffen Sie sich Ihr Traum-Eigenheim in einer der begehrtesten Gegenden von Schleiden/Gemünd. Vereinbaren Sie noch heute einen Besichtigungstermin und lassen Sie sich inspirieren!
Attraktive Doppelhaushälfte mit viel Potential!
53937 Schleiden
Die vollständige Adresse der Immobilie erhalten Sie vom Anbieter.
Auf Karte anzeigen
Die vollständige Adresse der Immobilie erhalten Sie vom Anbieter.
Finanzierungszertifikat
In nur zwei Minuten zu Ihrem persönlichen Finanzierungszertifkat.
Infos
| Haustyp | Doppelhaushaelfte |
|---|---|
| Etagenzahl | 1 |
| Wohnfläche ca. | 196 m2 |
| Grundstücksfläche | 439 m2 |
| Bezugsfrei ab | SOFORT. |
| Zimmer | 9 |
| Schlafzimmer | 3 |
| Badezimmer | 3 |
| Garage/Stellplatz | Garage |
| Anzahl Garage/Stellplatz | 1 |
Kosten
| Kaufpreis |
195.000 € |
|---|---|
| Provision |
3,57% inklusive MwSt. |
Finanzierungsrechner:
Kaufpreis:
600.000 €
Eigenkapital:
600.000 €
Monatliche Rate
0 €
Effektiver Jahreszins
0 %
Sollzinsbindung
10 Jahre
Bausubstanz & Energieausweis
| Baujahr | 1964 |
|---|---|
| Objektzustand | Renovierungsbedürftig |
| Heizungsart | Zentralheizung |
| Wesentliche Energieträger | Gas |
| Energieausweis | liegt vor |
| Energieausweistyp | Bedarfsausweis |
| Energieverbrauchskennwert | 220,3 kWh/(m²*a) |
| Energieeffizienzklasse | G |
220,3
kWh/(m²*a)
Energieeffizienzklasse G
- A+
- A
- B
- C
- D
- E
- F
- G
- H
- 0
- 25
- 50
- 75
- 100
- 125
- 150
- 175
- 200
- 225
- >250
Beschreibung des Objekts
Ausstattung
Garten.
Garage.
Stellplatz.
Großer Keller.
Baujahr Wärmeerzeuger 2023.
Mehrer Parkmöglichkeiten vor dem Haus.
Im Keller ist ein Bereich speziell als Luftschutzkeller ausgewiesen.
Lage
Diese charmante Doppelhaushälfte befindet sich in der malerischen Ortschaft Gemünd, einem Stadtteil von Schleiden im Herzen der Eifel. Die Region ist bekannt für ihre atemberaubende Naturkulisse und bietet zahlreiche Möglichkeiten für Outdoor-Aktivitäten in unmittelbarer Nähe. Wander- und Radwege wie der Eifelsteig sind ideal für Naturfreunde und Abenteurer. Die Umgebung besticht durch ihre Ruhe und bietet gleichzeitig eine gute Anbindung an den Kernort Schleiden, wo Sie alle wichtigen Annehmlichkeiten wie Einkaufsmöglichkeiten, Schulen und Ärzte finden. Dank der Nähe zur A1 erreichen Sie bequem größere Städte wie Aachen und Köln. Die Lage vereint ländliche Idylle mit einem hohen Maß an Lebensqualität und stellt somit einen idealen Wohnort für Familien und Naturliebhaber dar.
Sonstige Angaben
Alle Angaben sind ohne Gewähr und basieren ausschließlich auf Informationen, die uns von unserem Auftraggeber (oder eines Dritten) zur Verfügung gestellt werden.
Wir übernehmen keine Gewähr für die Vollständigkeit, Richtigkeit und Aktualität dieser Angaben.
Besichtigungstermine werden auf Anfrage per E-Mail mit Rückrufnummer vergeben.
(Vorzugsweise erfolgen diese Anfragen mit Bonitätsnachweis einer Bank.)
Ich freue mich auf Ihre Nachricht und einen möglichen Besichtigungstermin.
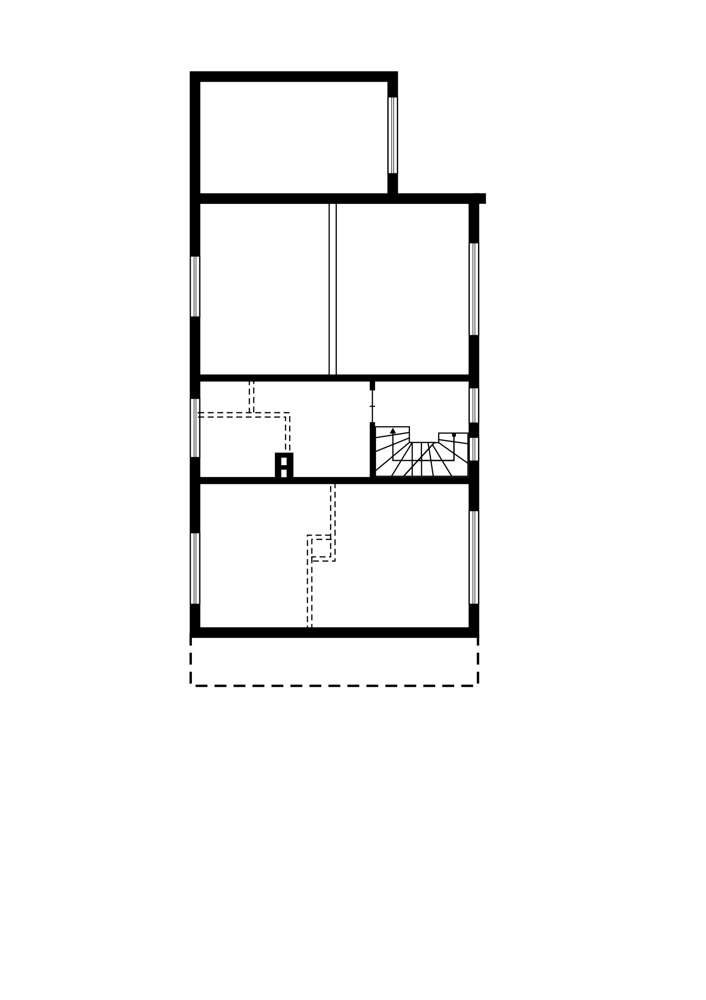
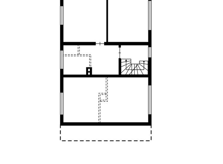
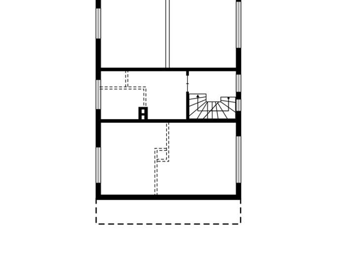
Grundriss
KG
>
>
EG
>
>
OG
>
>
Adresse
53937 Schleiden
Interessante Orte
Preis- und Lageinformationen
Preistrend für Bestandsimmobilien in Schleiden