Objekt-Nummer: F402
Art des Energieausweises: Bedarfsausweis
Endenergiebedarf in kWh/(m² a): 163,9
Wesentlicher Energieträger der Heizung: Erdgas
Energieeffizienzklasse: F
Baujahr lt. Energieausweis: 1964
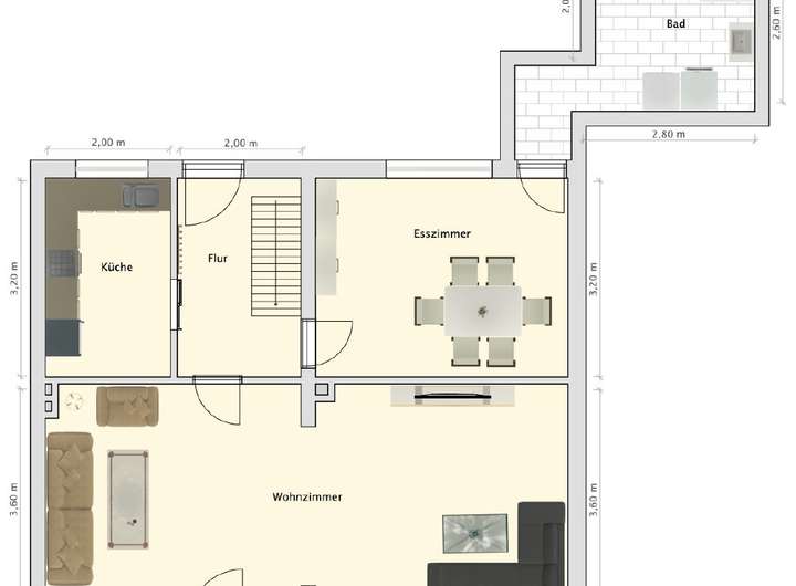
Dieses gepflegte Reihenendhaus aus dem Jahr 1964 überzeugt durch seinen soliden Zustand, eine kontinuierliche Pflege, sowie ein wunderbar großes Grundstück mit rund 381 m² Fläche. Das Haus liegt in einer ruhigen Wohnlage von Varel ideal für Familien oder Paare, die ein behagliches Zuhause mit viel Platz und Gartenidylle suchen. Auf insgesamt ca. 105 m² Wohnfläche und ca. 84 m² Nutzfläche verteilt auf drei Ebenen, bietet das Haus mit sechs Zimmern eine durchdachte Raumaufteilung mit vielfältigen Nutzungsmöglichkeiten.
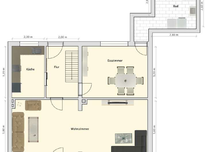
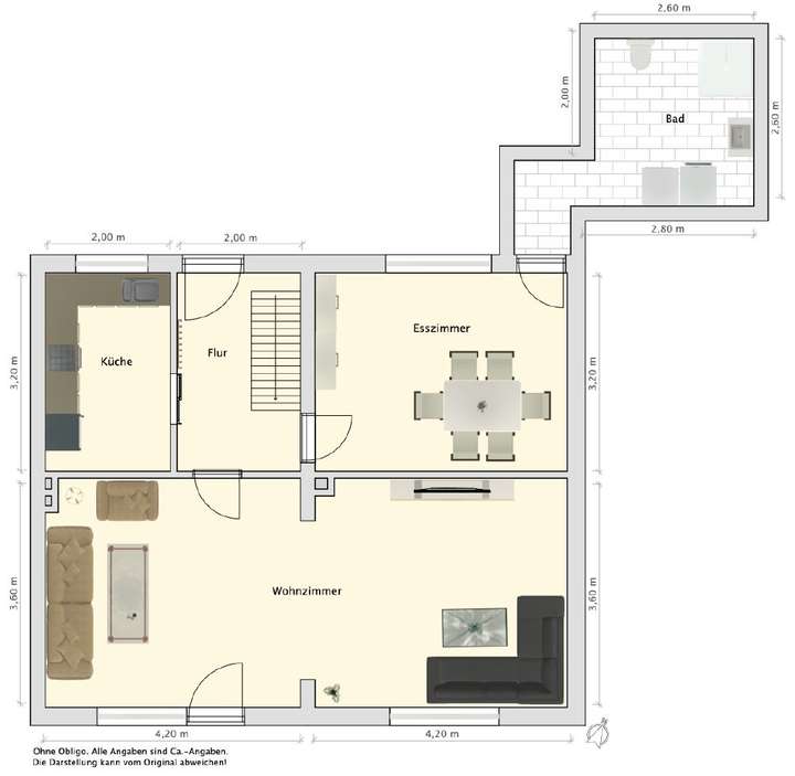
Der Eingangsbereich führt Sie in die gemütliche Küche, die mit einer Einbauküche ausgestattet ist und den Blick ins Grüne öffnet. Das großzügige Wohnzimmer mit direktem Zugang zur Terrasse ist der ideale Ort zum Entspannen. Zusätzlich steht ein weiteres Zimmer zur Verfügung, welches derzeit als Esszimmer genutzt wird. Von hier aus erreichen Sie das Tageslichtbad mit Dusche, WC und praktischem Waschmaschinenanschluss.
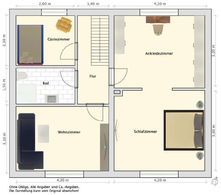
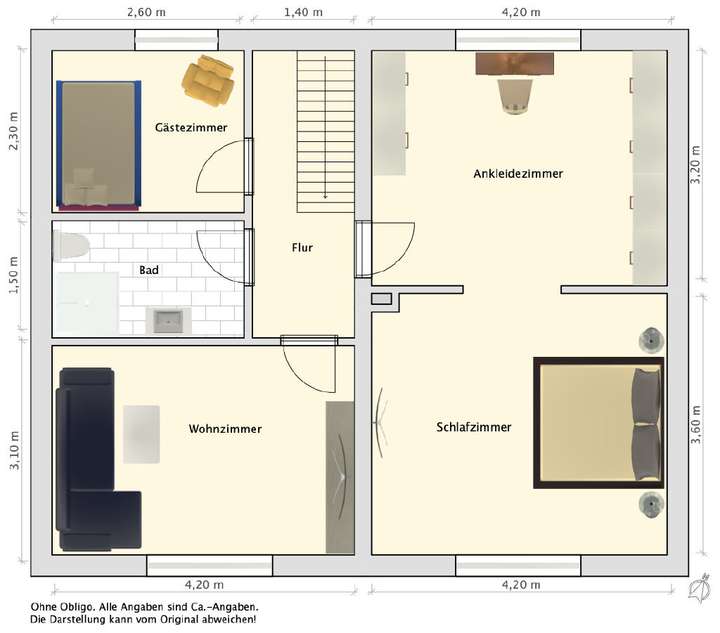
Über die geschwungene Treppe im Flur gelangen Sie in das Obergeschoss. Hier befinden sich drei weitere Zimmer sowie ein zweites Bad mit Dusche und WC. Besonders hervorzuheben ist das großzügige Schlafzimmer: Aufgrund des Durchbruchs wurde es in zwei Bereiche gegliedert perfekt für die Einrichtung eines Ankleidezimmers oder eines Rückzugsbereiches.
Im ausgebauten Dachgeschoss steht ein weiteres Zimmer zur Verfügung, das sich ideal als Gäste- Arbeits- oder Hobbyraum eignet. Zudem bietet auf dieser Ebene der Dachboden zusätzliche Abstellmöglichkeiten.
Der Teilkeller ist über den Flur zugänglich und beherbergt unter anderem die Heizungsanlage sowie nützlichen Stauraum.
Außenbereich: Über einen begrünten Weg gelangen Sie zum Eingang des Hauses. Der liebevoll angelegte Garten bietet vielfältige Gestaltungsmöglichkeiten, ist schön eingewachsen und lädt mit idyllischen Sitzplätzen zum Verweilen ein. Neben einer Garage mit direktem Zugang in den Garten stehen zudem praktische Nebengebäude zur Verfügung, die ideal für Hobby, Werkstatt oder Gartengeräte nützlich sind.
Lage: Das Haus befindet sich in einer ruhigen gewachsenen Wohngegend von Varel. Einkaufsmöglichkeiten, Schulen, Kindergärten, Ärzte und das Krankenhaus sind schnell erreichbar. Das Nordseebad Dangast mit Strand, Kurhaus und maritimem Flair liegt nur ca. 7 Kilometer entfernt perfekt für entspannte Ausflüge ans Meer.
Vereinbaren Sie gerne einen Besichtigungstermin. Wir freuen uns über Ihren Anruf.
Anbieter-Objektnummer: F402
TT bietet an: Gemütliches Reihenendhaus mit großem Garten und Garage in ruhiger Wohnlage von V
26316 Varel
Die vollständige Adresse der Immobilie erhalten Sie vom Anbieter.
Auf Karte anzeigen
Die vollständige Adresse der Immobilie erhalten Sie vom Anbieter.
Finanzierungszertifikat
In nur zwei Minuten zu Ihrem persönlichen Finanzierungszertifkat.
Infos
| Haustyp | Reiheneckhaus |
|---|---|
| Wohnfläche ca. | 105 m2 |
| Grundstücksfläche | 381 m2 |
| Zimmer | 6 |
| Anzahl Garage/Stellplatz | 2 |
Kosten
| Kaufpreis |
180.000 € |
|---|---|
| Provision |
3,57 % inkl. MwSt |
Finanzierungsrechner:
Kaufpreis:
600.000 €
Eigenkapital:
600.000 €
Monatliche Rate
0 €
Effektiver Jahreszins
0 %
Sollzinsbindung
10 Jahre
Bausubstanz & Energieausweis
| Baujahr | 1964 |
|---|---|
| Wesentliche Energieträger | Gas |
| Energieausweis | liegt vor |
| Energieausweistyp | Bedarfsausweis |
| Energieverbrauchskennwert | 163,9 kWh/(m²*a) |
| Energieeffizienzklasse | F |
163,9
kWh/(m²*a)
Energieeffizienzklasse F
- A+
- A
- B
- C
- D
- E
- F
- G
- H
- 0
- 25
- 50
- 75
- 100
- 125
- 150
- 175
- 200
- 225
- >250
Beschreibung des Objekts
Lage
Varel ist eine Stadt und selbständige Gemeinde in Friesland am Jadebusen in Niedersachsen, südlich von Wilhelmshaven. Sie ist mit 23.554 Einwohnern die größte Stadt im Landkreis Friesland. Ihre Beliebtheit als Ferien- und Tagungsort verdankt sie der landschaftlich und klimatisch besonders günstigen Lage am Jadebusen (gemäßigtes Seeklima). Varel liegt südlich des Jadebusens an der Nordsee auf einem Geestrücken. Im Laufe der Stadtentwicklung und in Verbindung mit sicheren Deichen hat sich Varel auch in die niedriger gelegenen Gebiete ausgedehnt.
Östlich von Varel fließt die Wapel, die vor dem Wapeler Siel in die Jade und damit in den Jadebusen fließt. Die Kernstadt Varel wird von der Südender Leke und Nordender Leke als Entwässerungssystem umflossen, die über ein Siel am Vareler Hafen in den Jadebusen entwässern.
Die Umgebung von Varel ist durch Landwirtschaft, Wald und Meer geprägt. Die landwirtschaftlichen Flächen sind zum Teil dem Meer durch Eindeichungen abgetrotzt und zum Teil durch Kultivierung der Moorgebiete urbar gemacht worden.
Während Varel im Norden an den Jadebusen reicht, ist Jade im Landkreis Wesermarsch die östliche Nachbargemeinde. Im Süden grenzt Varel an die Gemeinden Rastede und Wiefelstede im Landkreis Ammerland und im Westen an die Gemeinde Bockhorn. Varel liegt im äußersten Südosten des Landkreises Friesland und hat somit lediglich mit einer einzigen weiteren Kommune des Kreises, nämlich Bockhorn, eine gemeinsame (Land-)Grenze.
Grundriss
Grundriss Erdgeschoss
>
>
Grundriss Obergeschoss
>
>
Adresse
26316 Varel
Interessante Orte
Preis- und Lageinformationen
Preistrend für Bestandsimmobilien in Varel