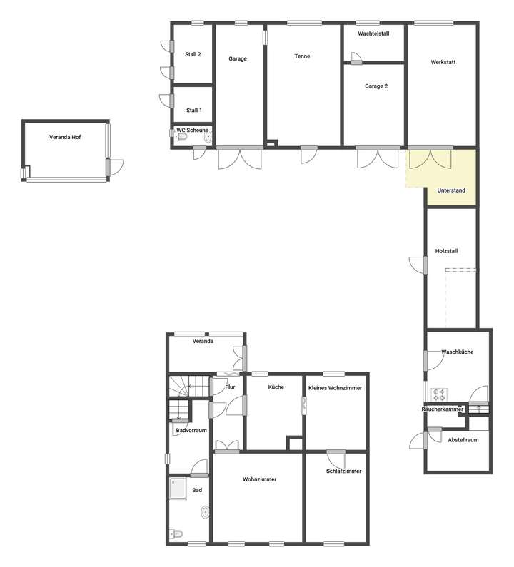
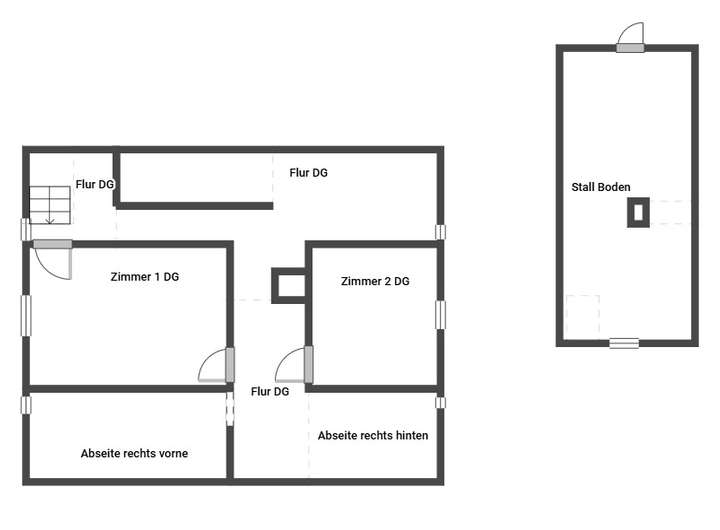
Objekt: Bei dem zu verkaufenden Grundstück handelt es sich um einen ehemaligen kleinen Bauernhof bzw. Gärtnerei in einer der Nebenstraßen des Ortes. Es ist bebaut mit einem Wohnhaus mit Veranda, einem kleinen teilunterkellerten Wirtschaftsgebäude, einem Holzschuppen zur Lagerung von Brennholz, eine Hofveranda auf dem Innenhof und einer Scheune. Das massive, teilunterkellerte Wohnhaus wie auch die anderen massiven Gebäude wurden um 1905 herum gebaut. Das Wohnhaus steht längs zur Straße und hat eine Wohnfläche von ca. 85 m². Das Wohnhaus ist als Hochparterre angelegt und hat einen Eingang über eine in den 1970er Jahren angebaute Veranda im Innenhof. In den 1990er Jahren wurde das Haus in einigen Teilen wie einer neuen Dacheindeckung, den Nachtspeicheröfen, der Sanitär- und teilweise der Elektroinstallation, den neuen Fenstern inkl. Rollläden an den Fenstern im Hof, teilsaniert. Die Fenster zur Straßenseite haben Holzfensterläden. Das Bad wurde 2019 altersgerecht umgebaut. Das Wohnhaus unterteilt sich in den Kellerbereich mit 2 Räumen und einer Nutzfläche von ca. 15 m². Der Keller ist vom Badvorraum aus begehbar. Das Erdgeschoss, das als Hochparterre gebaut wurde, verfügt über 3 Wohn- und Schlafräume unterschiedlicher Größe, eine Veranda, eine Küche, einen Flur mit dem Treppenaufgang zum Dachgeschoss. Das Bad, auch vom Flur zugänglich und der Badvorraum liegen zwei Treppenstufen höher, da sich darunter der Teilkeller befindet Er ist vom Badvorraum zugänglich. Das Bad ist mit Dusche, WC und Waschtisch ausgestattet. Im Badvorraum steht der Waschmaschinenanschluss zur Verfügung. Die Wohnfläche beträgt im Erdgeschoss ca. 60 m². Im Dachgeschoss befinden sich zwei Zimmer mit zusammen ca. 25 m² Wohnfläche. Die restliche Dachbodenfläche und die Abseiten sind nicht ausgebaut, hier steht noch eine Fläche von ca. 35 m² zum Ausbau zur Verfügung, diese wird derzeit als Abstellfläche genutzt. Die Fußböden im Wohnhaus sind mit Teppichböden teilweise mit Laminat und PVC-Bodenbelag ausgestattet, das Bad und der Vorraum sind gefliest, unter den Teppichböden und dem PVC befinden sich teilweise Dielenböden. Die Raumhöhen im Erdgeschoss betragen 2,50 m, im Bad und dessen Vorraum sind es ca. 2,30 m. Die Kellerräume sind mit Ziegelsteinen ausgelegt. Die Kellerdecken sind als Kappendecken ausgeführt. Rechts vom Haus befindet sich das Hoftor und eine Zugangstür zum Innenhof. Rechts neben der Hofzufahrt steht ein kleines massives Wirtschaftsgebäude in Backstein. Es unterteilt sich in eine Waschküche mit Herdanschluss, mit ca. 9 m², dort liegt auch der Zugang zum Teilkeller mit ca. 8 m² Nutzfläche und der eigenen Hauswasseranlage, einem Abstellraum mit daneben liegender Räucherkammer mit ca. 11 m² und dem Zugang zum Dachboden mit ca. 18 m². Die Fußböden im Abstellraum, dem Teilkeller und der Räucherkammer sind mit Ziegelsteinen bestückt, die Waschküche hat einen Estrichboden. Links vom Wirtschaftsgebäude steht der Holzschuppen mit ca. 13 m² Nutzfläche. Die Backsteinscheune, die quer zum Hof steht und den Innenhof vom Garten abgrenzt, hat eine Nutzfläche von ca. 80 m². Sie hat mittig, vom Innenhof aus, ein großes Zufahrtstor, zur sogenannten Tenne. Die Scheune untergliedert sich in drei kleine Stallräume am linken Giebel am Durchgang zum Garten, ein Hof-WC mit Waschbecken ganz links vom Gebäude, zwei Garagen rechts und links vom Scheunentor und ganz rechts eine Werkstatt. In der Tenne kann man den rechts und links liegenden Heuboden erreichen.
Ein ehemaliger kleiner Bauernhof bzw. Gärtnerei bei Neustadt Dosse
Straße der Jugend 9,
16845 Dreetz
Auf Karte anzeigen
Finanzierungszertifikat
In nur zwei Minuten zu Ihrem persönlichen Finanzierungszertifkat.
Infos
| Haustyp | Bauernhaus |
|---|---|
| Etagenzahl | 2 |
| Wohnfläche ca. | 85 m2 |
| Nutzfläche | 105 m2 |
| Grundstücksfläche | 1.500 m2 |
| Bezugsfrei ab | nach Kaufpreiszahlung |
| Zimmer | 5 |
| Schlafzimmer | 3 |
| Badezimmer | 1 |
| Garage/Stellplatz | Garage |
| Anzahl Garage/Stellplatz | 2 |
Kosten
| Kaufpreis |
159.000 € |
|---|---|
| Provision |
3,57 % inkl. MwSt. vom Kaufpreis Die Nachweis- bzw. Vermittlungsprovision für den Käufer beträgt 3,57 % inkl. 19% MwSt., vom Kaufpreis, wenn er als Verbraucher auftritt. |
Finanzierungsrechner:
Kaufpreis:
600.000 €
Eigenkapital:
600.000 €
Monatliche Rate
0 €
Effektiver Jahreszins
0 %
Sollzinsbindung
10 Jahre
Bausubstanz & Energieausweis
| Baujahr | 1905 |
|---|---|
| Letzte Sanierung | 2019 |
| Objektzustand | Renovierungsbedürftig |
| Qualität der Austattung | Einfach |
| Heizungsart | Nachtspeicherofen |
| Wesentliche Energieträger | Strom |
| Energieausweis | liegt vor |
| Energieausweistyp | Verbrauchsausweis |
| Energieverbrauchskennwert | 141,3 kWh/(m²*a) |
| Energieeffizienzklasse | E |
141,3
kWh/(m²*a)
Energieeffizienzklasse E
- A+
- A
- B
- C
- D
- E
- F
- G
- H
- 0
- 25
- 50
- 75
- 100
- 125
- 150
- 175
- 200
- 225
- >250
Beschreibung des Objekts
Ausstattung
Grundstück: Das Grundstück hat eine Größe von ca. 1.500 m² und unterteilt sich in zwei Bereiche, die aufgrund der Bebauung des Grundstücks auch unterschiedlich genutzt wurden. Der vordere Teil umfasst die aufstehenden Gebäude und den Innenhof und hat eine Größe von ca. 610 m². Der sich hinter der Scheune anschließende Garten und die Wiese haben eine Größe von ca. 890 m². Die Straßenfront des Grundstücks beträgt ca. 20 m und es ist links ca. 71 m und rechts ca. 75 m tief ist. Die hintere Grundstücksbreite beträgt ca. 22 m. Das Grundstück ist komplett eingezäunt. Zum Teil stehen noch eine Reihe alter Obstbäume auf dem hinteren Grundstück, wie auch ein kleines Gewächshaus und ein ehemaliger Hühnerstall. Bei Wunsch besteht noch die Möglichkeit, ein rechts vom Grundstück, in Höhe des hinteren Gartens liegendes, in sich gefangenes, Gartengrundstück mit einer Größe von ca. 515 m² mitzuerwerben. Hinter diesem Teilstück liegen noch ca. 1.000 m² Gartenland, das der Gemeinde gehört und auch ohne einen eigenen Zugang ist, das ebenfalls erworben werden kann. Es handelt sich um Gartenland.
Erschließung: Auf dem Grundstück bzw.im Haus liegen Trinkwasser, Abwasser Strom und Telefon inkl. Glasfaser an. Der Glasfaseranschluss liegt bereits im Haus. In der vor dem Grundstück verlaufenden Straße liegt Erdgas an. Das Wohnhaus wird im Erdgeschoss mit Nachtspeicheröfen inkl. neuen elektrischen Anschlüssen und einem separaten Digitalzähler versorgt. Das gleiche gilt für die dezentrale Warmwassererzeugung im Haus. Für das Bad steht ein ca. 100 l fassender elektrischer Boiler, der im Keller installiert ist, zur Verfügung. In der Küche war ein 25l Elektroboiler installiert. Im vorderen kleinen Wohnzimmer, mit Durchbruch zum Schlafzimmer, steht ein Warmluftkachelofen zu Verfügung. Im hinteren Zimmer im Dachgeschoss steht ein transportabler Kohleofen. Das vordere Zimmer im Dachgeschoss hat einen Nachtspeicherofen. Im Keller der Waschküche ist eine Eigenwasserversorgungsanlage mit Druckbehälter installiert. Eine weitere Brunnenversorgung für den Garten ist über eine transportable Anlage, die neben dem Gewächshaus liegt, möglich. Die Straße und der Fußweg vor dem Grundstück, die Straßenbeleuchtung und die Medienzuführungen sind nach 2.000 komplett erneuert worden. Es handelt sich um eine ausgebaute Anliegerstraße.
Kaufpreis: Der Kaufpreis beträgt 159.000,- €. Die jährliche Grundsteuer beläuft sich auf 88,15 €. Die Gebühren für die Abfallwirtschaft betragen 106,70 €.
Eigentum: Das zu verkaufende befindet sich in Privatbesitz. Die Eigentumsverhältnisse sind klar geregelt. Die jetzigen Eigentümer sind im Grundbuch eingetragen. Das Grundbuch ist lastenfrei.
Dieses Exposé gilt als Objektnachweis und ist nur für den Empfänger bestimmt. Die Nachweis- bzw. Vermittlungsprovision für den Käufer beträgt 3,57% inkl. 19% MwSt., wenn er als Verbraucher auftritt.
Sie ist verdient und fällig mit Beurkundung des notariellen Kaufvertrages. Der Immobilienmakler hat einen provisionspflichtigen Maklervertrag mit den Verkäufern in gleicher Höhe abgeschlossen.
Tritt ein Erwerber als Bauträger oder gewerblicher Nutzer auf, beträgt die Provision 7,14% vom Kaufpreis inkl. 19% MwSt. und wird allein vom Käufer getragen.
Die vorstehenden Angaben beruhen auf Aussagen und Unterlagen der Eigentümer, für deren Richtigkeit wir, trotz sorgfältiger Bearbeitung keine Gewähr übernehmen können.
Lage
Lage: Das Grundstück liegt am nördlichen Ortsrand von Dreetz nicht weit von größeren Waldgebieten entfernt. Dreetz ist ein relativ großer Ort, der sich entlang des Rhinluchs erstreckt. Dreetz selbst hat die Siedlungsform eines Sackgassendorfes. Der Ort liegt etwas im Wahrnehmungsschatten der Pferdestadt Neustadt (Dosse). Er kann aber durch seine landschaftliche Schönheit Punkten. Hierzu gehören die Wälder, in die die Gemeinde eingebettet ist und die wunderschöne Luchlandschaft mit ihren sich dahinschlängelnden Kanälen. Eine dieser Wasseradern speist auch den Dreetzer See, der zum Naturpark Westhavelland gehört. Hier findet der Besucher eine Naturbadestelle, ein Anglerparadies, einen Kahnhafen und das Wappentier des Ortes, den Biber, in freier Wildbahn. Und wer stehen bleibt bei seinem Rundgang um den Dreetzer See, der kann auch beobachten, wie der Seeadler seine Kreise zieht. Da Dreetz von der Pferdestadt Neustadt touristisch geprägt ist und hier das Dorfbild über Jahrhunderte von Pferden bestimmt wurde, finden Sie in Dreetz natürlich auch den Pferdetourismus. Die Reiterhöfe laden zum Besuch ein u. a. auch über den Reitwanderweg Neustadt-Redefin nach Mecklenburg-Vorpommern.
Sonstige Angaben
Standort: Das Grundstück liegt ca. 7 km südlich von Neustadt (Dosse) umgeben von viel Wald, Weiden und Ackerflächen und nur ca. 1,5 km vom Dreetzer See entfernt. Dreetz mit seinen ca. 1.100 Einwohnern ist eine selbstständige Gemeinde. Die Verwaltungsfunktionen werden über das Amt Neustadt (Dosse) wahrgenommen. Neustadt (Dosse) ist eine Kleinstadt im Landkreis Ostprignitz-Ruppin und hat ca. 4.000 Einwohnern Die Stadt wird seit über 200 Jahren durch die größte Gestütsanlage Deutschlands geprägt und nennt sich zu Recht ,,Stadt der Pferde''. Friedrich Wilhelm II, preußischer König (1744-1797), begründet die Tradition der Pferdezucht in Neustadt und veranlasste 1788 die Errichtung des nach ihm benannten Neustädter Hauptgestütes. Das Areal umfasst ca. 400 Hektar. Aufgrund seiner einmaligen Schönheit steht die gesamte Anlage unter Denkmalschutz und zieht jährlich Tausende Besucher an. Die barocken, schlossartigen Hauptgebäude der Gestüte sowie die großzügig angelegten Anlagen mit Wohn-, Stall- und Wirtschaftsgebäuden, 1787-1791 erbaut, laden zu einer Besichtigung ein. Baumalleen durchziehen die Anlagen, die in Verbindung mit den Reit- und Wanderwegen um Neustadt ein dichtes Wegenetz für Reiter und Spaziergänger bilden. Heute ist Neustadt Hauptort der Pferdezucht in Brandenburg. Neustadt ist neben dem Gestüt aber auch durch eine gute Infrastruktur gekennzeichnet. Hier ist alles vorhanden, was man zum täglichen Leben zur Bildung benötigt. In Neustadt (Dosse) existiert ein breit gefächertes Kinder- und Jugendangebot bis hin zu einer Gesamtschule mit Abiturstufe inkl. Reitausbildung. Der Ort ist über seinen Bahnhof mit den stündlich verkehrenden Regionalzügen an die Zentren unseres Landes angebunden. Berlin-Spandau erreicht man in ca. 45 min, den Berliner Hauptbahnhof in ca. 60 min. Auch per Auto gelangt man über die, Bundesstraße 5 schnell nach Berlin oder Potsdam. Zur Autobahn A 24 Abfahrt Neuruppin sind es ca. 25 km.
Grundriss
Flurlage Dreetz (1)
>
>
Raumlage EG (1)
>
>
Raumlage KG (1)
>
>
Raumlage OG (1)
>
>
Adresse
Straße der Jugend 9, 16845 Dreetz
Interessante Orte
Preis- und Lageinformationen
Preistrend für Bestandsimmobilien in Dreetz