Willkommen in Ihrem neuen Zuhause in Jever! Dieses moderne und hochwertige Reihenmittelhaus bietet Ihnen auf insgesamt ca. 101 m² Wohnfläche genügend Platz für entspanntes Wohnen auf zwei Etagen.
Mit insgesamt 3 Zimmern, davon 2 Schlafzimmern und 2 Badezimmern, bietet dieses Haus genügend Raum für individuelle Nutzungsmöglichkeiten. Die offene und helle Gestaltung des Wohnbereichs lädt zum Verweilen ein und lässt viel Raum für kreative Einrichtungsideen. Der kleine aber feine Außenbereich mit einer Gartenfläche von ca 80m² bietet viele Gestaltungsmöglichkeiten an. Hier können Sie die warmen Tage des Jahres in Ruhe genießen und Ihre eigene grüne Oase gestalten. Ein Stellplatz ist ebenfalls vorhanden, um Ihr Auto sicher abzustellen.
Die ruhige Lage in Jever bietet Ihnen gleichzeitig eine gute Anbindung an die Innenstadt und alle wichtigen Einrichtungen des täglichen Bedarfs. Profitieren Sie von einem angenehmen Wohnumfeld und einer guten Nachbarschaft.
Dieses Reihenmittelhaus ist eine einzigartige Gelegenheit für moderne und anspruchsvolle Käufer, die auf der Suche nach einem hochwertigen Zuhause sind. Überzeugen Sie sich selbst von den Vorzügen dieser Immobilie und vereinbaren Sie noch heute einen Besichtigungstermin mit unserem erfahrenen Immobilienmakler-Team.
Modernes Mittelreihenhaus für die kleine Familie im schönen Jever
26441 Jever
Die vollständige Adresse der Immobilie erhalten Sie vom Anbieter.
Auf Karte anzeigen
Die vollständige Adresse der Immobilie erhalten Sie vom Anbieter.
Finanzierungszertifikat
In nur zwei Minuten zu Ihrem persönlichen Finanzierungszertifkat.
Infos
| Haustyp | Reihenmittelhaus |
|---|---|
| Etagenzahl | 2 |
| Wohnfläche ca. | 101 m2 |
| Nutzfläche | 5 m2 |
| Grundstücksfläche | 160 m2 |
| Bezugsfrei ab | 2025-10-01 |
| Zimmer | 3 |
| Schlafzimmer | 2 |
| Badezimmer | 2 |
| Garage/Stellplatz | Außenstellplatz |
| Anzahl Garage/Stellplatz | 1 |
Kosten
| Kaufpreis |
319.000 € |
|---|---|
| Provision |
3.57 % inkl. MwSt. Bei Abschluss eines notariellen Kaufvertrages ist eine Käuferprovision vom Käufer in Höhe von 3.57 % inkl. MwSt. aus dem Kaufpreis fällig. |
Finanzierungsrechner:
Kaufpreis:
600.000 €
Eigenkapital:
600.000 €
Monatliche Rate
0 €
Effektiver Jahreszins
0 %
Sollzinsbindung
10 Jahre
Bausubstanz & Energieausweis
| Baujahr | 2019 |
|---|---|
| Objektzustand | Neuwertig |
| Qualität der Austattung | Normal |
| Heizungsart | Gas-Heizung |
| Wesentliche Energieträger | Gas |
| Energieausweis | liegt vor |
| Energieausweistyp | Bedarfsausweis |
| Energieverbrauchskennwert | 153,4 kWh/(m²*a) |
| Energieeffizienzklasse | E |
153,4
kWh/(m²*a)
Energieeffizienzklasse E
- A+
- A
- B
- C
- D
- E
- F
- G
- H
- 0
- 25
- 50
- 75
- 100
- 125
- 150
- 175
- 200
- 225
- >250
Beschreibung des Objekts
Ausstattung
- Baujahr 2019
- Zwei Bäder
- Fußbodenheizung
- Terrasse
- Stellplatz vor dem Haus
- Dachboden als Stellfläche
- Zwei Schlafzimmer
- Drei Zimmer
- Keine Küche
- Geräte/ Fahrradschuppen
Lage
Dieses charmante Reihenhaus befindet sich in einer ruhigen und familienfreundlichen Wohngegend im schönen Jever – einer Stadt, die durch ihre historische Altstadt, ihre hohe Lebensqualität und ihre Nähe zur Nordsee besticht.
Die Immobilie liegt in einem gepflegten Wohnviertel mit überwiegend Einfamilien- und Reihenhäusern. Durch die verkehrsberuhigte Umgebung ist ein entspanntes und sicheres Wohnen möglich – ideal für Familien mit Kindern, Paare oder alle, die ein ruhiges Zuhause mit guter Anbindung suchen. Grünflächen und kleine Spielplätze befinden sich in unmittelbarer Nähe und laden zum Verweilen ein. Dennoch profitieren Sie von einer sehr guten Infrastruktur: Einkaufsmöglichkeiten, Bäckereien, Apotheken und Ärzte sind bequem mit dem Fahrrad oder Auto erreichbar. Auch Kindergärten und Schulen liegen in komfortabler Entfernung, was den Alltag besonders angenehm macht. Die historische Innenstadt von Jever mit ihrem vielfältigen Angebot an Cafés, Restaurants und Geschäften ist nur wenige Minuten entfernt und bietet eine charmante Mischung aus Kultur und Lebensfreude. Wer gerne aktiv ist, findet in der Umgebung zahlreiche Freizeit- und Sportmöglichkeiten – vom Joggen im Grünen bis hin zu Ausflügen an die Nordseeküste. Dank der guten Verkehrsanbindung erreichen Sie auch die umliegenden Städte sowie die Autobahn A29 zügig, was den Standort besonders attraktiv für Pendler macht. Insgesamt bietet diese Lage eine gelungene Kombination aus Ruhe, guter Versorgung und hoher Lebensqualität – ein idealer Ort, um anzukommen und sich wohlzufühlen.
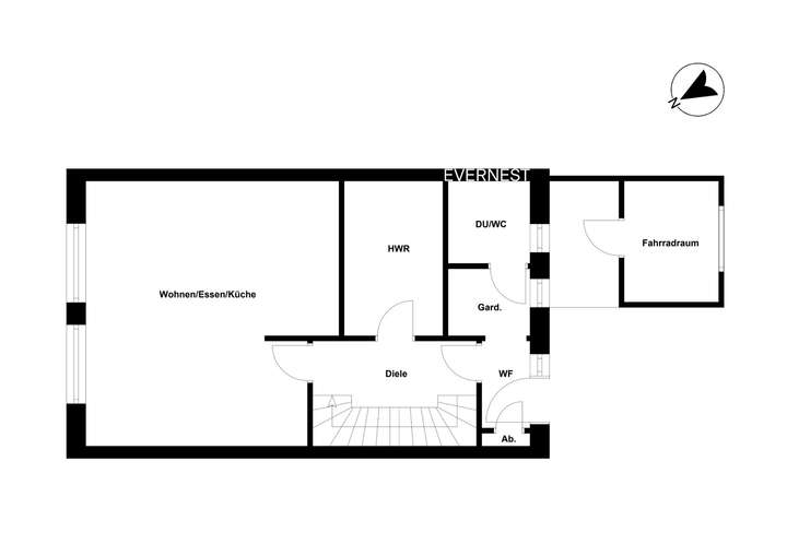
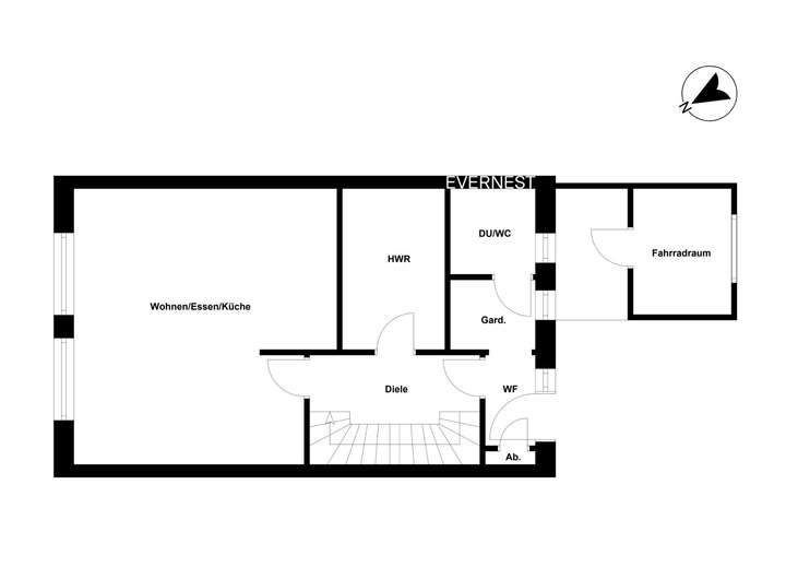
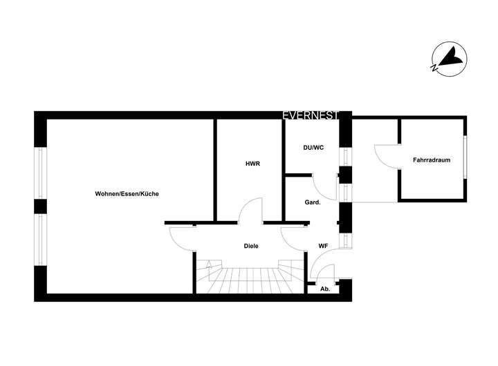
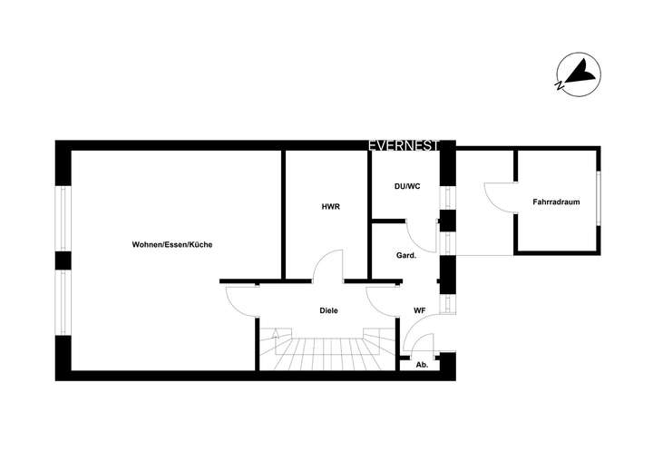
Grundriss
Erdgeschoss
>
>
1.Obergeschoss
>
>
Adresse
26441 Jever
Interessante Orte
Preis- und Lageinformationen
Preistrend für Bestandsimmobilien in Jever