Zum Verkauf steht ein attraktives Gewerbegrundstück in verkehrsgünstiger Lage von Oldenburg-Ohmstede. Für das Grundstück liegt eine rechtskräftige Baugenehmigung (erteilt am 30.09.2025) zum Neubau eines modernen Betriebsgebäudes mit Doppelparkanlage vor.
Das Projekt wurde im vereinfachten Baugenehmigungsverfahren (§ 63 NBauO) geprüft und genehmigt.
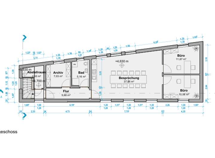
Bauliche Eckdaten laut Genehmigung:
- Genehmigtes Bauvorhaben: Betriebsgebäude mit Doppelparkanlage
- Grundflächenzahl (GRZ) / Geschossflächenzahl (GFZ): nach Bebauungsplan Nr. 398
- Einstellplätze: 4 genehmigte Kfz-Stellplätze
- Pflicht zur Installation einer Solaranlage auf mindestens 50 % der Dachfläche (§ 32a NBauO)
- Niedrigstenergiegebäude-Standard gemäß Gebäudeenergiegesetz (GEG)
- Anschluss an öffentliche Versorgungssysteme (OOWV, Avacon) gesichert
- Keine Altlasten oder Kampfmittelverdachtsflächen laut Stellungnahme der Stadt Oldenburg
Baugrundstück für Klein- bis Mittelständigen Betrieb inkl. Baugenehmigung
26125 Oldenburg (Oldenburg)
Die vollständige Adresse der Immobilie erhalten Sie vom Anbieter.
Auf Karte anzeigen
Die vollständige Adresse der Immobilie erhalten Sie vom Anbieter.
Finanzierungszertifikat
In nur zwei Minuten zu Ihrem persönlichen Finanzierungszertifkat.
Infos
| Vermarktungsart | Kaufen |
|---|---|
| Grundstücksfläche | 340 m2 |
| Erschließung | Erschlossen |
Kosten
| Miete pro Jahr |
160.000 € |
|---|---|
| Provision |
7,14% inkl. MwSt. |
Finanzierungsrechner:
Kaufpreis:
600.000 €
Eigenkapital:
600.000 €
Monatliche Rate
0 €
Effektiver Jahreszins
0 %
Sollzinsbindung
10 Jahre
Beschreibung des Objekts
Lage
Das Grundstück befindet sich im beliebten Stadtteil Ohmstede, einem etablierten Gewerbe- und Mischgebiet im Nordosten Oldenburgs.
Die Anbindung an die Innenstadt, die A28 sowie die A29 ist hervorragend. Öffentliche Verkehrsmittel und Versorgungseinrichtungen befinden sich in unmittelbarer Nähe.