Grundstück mit Haus, Gartenparadies und Neubaupotenzial
Willkommen an einem Ort, der Raum für Ideen bietet. Dieses ca. 723 m² große Grundstück liegt in einer ruhigen Wohnlage und eignet sich ideal für alle, die neu bauen oder ein charmantes Bestandsobjekt nach eigenen Vorstellungen gestalten möchten.
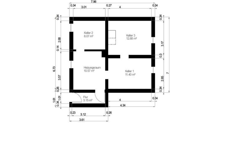
Das freistehende Einfamilienhaus aus dem Jahr 1936 mit Anbau von 1965 bietet ca. 115 m² Wohnfläche plus rund 50 m² Nutzfläche im Untergeschoss. Es ist solide, bewohnbar und kann Schritt für Schritt modernisiert oder durch einen Neubau ersetzt werden – ganz nach Ihrem Konzept.
Das Highlight: das weitläufige Grundstück mit viel Privatsphäre und Platz für Gartenfreunde, Familien oder Bauherren. Laut Bebauungsplan ist eine Neubebauung grundsätzlich möglich, wie mehrere Nachbarn bereits vorgemacht haben.
Wer lieber Bestand nutzt, findet hier eine gepflegte Immobilie mit ehrlichem Modernisierungsbedarf. Heizung, Fenster und Dämmung lassen sich nach eigenem Tempo und Geschmack erneuern. So entsteht ein Zuhause, das zu Ihnen passt – ohne Aufpreis für fremde Vorstellungen.
Ob Eigennutzung, Neubau oder Projektentwicklung: Diese Immobilie bietet maximale Flexibilität.
Jetzt Exposé anfordern und mehr über das Grundstück und die Möglichkeiten erfahren.
Habl Immobilien - Großzügiges Grundstück in ruhiger Wohnlage
55129 Mainz
Die vollständige Adresse der Immobilie erhalten Sie vom Anbieter.
Auf Karte anzeigen
Die vollständige Adresse der Immobilie erhalten Sie vom Anbieter.
Finanzierungszertifikat
In nur zwei Minuten zu Ihrem persönlichen Finanzierungszertifkat.
Infos
| Vermarktungsart | Kaufen |
|---|---|
| Grundstücksfläche | 723 m2 |
| Erschließung | Erschlossen |
| Grundflächenzahl (GRZ) | 0.3 |
| Geschossflächenzahl (GFZ) | 0.6 |
| Bebaubar nach | Bebauungsplan |
| Verfügbar ab | Ab sofort nach Absprache |
Kosten
| Miete pro Jahr |
595.000 € |
|---|---|
| Provision |
3,57%inkl. MwSt |
Finanzierungsrechner:
Kaufpreis:
600.000 €
Eigenkapital:
600.000 €
Monatliche Rate
0 €
Effektiver Jahreszins
0 %
Sollzinsbindung
10 Jahre
Beschreibung des Objekts
Lage
Das Grundstück befindet sich in einer verkehrsberuhigten Sackgasse, in die ausschließlich Anwohner fahren – ideal für Familien mit Kindern, die Wert auf Sicherheit und ein entspanntes Wohnumfeld legen. Trotz der idyllischen Lage ist die Anbindung hervorragend: Die nächste Straßenbahn- und Bushaltestelle ist fußläufig erreichbar – so sind Sie in rund 20 Minuten in der Mainzer Innenstadt. Auch Pendler profitieren: In nur 2 Autominuten erreichen Sie die A60 und sind damit flexibel in alle Richtungen unterwegs.
Hechtsheim selbst ist ein gewachsener Stadtteil mit hoher Lebensqualität. Schulen, Kitas, Ärzte, Apotheken und Einkaufsmöglichkeiten befinden sich in unmittelbarer Nähe und machen den Alltag angenehm unkompliziert. Zudem laden zahlreiche Spielplätze, Felder und Weinberge in der Umgebung zu Spaziergängen und Freizeitaktivitäten ein. Kurz gesagt: Eine Lage, die den Spagat zwischen Familienidylle und Stadtnähe perfekt meistert.
Sonstige Angaben
SIE KAUFEN DIESE, WIR VERKAUFEN IHRE DERZEITIGE IMMOBILIE!
Sie müssen erst noch Ihre aktuelle Immobilie verkaufen, bevor Sie über einen Umzug nachdenken können? Kein Problem, kontaktieren Sie uns. Wir sorgen für einen reibungslosen Übergang.
Um eine Zeitverzögerung bei der Versendung des Exposès zu vermeiden, bitten wir Sie bei Ihrer Anfrage, Ihre vollständige Adresse, Telefonnummer sowie Ihre Email Adresse zu hinterlassen.
Alle Angaben sind ohne Gewähr und basieren ausschließlich auf Informationen, die uns von unserem Auftraggeber zur Verfügung gestellt wurden.
Wir übernehmen keine Gewähr für die Vollständigkeit, Richtigkeit und Aktualität dieser Angaben.
Weitere Angebote finden Sie auf unserer Webseite: https://habl-immobilien.de
Grundriss
Grundriss Erdgeschoss
>
>
Grundriss Dachgeschoss
>
>
Grundriss Untergeschoss
>
>