Starten Sie Ihr Bauprojekt mit einem modernen Einfamilienhaus! Dieses Haus bietet Raum für alle Lebensphasen – ob für junge Familien, Paare oder als gemütlicher Altersruhesitz. Gestalten Sie das Haus nach Ihren Wünschen und genießen Sie energieeffizientes Wohnen in bester Lage. Jetzt informieren und Ihren Wohntraum verwirklichen!
Jetzt zugreifen: Bauland & Danhaus-Kombination zum Wohlfühlen!
41366 Schwalmtal
Die vollständige Adresse der Immobilie erhalten Sie vom Anbieter.
Auf Karte anzeigen
Die vollständige Adresse der Immobilie erhalten Sie vom Anbieter.
Finanzierungszertifikat
In nur zwei Minuten zu Ihrem persönlichen Finanzierungszertifkat.
Infos
| Vermarktungsart | Kaufen |
|---|---|
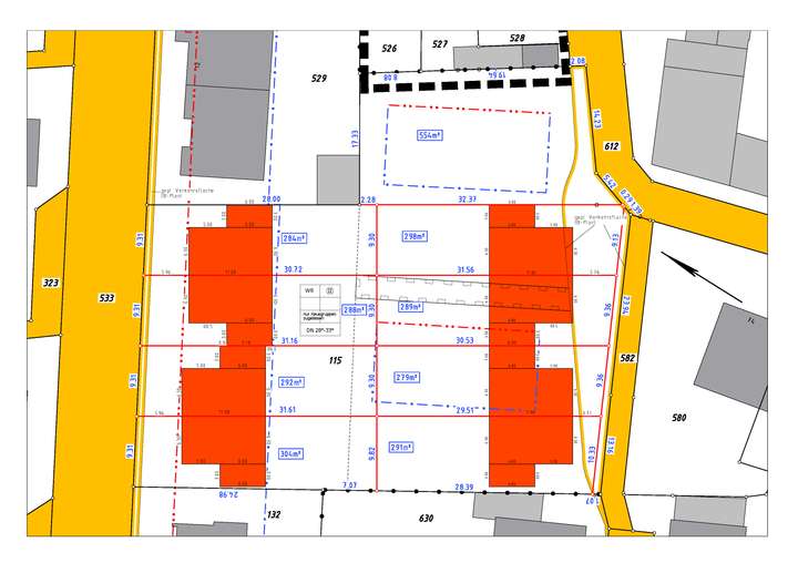
| Grundstücksfläche | 554 m2 |
Kosten
| Miete pro Jahr |
124.480 € |
|---|---|
| Provision | Nein |
Finanzierungsrechner:
Kaufpreis:
600.000 €
Eigenkapital:
600.000 €
Monatliche Rate
0 €
Effektiver Jahreszins
0 %
Sollzinsbindung
10 Jahre
Beschreibung des Objekts
Lage
Ihr neues Zuhause wartet auf Sie – jetzt ein Baugrundstück sichern! Kontakt unter 0160 - 99 11 50 50.
In diesem exklusiven kleinen Baugebiet bieten wir Ihnen die einmalige Gelegenheit, Ihren Wohntraum zu verwirklichen! Zur Auswahl stehen sechs Doppelhaushälften oder drei freistehende Einfamilienhäuser – ideal für Familien und alle, die sich ein ruhiges Zuhause mit modernen Standards wünschen.
Warum dieses Baugebiet?
Baurechtliche Klarheit: Alle rechtlichen Voraussetzungen für den Bau sind bereits geklärt, sodass Sie sich auf die wichtigen Schritte fokussieren können.
Bezahlbare Baugrundstücke: Nutzen Sie die Chance, ein bezahlbares Grundstück in dieser begehrten Lage zu sichern.
Nachhaltiger Bau mit Danhaus: Die Hybridbauweise von Danhaus kombiniert die Vorteile von Holz und Massivbau und bietet Ihnen ein energieeffizientes, langlebiges Zuhause – ideal für eine nachhaltige Zukunft.
Bauen Sie mit Danhaus, dem Experten für Hybridhäuser, und profitieren Sie von innovativem Hausbau, einzigartiger Wärmedämmung und stilvollem Design. Verwirklichen Sie Ihren Traum vom Eigenheim und lassen Sie sich von uns zu Ihrem neuen Zuhause führen.
Starten Sie jetzt mit uns! Vereinbaren Sie noch heute ein Beratungsgespräch, um Ihr Grundstück zu sichern und den Weg zu Ihrem Danhaus-Traumhaus zu ebnen.
Das Grundstück befindet sich in toller Lage, das sowohl die Ruhe des Grünen als auch die Nähe zur städtischen Infrastruktur bietet. Genießen Sie die Vorzüge einer friedlichen, naturverbundenen Umgebung, die perfekt für Familien oder diejenigen ist, die sich nach einer Oase der Ruhe im Alltag sehnen.
Sonstige Angaben
Verwirklichen Sie Ihren Traum vom eigenen Zuhause - sorgenfrei und entspannt.
Mit uns bauen Sie nicht nur ein Haus, sondern Ihr persönliches Wohlfühlparadies. Wir bieten Ihnen alles aus einer Hand: von der umfassenden Budgetplanung über die individuelle Hausplanung bis hin zur schlüsselfertigen Fertigstellung.
Unser Rundum-Sorglos-Paket:
Budgetplanung: Wir erstellen eine detaillierte Kostenaufstellung für Haus und Grundstück und finden die optimale Finanzierung für Ihr Budget.
Finanzierungsberatung: Wir präsentieren Ihnen verschiedene Finanzierungsmöglichkeiten und zeigen Ihnen, wie Sie Geld sparen und staatliche Förderungen in Anspruch nehmen können.
Grundstückssuche: Wir haben das passende Grundstück in Ihrer Wunschregion, das perfekt zu Ihren Bedürfnissen und Vorstellungen passt.
Hausplanung: Wir entwerfen gemeinsam mit Ihnen Ihr Traumhaus - ganz nach Ihren individuellen Wünschen und Anforderungen.
Bauausführung: Wir kümmern uns um die gesamte Bauphase - von der Baugenehmigung bis zur schlüsselfertigen Fertigstellung. Entspannen Sie sich und genießen Sie den Weg zu Ihrem Traumhaus! Wir kümmern uns um alles - Sie müssen sich um nichts kümmern.
Vereinbaren Sie noch heute ein kostenloses Beratungsgespräch und lassen Sie sich von uns inspirieren!
Ich zeige Ihnen wie Sie günstig zu Ihrem Traumhaus kommen und freue mich darauf mit Ihnen zusammen ihr Traumhaus zu realisieren!
Ihr Verkaufsberater Paulo Granja
+49 178 71 28 112
Anbauteile, Carport, Garage und Keller können Extras sein, die als Sonderausstattung angeboten werden. Abbildungen, Grundrisse und Flächenangaben sind beispielhaft und können Extras zeigen. Flächenangaben nach DIN 277.
Grundriss
Lageplan
>
>