Die Architektur
Ein seitlicher Gebäudeversatz ist der Clou dieser 2-geschossigen Stadtvilla mit Flachdach. Durch den Gebäudeversatz entsteht an der Frontseite ein praktischer überdachter Eingangsbereich und an der Gartenseite eine behagliche überdachte Terrasse, die auch bei weniger gutem Wetter den Außenbereich schützt und so die Nutzungsmöglichkeiten erhöht. Zwei große Panorama-Hebeschiebetüren und weitere große Fenster öffnen die STREIF-Villa zur Terrasse und zum Garten hin und bringen die Natur ins Haus.
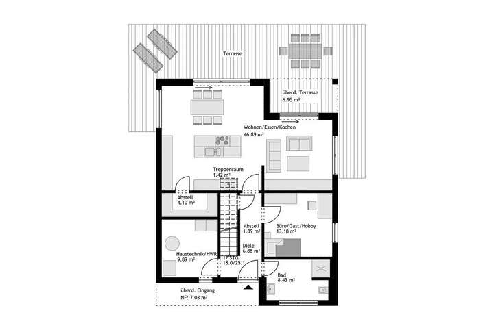
Die Grundrissgestaltung
Im Zentrum des 47 m² großen Wohn-/Ess- und Kochbereiches steht eine große Küche mit Küchenblock und einem großen Esstisch, der direkt vor der Panorama-Hebeschiebetüre platziert werden kann. Wintergartenfeeling pur fürs Kochen, beim Essen und zum Genießen. Der Wohn- und TV-Loungebereich bietet ebenfalls komfortablen Platz.
Ein praktischer Abstellraum liegt direkt an der Küche. Ein Zusatzraum, der als Büro, Gästezimmer oder Hobbyraum genutzt werden kann, erhöht die Nutzungsflexibilität. Ein Duschbad im Erdgeschoss bietet weiteren Komfort und macht mit dem Zusatzraum auch das zukünftige Wohnen auf einer Etage möglich. Ein Haustechnik-/Hauswirtschaftsraum und eine Diele komplettieren das Erdgeschoss.
Im Obergeschoss befinden sich mit je 16 m² zwei gleich große Kinderzimmer. Der Elternbereich bietet den Komfort einer Ankleide. Im Obergeschoss ist ein Raum vorgesehen, der als Hauswirtschafts-/Lagerraum verwendet werden kann. Ein großes Familienbad und ein Flurbereich vervollständigen das Raumangebot im Obergeschoss.
Die Grundrisse sind Gestaltungsideen und können individualisiert werden. Eine Nachhaltigkeitszertifizierung nach QNG ist bereits enthalten.
Die Hausdaten
Bauart: 2-geschossige STREIF-Stadtvilla
Dachform: Flachdach
Netto-Raumfläche 212,77 m²
Außenmaße 9,95 m x 12,455 m
Energieeffizienzhaus 40
Ausbaustufe schlüsselfertig
Die Highlights
-Überdachte Terrasse
-Überdachter Eingang
-Zusatzraum im Erdgeschoss für Gäste/Büro/Hobby
-Zusätzliches Duschbad im Erdgeschoss
** Sie suchen eine exklusive Lage mit tollem Haus - gefunden / Klinkeraktion! **
30625 Hannover
Die vollständige Adresse der Immobilie erhalten Sie vom Anbieter.
Auf Karte anzeigen
Die vollständige Adresse der Immobilie erhalten Sie vom Anbieter.
Finanzierungszertifikat
In nur zwei Minuten zu Ihrem persönlichen Finanzierungszertifkat.
Infos
| Haustyp | Einfamilienhaus |
|---|---|
| Etagenzahl | 2 |
| Wohnfläche ca. | 215 m2 |
| Nutzfläche | 25 m2 |
| Grundstücksfläche | 948 m2 |
| Zimmer | 6 |
| Schlafzimmer | 5 |
| Badezimmer | 2 |
| Garage/Stellplatz | Carport |
| Anzahl Garage/Stellplatz | 1 |
Kosten
| Kaufpreis |
1.448.536 € |
|---|---|
| Preis für Garage/Stellplatz | 20.000 € |
| Provision | Nein |
Finanzierungsrechner:
Kaufpreis:
600.000 €
Eigenkapital:
600.000 €
Monatliche Rate
0 €
Effektiver Jahreszins
0 %
Sollzinsbindung
10 Jahre
Bausubstanz & Energieausweis
| Baujahr | 2025 |
|---|---|
| Bauphase | Haus in Planung (projektiert) |
| Qualität der Austattung | Luxus |
| Heizungsart | Wärmepumpe |
| Energieausweis | liegt zur Besichtigung vor |
Beschreibung des Objekts
Ausstattung
Änderungen erwünscht!
Wir planen nach Ihren Vorstellungen, der Grundriss lässt sich Innen noch verändern. Auch die Hausbreite wäre noch anpassbar.
Garantiert:
5 Monate Bauzeit
Alles Inklusive:
-Fundament, Bodenplatte und Erdarbeiten
-Arbeitsgerüst
-Bauleitung
-Krankosten
-Baustellentoilette
-Entsorgung Bauabfälle
-Statik
-Wärmeschutznachweis mit Blower-Door Test
-freie Grundrissänderung ohne Mehrpreis
-Mehrfach ausgezeichnete Qualität
STREIF-Häuser erfüllen bereits im Standard die Effizienzhaus-Klasse KFN-NH.
Die STREIF-Passiv-Haus-Wände, eine effiziente Heiztechnik mit integrierter Wohnraumlüftung und Wärmerückgewinnung garantieren einen geringen Energieverbrauch und ein fantastisches Raumklima, das insbesondere Allergiker aufatmen lässt.
STREIF Leistungen sind MEHR WERT - schon im Grundpreis enthalten!
- 20-monatige Festpreisgarantie
- inkl. individuelle Grundrissgestaltung und Raumaufteilung
- inkl. gedämmte Fundamentplatte
- inkl. Wärmepumpen-Technologie mit integrierter Lüftungsanlage mit Wärmerückgewinnung
- inkl. Haustür von KERA und Fenster von Porta/Kömmerling
- inkl. Massivholz-Geschosstreppe aus eigener Produktion
- inkl. Sanitärobjekte von Markenherstellern
- inkl. Elektroinstallation
- inkl. Gütesiegel vom TÜV Rheinland- (schadstoffgeprüfte Materialien)
- inkl.. KfW-Berechnungen, Nachweise
- Fairpreisgarantie: Wenn die Baupreise sinken, sinkt auch Ihr
Hauspreis nachträglich
- 30 Jahre Garantie auf die Konstruktion
Was wir Ihnen sonst noch bieten:
Kostenlose Bauberatung inkl. Grundrissplanung
Ermittlung der Gesamt-Investition Ihres Bauvorhabens
Finanzierungs - & Fördermittelberatung
Die hohe Wertigkeit und Langlebigkeit eines STREIF-Energiespar-Hauses wird durch zahlreiche Auszeichnungen, Qualitäts- und Gütesiegel unabhängiger Institute und Verbände dokumentiert.
Der Angebotspreis ist inklusive Grundstück und Baunebenkosten in der Ausbaustufe -einzugsfertig-
Lassen Sie sich von der Qualität und Zuverlässigkeit von STREIF überzeugen und verwirklichen Sie Ihren Traum vom eigenen Zuhause - gemeinsam mit uns!
Sind Sie interessiert? Zögern Sie nicht und rufen Sie uns gleich an, um einen Gesprächstermin zu vereinbaren.
Lage
Attraktive Wohnlage in Hannover Kleefeld
Die Stadtvilla im Bauhausstil befindet sich in einer der gefragtesten Wohnlagen von Hannover, in Kleefeld Grenze zu Kirchrode. Diese ruhige und dennoch zentrale Straße ist von einer charmanten, grünen Umgebung geprägt und bietet eine harmonische Kombination aus urbanem Leben und naturnaher Idylle.
Die Lage zeichnet sich durch ihre hervorragende Anbindung an das öffentliche Verkehrsnetz aus. In unmittelbarer Nähe befinden sich Haltestellen für Straßenbahnen und Busse, die eine schnelle Verbindung zu den zentralen Punkten der Stadt, einschließlich der Innenstadt und des Hauptbahnhofs, gewährleisten. Auch die Autobahnauffahrten sind in wenigen Minuten erreichbar, was die Anreise mit dem Auto erleichtert.
Die Umgebung bietet eine Vielzahl von Freizeitmöglichkeiten. Parks und Grünflächen laden zu entspannenden Spaziergängen und sportlichen Aktivitäten ein. Zudem finden sich in der Nähe zahlreiche Cafés, Restaurants und Einkaufsmöglichkeiten, die den urbanen Lebensstil bereichern. Familien profitieren von der Nähe zu Schulen und Kindergärten, die eine gute Bildung und Betreuung für die Kleinen gewährleisten.
Die Stadtvilla selbst besticht durch ihren einzigartigen Bauhausstil, der klare Linien und funktionale Eleganz vereint. Die großzügigen Fensterfronten sorgen für lichtdurchflutete Räume und einen direkten Blick ins Grüne, während die moderne Architektur harmonisch in die Umgebung integriert ist.
Insgesamt bietet das Grundstück in Hannover eine ideale Lage für alle, die das Leben in einer stilvollen Stadtvilla mit den Vorzügen einer lebendigen Stadt und der Ruhe einer Wohngegend verbinden möchten.
Sonstige Angaben
STREIF Haus - der Pionier der deutschen Fertighausbranche
Die langjährige Firmentradition des Unternehmens reicht bis in das Jahr 1929 zurück. In den 50er und 60er Jahren wurde in Deutschland schnell und viel Wohnraum für Familien benötigt, seitdem konzentrierte sich das Unternehmen auf die Entwicklung und Produktion von Fertighaustypen, die im Werk in großen Stückzahlen hergestellt werden konnten. So kann das Unternehmen auf 90.000 gebaute Hausobjekte zurückblicken und sich zu Recht als Pionier der deutschen Fertighausbranche bezeichnen.
Die neuen Energiesparhäuser - So baut man heute.
Unser Anspruch ist es, in enger Partnerschaft mit unseren Kunden langlebige Häuser zu bauen, mit einer hohen architektonischen Qualität, individuell geplant und dabei energieeffizient und ressourcenschonend. Jedes STREIF-Haus ist einzigartig und wird speziell für jeden Kunden "maßgeschneidert" und gebaut. Passend zu den persönlichen Wünschen, dem vorgegebenen Budget und dem vorhandenen Grundstück planen und bauen wir jedes Haus mit viel Liebe zum Detail.
Grundriss
exklusive-streif-villa-08-grun
>
>
exklusive-streif-villa-08-grun
>
>
Adresse
30625 Hannover
Interessante Orte
Preis- und Lageinformationen
Preistrend für Bestandsimmobilien in Kleefeld