Repräsentatives Fabrikantenhaus in Zeuthen - Architektonisches Juwel von 1933
Willkommen in einem wahren Stück Baugeschichte: Dieses einzigartige, vom Architekten als "Haus für die Dame" bezeichnete Fabrikantenhaus wurde im Jahr 1933 erbaut und verbindet stilvolle Architektur der Zwischenkriegszeit mit großzügigem Wohnkomfort.
Verkauf einer Fabrikantenvilla mit einer Doppelgarage und Teilkeller in idyllischer Lage
Das Wohnhaus wurde ca. 1933 in aufwendiger Massivbauweise errichtet und fortwährend modernisiert. Das Objekt teilt sich in Erdgeschoss, Obergeschoss, Dachgeschoss und Teilkeller auf und befindet sich auf einem großen und gepflegten Gartengrundstück.
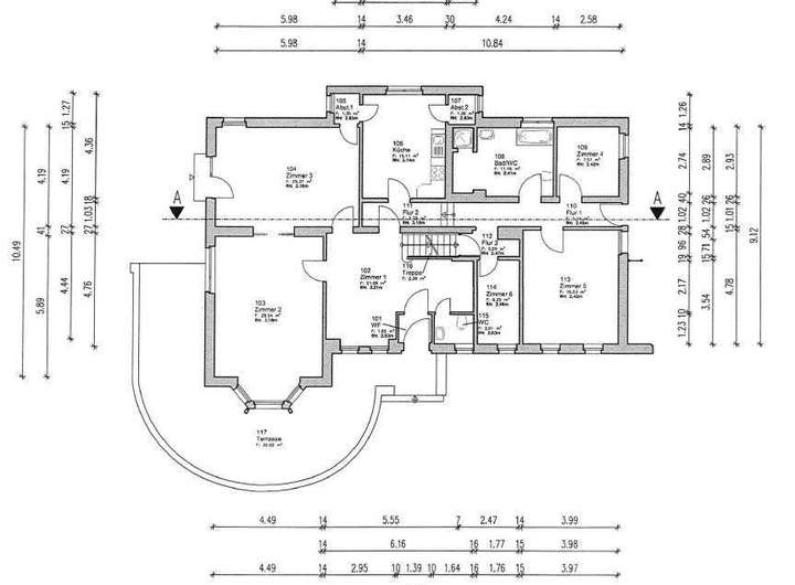
Im Erdgeschoss befinden sich ein großes Wohnzimmer, ein Esszimmer mit Zugang zur Terrasse, eine Küche mit schöner Einbauküche, eine Speisekammer, ein Gäste-WC sowie eine Eingangsdiele mit Abstellbereich. Es gibt noch einen Seiteneingang über den man zur Waschküche/ einfaches Bad, zum Heizungsraum und einem weiteren kleinen Zimmer gelangt. Von der Diele führt eine Treppe in das Obergeschoss.
Die Wohnfläche im Erdgeschoss beträgt ca. 127 m² + ca. 27 m² Nutzfläche.
Im Obergeschoss befinden sich 3 helle Zimmer, ein schönes Badezimmer mit Badewanne, Dusche und gesondertem WC sowie ein Flur. Vom Flur führt eine Treppe in das Dachgeschoss.
Die Wohnfläche im Obergeschoss beträgt ca. 99 m².
Im ausgebauten Dachgeschoss steht ein großes Studiozimmer zur Verfügung.
Die Wohnfläche im ausgebauten Dachgeschoss beträgt ca. 34 m² + ca. 24 m² Ausbaureserve.
Im Teilkeller befindet sich ein Raum, der als Abstellraum genutzt wird.
Die Raumhöhe im Teilkeller beträgt ca. 1,90 m und die Nutzfläche beträgt ca. 22 m².
Das Wohnhaus ist bezugsfrei.
Stattliche Fabrikanten-Villa mit Doppelgarage auf einem Parkähnlichen Gartengrundstück
15738 Zeuthen
Die vollständige Adresse der Immobilie erhalten Sie vom Anbieter.
Auf Karte anzeigen
Die vollständige Adresse der Immobilie erhalten Sie vom Anbieter.
Finanzierungszertifikat
In nur zwei Minuten zu Ihrem persönlichen Finanzierungszertifkat.
Infos
| Haustyp | Sonstige |
|---|---|
| Wohnfläche ca. | 260 m2 |
| Grundstücksfläche | 2.031 m2 |
| Bezugsfrei ab | nach Absprache |
| Zimmer | 8 |
| Badezimmer | 2 |
| Garage/Stellplatz | Garage |
| Anzahl Garage/Stellplatz | 2 |
Kosten
| Kaufpreis |
950.000 € |
|---|---|
| Provision |
2,99% Die Käuferprovision beträgt 2,99% (inkl. MwSt.) vom Kaufpreis. |
Finanzierungsrechner:
Kaufpreis:
600.000 €
Eigenkapital:
600.000 €
Monatliche Rate
0 €
Effektiver Jahreszins
0 %
Sollzinsbindung
10 Jahre
Bausubstanz & Energieausweis
| Baujahr | 1933 |
|---|---|
| Letzte Sanierung | 2015 |
| Bauphase | Haus fertig gestellt |
| Objektzustand | Saniert |
| Qualität der Austattung | Gehoben |
| Heizungsart | Zentralheizung |
| Wesentliche Energieträger | Gas |
| Energieausweis | liegt vor |
| Energieausweistyp | Bedarfsausweis |
| Energieverbrauchskennwert | 141,1 kWh/(m²*a) |
| Energieeffizienzklasse | E |
141,1
kWh/(m²*a)
Energieeffizienzklasse E
- A+
- A
- B
- C
- D
- E
- F
- G
- H
- 0
- 25
- 50
- 75
- 100
- 125
- 150
- 175
- 200
- 225
- >250
Beschreibung des Objekts
Ausstattung
- aufwendige und solide Massivbauweise aus 1933. Als 'Haus für die Dame' konzipiert und gebaut
- Zwischen 1990 und 2000 professionell saniert (Fenster, Dach, Heizung, Innendämmung). Im obersten Geschoss in 2010 Bad und Küche neu erstellt
- Sprossenfenster
- teilweise elektrische Rollläden
- teilweise Fensterläden
- Vergitterung im Erdgeschoss
- Viessmann Gasheizung
- Warmwasserversorgung erfolgt gesondert mittels Gastherme in der Waschküche
- Teilkeller
- 2 Bäder und gesamt 3 WC ´s
- 2 moderne Einbauküchen mit namhaften Elektrogeräten
- Echtholzparket oder Fliesenboden
- doppelte Schiebetür zwischen Wohn- und Essbereich
- Doppelgarage
- elektrisches Gartentor
- Grundwasserbrunnen mit elektrischer Pumpe zur Gartenbewässerung
- Glasfaseranschluss
- voll erschlossen
- Straße gepflastert
- nur wenige Gehminuten bis zum S-Bahnhof Zeuthen und bis zum Zeuthener See.
- Link zum virtuellen Rundgang: https://my.matterport.com/show/?m=NEn3avQuMET
Lage
Die Gemeinde Zeuthen ist mit ihren ca. 11.400 Einwohnern dank ihrer Nähe zu Berlin, ihrer guten Infrastruktur, ihrem stabilen sozialen Umfeld und der idyllischen Lage im Dahmeland ein nachgefragter Wohn-, Ausflugs- und Urlaubsort, der einen wohltuenden Kontrast zur nahen Metropole bietet. Mit den landschaftlichen Reizen der Dahme-Seen vor der Haustür und dem Spreewald im Rücken, einer breiten Palette an Freizeitaktivitäten und der herzlichen Art der Menschen fühlen sich hier Gäste und Einheimische gleichermaßen zu Hause.
Es liegt in der Nähe der südöstlichen Berliner Stadtgrenze am Westufer der Dahme und des Zeuthener Sees. Die Gemeinde grenzt im Norden an Eichwalde, im Westen an Schulzendorf und Schönefeld, im Süden an Wildau und Königs Wusterhausen sowie an den Berliner Bezirk Treptow-Köpenick (Ortsteil Schmöckwitz) am Ostufer des Zeuthener Sees, wo zum Gemeindegebiet auch der Miersdorfer Werder gehört. Die vier Gemeinden Zeuthen, Eichwalde, Wildau und Schulzendorf bilden ein zusammenhängend bebautes Stadtgebiet.
Der S-Bahnhof Zeuthen (Tarifgebiet ABC) ist eine Haltestelle der Strecke Berlin-Görlitz und wird von der Berliner S-Bahn bedient. Autobahn- und Flughafen-Anschluss in der Nähe. Eine Grundschule befindet sich in besonderer Nähe zu dem Objekt. Im Ort befindet sich auch eine Gesamtschule mit gymnasialer Oberstufe, weitere Gymnasien sind in Eichwalde und Königs Wusterhausen. Die Versorgung in Zeuthen zur Kleinkindbetreuung ist ausgezeichnet. Weiterhin bietet Zeuthen einen besonderen Wochenmarkt mit regionalen Produkten bspw. aus dem Spreewald oder aus Werder.
Sonstige Angaben
Bereits die Klinkerfassade und die originalen Fensterläden vermitteln den historischen Charakter dieses Anwesens. Der geschwungene Eingangsbereich mit Rundbogenportal lässt den Anspruch an Repräsentation und Eleganz deutlich erkennen. Erwähnenswert ist auch die umlaufende Terrasse (Esszimmer und Wohnzimmer).
Im Inneren besticht das Haus durch großzügige Raumfolge, hohe Decken, original erhaltenes Fischgrätenparkett und zahlreiche architektonische Details wie Rundbögen, Kassetteninnentüren und stilgerechte Holzverkleidungen. Die Raumaufteilung eignet sich ideal für eine große Familie oder die Kombination aus Wohnen und Arbeiten.
Die Ausstattung umfasst drei separate Badezimmer sowie insgesamt vier WC-Räume - ideal für Mehrgenerationenwohnen oder Besuch. Zwei vollwertige Küchen bieten maximale Flexibilität. Das Haus ist teilunterkellert und verfügt über Stauraum sowie funktionale Flächen im Untergeschoss. Der große, eingewachsene Garten bietet Privatsphäre und Ruhe - ergänzt durch eine charmante Backsteinmauer und eine separate Zweifachgarage mit viel Platz für Fahrzeuge, Werkstatt oder Hobby.
Dieses außergewöhnliche Anwesen ist ein architektonisches Liebhaberstück - für alle, die das Besondere schätzen und ein Haus mit Geschichte suchen.
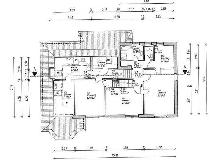
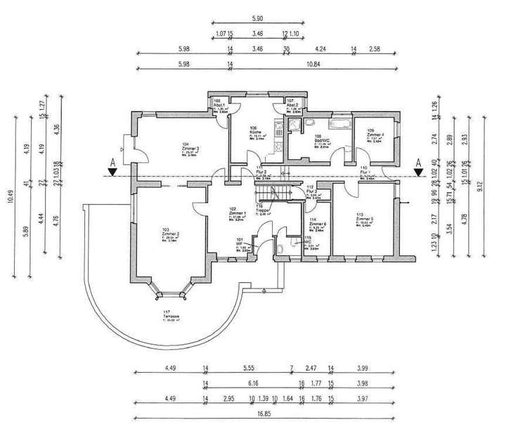
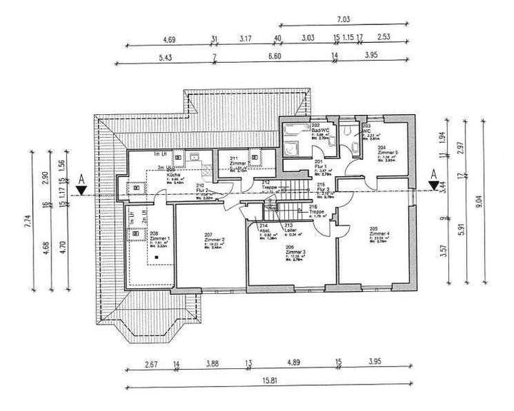
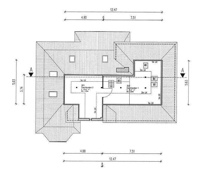
Grundriss
Grundriss EG
>
>
Grundriss OG
>
>
Grundriss DG
>
>
Adresse
15738 Zeuthen
Interessante Orte
Preis- und Lageinformationen
Preistrend für Bestandsimmobilien in Zeuthen