Sie haben hier die Gelegenheit einen modernen, hochwertigen und familienfreundlichen Neubau anzumieten.
Das Haus verfügt über eine Luftwärmepumpe in Kombination mit einer PV-Anlage.
In allen Räumen sind dreifachverglaste hochwertige Fenster mit elektrischen Rollläden verbaut.
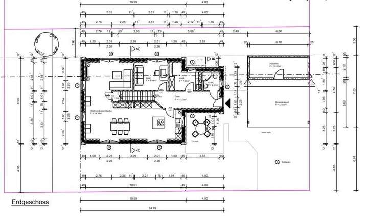
Im Erdgeschoss befindet sich ein großzügiger heller Raum mit der Teilung in einen Koch-/Ess- und Wohnbereich.
Der Bereich der Küche bietet Anschlussmöglichkeiten für eine Kücheninsel und ausreichend weitere Küchengeräte.
Außerdem befinden sich im Erdgeschoss ein Hauswirtschaftsraum und ein Gästebad mit Dusche. Ein weiteres Zimmer kann optimal als Büro oder Gästezimmer genutzt werden.
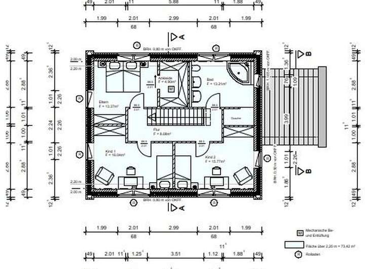
Im Dachgeschoss befinden sich insgesamt drei Schlafräume, wovon ein Raum an einen separaten Ankleideraum grenzt.
Vervollständigt wird dieses Haus durch ein Vollbad im Obergeschoss, mit ebenerdiger Dusche und großer Badewanne.
Im Außenbereich gibt es zwei Terrassen, deren Ausrichtungen an den Stand der Sonne (Morgen- und Abendsonne) angepasst sind.  
Es gibt ein Doppelcarport mit praktischem Geräteschuppen für Fahrräder, Mülltonnen und Gartengeräte.
            
        Ergreifen Sie die Chance! Moderner Neubau mit hochwertiger Ausstattung.
                     26676 Barßel                            
Die vollständige Adresse der Immobilie erhalten Sie vom Anbieter.
        
            
            Auf Karte anzeigen
        
        
    Die vollständige Adresse der Immobilie erhalten Sie vom Anbieter.
Infos
| Haustyp | Einfamilienhaus | 
|---|---|
| Wohnfläche ca. | 158 m2 | 
| Grundstücksfläche | 870 m2 | 
| Bezugsfrei ab | nach Absprache | 
| Zimmer | 5 | 
| Schlafzimmer | 4 | 
| Badezimmer | 2 | 
| Garage/Stellplatz | Carport | 
Kosten
| Kaltmiete | 
                1.480 € | 
        
|---|---|
| Nebenkosten | + 200 € | 
| Heizkosten | keine Angabe | 
| Gesamtmiete | 1.680 € | 
| Kaution o. Genossenschaftsanteile | 2960 EUR | 
Weiter mieten oder doch kaufen?
        
        
            Wer in Miete wohnt, überweist dem Vermieter im Laufe der Jahre hohe Summen, die sich
            auch in die eigenen vier Wände investieren lassen könnten.
        
    
    
    
Bausubstanz & Energieausweis
| Baujahr | unbekannt | 
|---|---|
| Objektzustand | Erstbezug | 
| Energieausweis | liegt zur Besichtigung vor | 
Beschreibung des Objekts
Ausstattung
                Terrasse, Garten, Vollbad, Gäste-WC
Bemerkungen:
Die Vermieter sind bereit, den Einbau einer Einbauküche vorzunehmen.
Damit verbundene Auswirkungen auf die Mietpreishöhe sind gerne persönlich abzuklären.
               
        Lage
                Dieser schöne Neubau befindet sich in einer ruhigen Siedlungsstraße in Elisabethfehn.
Elisabethfehn ist ein Teil der Gemeinde Barßel im Landkreis Cloppenburg.
In direkter Nähe im Gemeindeteil Elisabethfehn befinden sich eine Grundschule und ein Kindergarten sowie ein Anschluss an die öffentlichen Verkehrsmittel.
Durch die Nähe zu den Ortschaften Barßel und Ramsloh wird Ihnen hier eine tolle Infrastruktur mit ärztlicher Versorgung, Einkaufsmöglichkeiten und weiterbildenden Schulen (wie einer IGS, einer Haupt- und Realschule sowie auch einem Gymnasium) geboten.
Infrastruktur (im Umkreis von 5 km):
Allgemeinmediziner, Kindergarten, Grundschule, Öffentliche Verkehrsmittel
                
        Sonstige Angaben
                Energieausweis nicht vorhanden
In den hochgeladenen Dokumenten dieser Anzeige finden Sie ein Formular für die Selbstauskunft. Bitte übermitteln Sie uns diese, um die weiteren Schritte zu vereinfachen und zu verkürzen.
Makleranfragen nicht erwünscht. Nach § 7 UWG sind unaufgeforderte Kontaktaufnahmen durch Makler ohne ausdrückliche Einwilligung des Empfängers verboten!
ohne-makler (OM) ist weder Anbieter noch Vermittler der Immobilie. OM betreibt eine Plattform für Immobilieneigentümer, die unter anderem die gleichzeitige Veröffentlichung einzelner Inserate auf mehreren Immobilienportalen ermöglicht. Die Inhalte dieser Inserate werden ausschließlich von Dritten verantwortet. Für die Richtigkeit, Vollständigkeit oder Rechtmäßigkeit der Angaben übernimmt OM keine Haftung. Hinweise auf mögliche Rechtsverstöße können jederzeit gemeldet werden und werden nach Prüfung umgehend bearbeitet.
           
        Weitere Dokumente
MieterselbstauskunftGrundriss
                                    Grundriss EG
                                                                            
                                        >
                                                                    
                                                                                                                
                                        >
                                                                    
                                    Grundriss DG
                                                                            
                                        >
                                                                    
                                                                        
                                        >
                                                                    Adresse
26676 Barßel
Interessante Orte
Preis- und Lageinformationen
                Preistrend für Bestandsimmobilien in Barßel