Bei den hier angebotenen Immobilien handelt es sich um ein kirchliches Gemeindezentrum, ein Zweifamilienhaus, das ehemalige Pfarrhaus sowie einen Kindergarten, vier Garagen sowie 11 Außenstellplätze, die sich auf einem 5.333 m² großen Grundstück befinden.
Pfarrhaus:
Das im Jahr 1972 in Massivbauweise errichtete Einfamilienhaus verfügt über eine Wohnfläche von ca. 180 m², die sich auf ein Erdgeschoss und ein Obergeschoss verteilen. Eine Einzelgarage befindet sich neben dem Haus. Die Immobilie ist seit dem 01.12.2018 vermietet. Die monatliche Nettokaltmiete beträgt 1.326,66 EUR inkl. der Garage.
Gemeindezentrum:
Das kirchliche Gemeindezentrum verfügt über eine Gesamtwohn- und nutzfläche von ca. 1.300 m² und wurde im Jahr 1962 in Massivbauweise fertiggestellt. Eine Modernisierung und Erweiterung der Liegenschaft erfolgte im Jahr 1991.
Die Nutzfläche verteilt sich auf das Kirchengebäude im Erdgeschoss, einer Empore mit Blick in den Kirchenraum und diversen Räumlichkeiten im Untergeschoss sowie im Gemeindezentrum, auf ein Erd-, Ober- und Untergeschoss. Im Obergeschoss des Gemeindezentrums befindet sich zudem eine Wohneinheit mit einer Wohnfläche ca. 91 m²
Kindergarten:
Der Kindergarten wurde im Jahr 1963/1964 mit zwei Gruppenräumen und einem Mehrzweckraum sowie diversen Nebenräumen (Sanitäranlagen/ Waschräume sowie Küchen) errichtet und im Jahr 2011 um drei weitere Gruppenräume mit entsprechenden Nebenflächen und Außenanlagen erweitert.
Die Gesamtnutzfläche beläuft sich auf ca. 441 m²
Alle Räumlichkeiten befinden sich barrierefrei im Erdgeschoss und sind über die zentral angelegten Verkehrsflächen zugänglich.
Nach einem Eigentümerwechsel ist der Ansatz einer Nettokaltmiete für den Kindergarten von ca. 11,10 EUR/ m² Nutzfläche realistisch.
Zweifamilienhaus
Das im Jahr 1961 in Massivbauweise errichtete Zweifamilienhaus verfügt über eine Wohnfläche von ca. 190 m², die sich auf ein Erdgeschoss und ein Obergeschoss verteilen. Eine Einzelgarage befindet sich neben dem Haus. Beide Wohnungen sind siet 1996 und 2000 vermietet. Die monatliche Nettokaltmiete beträgt für beide Wohnungen 1.205,00 inkl. der Garage.
Grundsätzlich besteht die Möglichkeit, die Liegenschaft ohne den Kindergarten zu erwerben. In diesem Fall würde die anteilige Grundstücksfläche ausparzelliert, so dass eine Grundstücksfläche von ca. 3.323 m² als Nettobauland zur Verfügung steht.
Leverkusen - Quettingen: Bestandserhaltung oder Entwicklung - Ein Grundstück - viele Möglichkeiten!
51381 Leverkusen
Die vollständige Adresse der Immobilie erhalten Sie vom Anbieter.
Auf Karte anzeigen
Die vollständige Adresse der Immobilie erhalten Sie vom Anbieter.
Finanzierungszertifikat
In nur zwei Minuten zu Ihrem persönlichen Finanzierungszertifkat.
Infos
| Vermarktungsart | Kaufen |
|---|---|
| Grundstücksfläche | 5.333 m2 |
Kosten
| Miete pro Jahr |
2.850.000 € |
|---|---|
| Provision |
3,57 % inkl. gesetz. MwSt. |
Finanzierungsrechner:
Kaufpreis:
600.000 €
Eigenkapital:
600.000 €
Monatliche Rate
0 €
Effektiver Jahreszins
0 %
Sollzinsbindung
10 Jahre
Beschreibung des Objekts
Lage
Die zum Verkauf stehende Liegenschaft liegt in Leverkusen-Quettingen, in einer zentralen und ruhigen Wohnlage.
Das Zentrum von Quettingen ist fußläufig erreicht und die Verkehrsanbindung an den ÖPNV und an das überregionale Straßennetz sind ausgesprochen gut. Einkaufmöglichkeiten, Ärzte, Apotheken, Banken, Kindergärten, Grund- und weiterführende Schulen befinden sich im Nahbereich. Die Autobahnanschlüsse in Leverkusen-Opladen und Burscheid befinden sich nur wenige Fahrminuten vom Objekt entfernt. Des Weiteren befindet sich auf der gegenüberliegenden Straßenseite eine Bushaltestelle, welche von der Buslinie 209 angefahren wird.
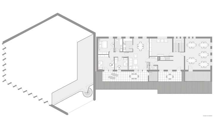
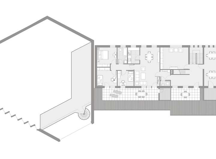
Grundriss
Skizze Kirche und Gemeindezent
>
>
Skizze Kirche und Gemeindezent
>
>
Skizze Kita EG
>
>
Skizze Kita OG
>
>
Skizze Kita UG
>
>