Sie haben ein Grundstück? Dann haben wir Ihren Neubaupartner.
Dieses Einfamilienhaus vereint modernes Wohnen mit zuverlässiger, massiver Bauweise – die perfekte Grundlage für ein energieeffizientes und stilvolles Heim, in dem sich Ihre Familie rundum wohlfühlen kann.
Mit einem durchdachten Grundriss, moderner Haustechnik und hochwertigen Materialien entsteht ein Zuhause, das sowohl alltagstauglich als auch gemütlich ist – ideal für Familien, die Wert auf Qualität, Sicherheit und eine nachhaltige Investition in die Zukunft legen.
Wir planen Ihr Haus individuell und mit viel Herz – ganz nach Ihren Vorstellungen und Bedürfnissen. Ob offener Wohnbereich, viel Stauraum oder ein gemütliches Kinderzimmer: Bei uns ist jedes Haus so einzigartig wie die Familie, die darin lebt.
Zahlreiche erfolgreich umgesetzte Bauprojekte und viele zufriedene Familien zeigen: Mit unserem Partner bauen Sie nicht nur ein Haus – Sie schaffen ein Zuhause.
Hinweis: Dieses Angebot beinhaltet KEIN Grundstück!
Massiv. Effizient. Fürs Leben – Ihr Zuhause für die ganze Familie
48653 Coesfeld
Die vollständige Adresse der Immobilie erhalten Sie vom Anbieter.
Auf Karte anzeigen
Die vollständige Adresse der Immobilie erhalten Sie vom Anbieter.
Finanzierungszertifikat
In nur zwei Minuten zu Ihrem persönlichen Finanzierungszertifkat.
Infos
| Haustyp | Einfamilienhaus |
|---|---|
| Wohnfläche ca. | 161 m2 |
| Grundstücksfläche | 1 m2 |
| Zimmer | 6 |
Kosten
| Kaufpreis |
401.000 € |
|---|---|
| Provision | Nein |
Finanzierungsrechner:
Kaufpreis:
600.000 €
Eigenkapital:
600.000 €
Monatliche Rate
0 €
Effektiver Jahreszins
0 %
Sollzinsbindung
10 Jahre
Bausubstanz & Energieausweis
| Baujahr | unbekannt |
|---|---|
| Energieausweis | laut Gesetz nicht erforderlich |
Beschreibung des Objekts
Ausstattung
Ausstattungsmerkmale auf einen Blick:
+ Energie-Effizienzstufe 40
+ Schlüsselfertig – optional mit Garage oder Carport
+ inklusive Architekten- und Ingenieurleistungen
+ Individuelle Gestaltungsoptionen bei Grundriss, Fassade und Innenausbau
+ Massive Bauweise, Stein auf Stein
+ Klinkerfassade: Verblenderpreis bis 850,-€/1000 Stück (NF)
+ Dacheindeckung mit engobierten Ton-Flachdachziegeln
+ Zukunftssicher mit Luft-Wasser-Wärmepumpe von Bosch und PV-Anlage (9,9 kWp)
+ inkl. Fußbodenheizung
+ Fenster mit 3-fach Wärmeschutzverglasung und 7-Kammer-System
+ elektrisch gesteuerte Rollladen im EG und OG
+ Sanitärausstattung mit Produkten namhafter Hersteller
+ Fliesen in Diele, HWR, Gäste-WC, Küche, Bad und Treppe
+ Eigenleistungen möglich (Endgewerke)
+ inkl. Blower-Door-Test
+ inkl. Baugrundgutachten
+ inkl. Baustrom und Bauwasser
+ inkl. Lageplan
+ inkl. Baufertigstellungsbürgschaft
+ Gewährleistung von 5 Jahren gem. BGB für Bauwerke
+ Festpreisgarantie
Lage
Wir bauen auf Ihrem Grundstück im Münsterland und im Emsland!
Gerne geben wir Ihnen Auskunft darüber, ob Ihr Grundstück im Einzugsbereich des Baupartners liegt. Sprechen Sie uns an!
Sonstige Angaben
Wir freuen uns auf Ihre Anfrage und Ihr Bauvorhaben mit dem Neubaupartner der LBS Gebietsleitung Coesfeld.
Für Fragen rund um Ihre Neubauplanung stehen wir gerne zur Verfügung.
VERBRAUCHERINFO
1. Maklerleistung ist der Nachweis der Gelegenheit zum Abschluss eines Vertrages bzw. Vermittlung eines Vertrages über eine Immobilie gegen die Courtagezahlungspflicht des Kunden
2. Unternehmer,Anschrift,Beschwerdeadressat
LBSi NordWest, Himmelreichallee 40, 48149 Münster, Tel:0251/973233-997, eMail:info@lbsi-nw.de
GF:Martin Englert, Volker Goldbeck
3. Es besteht ein Widerrufsrecht
4. Weitere Infos: verbraucherinfo.lbsi-nordwest.de
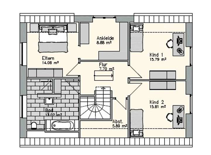
Grundriss
EG.2024(1)
>
>
DG.2024(1)
>
>
Adresse
48653 Coesfeld
Interessante Orte
Preis- und Lageinformationen
Preistrend für Bestandsimmobilien in Coesfeld