Dieses Reihenmittelhaus aus dem Jahr 1890 besticht durch seinen historischen Charakter und gleichzeitig zeitgemäßen Wohnkomfort. Auf rund 244 m² Wohnfläche bietet es vielseitige Nutzungsmöglichkeiten – sowohl für Eigennutzer als auch für Kapitalanleger.
Die zwei eigenständigen Wohneinheiten ermöglichen individuelle Wohnkonzepte, ob für Familien über mehrere Generationen oder zur zusätzlichen Vermietung. Über die Jahre wurde das Haus fortlaufend modernisiert und instand gehalten.
Die erste Wohneinheit erstreckt sich über das Souterrain und das Hochparterre und beeindruckt mit großzügigen ca. 138 m² Wohnfläche.
Der Wohnbereich im Hochparterre mit Wintergarten überzeugt durch viel Licht und eine einladende Atmosphäre. Die offene Einbauküche bietet Platz zum Kochen und Genießen. Ein weiteres Schlafzimmer ergänzt diese Ebene. Bis auf die Küche ist der Boden hier mit hochwertigem Parkett ausgestattet.
Im Souterrain befinden sich zwei weitere Zimmer, ein großzügiges Badezimmer, ein HWR sowie ein Gäste-WC. Die gesamte Ebene ist mit warmen Terracotta-Fliesen ausgestattet. Von hier aus gelangt man auf die Terrasse – ein ruhiger Rückzugsort mitten in der Stadt.
Die zweite Wohneinheit verteilt sich auf das Obergeschoss und das Dachgeschoss und bietet ca. 105 m² Wohnfläche.
Im Obergeschoss befinden sich ein gemütliches Wohnzimmer mit Balkon sowie eine Küche mit Essbereich. Das Dachgeschoss verfügt über zwei Schlafzimmer und ein Badezimmer. Diese Einheit ist seit 2010 zuverlässig vermietet.
Altbremer Charme verbindet sich hier mit modernen Details – eine besondere Gelegenheit in zentraler Lage. Eine Besichtigung lohnt sich, wir freuen uns auf Ihre Anfrage.
Altbau-Zweifamilienhaus mit Wintergarten, Terrasse und vermieteter Oberwohnung
28203 Bremen
Die vollständige Adresse der Immobilie erhalten Sie vom Anbieter.
Auf Karte anzeigen
Die vollständige Adresse der Immobilie erhalten Sie vom Anbieter.
Finanzierungszertifikat
In nur zwei Minuten zu Ihrem persönlichen Finanzierungszertifkat.
Infos
| Haustyp | Mehrfamilienhaus |
|---|---|
| Wohnfläche ca. | 243 m2 |
| Nutzfläche | 10,43 m2 |
| Grundstücksfläche | 131,5 m2 |
| Zimmer | 9 |
| Schlafzimmer | 5 |
| Badezimmer | 2 |
Kosten
| Kaufpreis |
689.000 € |
|---|---|
| Provision |
5,95 % inkl. MwSt. |
Finanzierungsrechner:
Kaufpreis:
600.000 €
Eigenkapital:
600.000 €
Monatliche Rate
0 €
Effektiver Jahreszins
0 %
Sollzinsbindung
10 Jahre
Bausubstanz & Energieausweis
| Baujahr | 1890 |
|---|---|
| Heizungsart | Etagenheizung |
| Wesentliche Energieträger | Gas |
| Energieausweis | liegt vor |
| Energieausweistyp | Bedarfsausweis |
| Energieverbrauchskennwert | 133,0 kWh/(m²*a) |
| Energieeffizienzklasse | E |
133,0
kWh/(m²*a)
Energieeffizienzklasse E
- A+
- A
- B
- C
- D
- E
- F
- G
- H
- 0
- 25
- 50
- 75
- 100
- 125
- 150
- 175
- 200
- 225
- >250
Beschreibung des Objekts
Ausstattung
- Reihenmittelhaus mit 2 Einheiten
- Baujahr 1890
- Wohnfläche gesamt: ca. 243,83 m²
- Nutzfläche: ca. 10,43 m²
- Grundstücksgröße: ca. 131 m²
- 2 Gasetagenheizungen von 2008
- Separater Abstellraum
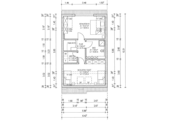
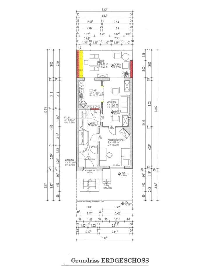
Wohnung 1 (Souterrain + Hochparterre):
- 5-Zimmer, ca. 138,07 m²
- Terrasse mit ca. 30 m²
- Einbauküche von 2012
- Wintergarten
- Hochparterre: Schlafzimmer, Wohnzimmer, Küche, Wintergarten
- Souterrain: 2 Schlafzimmer, Bad, Gäste-WC, HWR + Terrasse
- Parkettboden und Fliesen
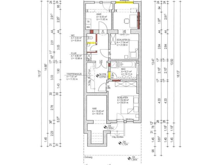
Wohnung 2 (Ober- und Dachgeschoss):
- 4 Zimmer, ca. 105,76 m²
- OG: Wohnzimmer mit Balkon +. Küche mit Essbereich
- DG: 2 Schlafzimmer + Bad
- aktuell vermietet für 1.150,00 Euro kalt (wohnt dort seit 2010)
Modernisierungen:
- 2000: Komplettsanierung der oberen Wohnung
- 2007: Anbau Balkon
- 2007: Dämmung und Neueindeckung des Daches
- 2008: Komplettsanierung der unteren Wohnung
- 2008: Erneuerung beider Gasthermen
- 2008: Erneuerung Küche OG
- 2009: Sanierung Kanalisation (Ab- und Regenwasser neu verlegt und Kessel-Rückstauautomat montiert)
- 2011: Fassadenanstrich
- 2012: Erneuerung Küche Hochparterre
- 2014: Erneuerung Pumpe
- 2014: Einbau feuchtegesteuerte Raumentlüfter Souterrain
- 2018: Maler- und Putzarbeiten in der unteren Wohnung
Lage
Die Wohnung liegt im beliebten Bremer Stadtteil Fesenfeld, angrenzend an das lebendige Viertel Steintor. Diese Gegend zeichnet sich durch ihre historische Architektur, charmante Altbauten und eine vielfältige Mischung aus Wohn- und Geschäftshäusern aus.
Zahlreiche Cafés, Restaurants, kleine Boutiquen und kreative Läden prägen das Viertel und schaffen eine lebendige, urbane Atmosphäre.
Die Wallanlagen sind nur wenige Gehminuten entfernt und bieten eine grüne Oase mitten in der Stadt – ideal für Spaziergänge, Joggingrunden oder einfach zum Entspannen.
Die gute Verkehrsanbindung macht das Stadtleben besonders komfortabel: In unmittelbarer Nähe befindet sich eine Straßenbahnhaltestelle, von der aus Sie schnell in alle Richtungen gelangen, und auch der Hauptbahnhof ist in wenigen Minuten erreichbar.
Für Freizeit und Kultur bietet die Umgebung vielfältige Möglichkeiten: Der nahegelegene Osterdeich an der Weser lädt zu sportlichen Aktivitäten oder Spaziergängen ein, während Theater, Galerien und regelmäßige Musikveranstaltungen das kulturelle Leben bereichern.
Insgesamt bietet die Lage eine attraktive Kombination aus urbanem Leben, kultureller Vielfalt und hervorragender Anbindung in einem der gefragtesten Viertel Bremens.
Sonstige Angaben
Die Riverside Real Estate GmbH bietet Immobilien aller Assetklassen zum Verkauf an, mit Standorten in Hameln-Pyrmont, Hannover, Bremen und Umgebung.
Wenn Sie mehr über uns erfahren möchten, besuchen Sie gerne unsere Homepage unter WWW.RIVERSIDE-ESTATE.DE. Dort finden Sie ausführliche Informationen über unser Unternehmen, unsere aktuellen Angebote und weitere Dienstleistungen. Zusätzlich bieten wir Ihnen eine unabhängige und kostenfreie Preiseinschätzung Ihrer Immobilie an.
Wir freuen uns darauf, Ihnen weiterzuhelfen und Ihnen bei Ihren Immobilienanliegen zur Seite zu stehen.
Die Angaben zum Objekt erfolgen im Namen unseres Auftraggebers und dienen lediglich zu Informationszwecken. Für die Richtigkeit und Vollständigkeit wird keine Haftung übernommen.
Grundriss
Grundriss Souterrain
>
>
Grundriss Erdgeschoss
>
>
Grundriss Obergeschoss
>
>
Grundriss Dachgeschoss
>
>
Adresse
28203 Bremen
Interessante Orte
Preis- und Lageinformationen
Preistrend für Bestandsimmobilien in Fesenfeld