Einzigartiges Grundstück in Feldafing, 8 Minuten fussläufig zum Starnberger See, mit herrlichem Baumbestand. Bebaut ist das ca. 2.300 m2 große parkähnliche Grundstück mit einem HUF Zweifamilienhaus, BJ. 1986 mit insgesamt ca. 252 m2 Wohnfläche verteilt auf zwei Haushälften. Die Süd-/West Haushälfte ist bezugsfrei und die Süd-/Ost Haushälfte ist derzeit vermietet. Zusätzlich ist ein Souterrain vorhanden mit einer Praxis-/Bürofläche oder Einliegerwohnung und Kellerräumen.
Das nicht einsehbare Grundstück liegt am Ortsrand und geht nahtlos mit dem Baumbestand in die benachbarte Natur mit Wanderwegen über. Der See ist unweit entfernt. Ein Teil des Grundstücks ist Landschaftsschutzgebiet.
Die beiden Haushälften bieten jeweils sehr große Terrassen nach Süden und Westen und einen traumhaften Blick in das Parkgrundstück. Die einzigartige Bauweise des europäischen Marktführers für moderne Fachwerkarchitektur HUF steht für ein architektonisches Konzept aus Holz und Glas. Lichtdurchflutet, große Schiebeglastüren zu den Terrassen und weitläufig angelegt.
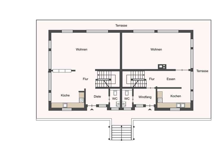
Jede Haushälfte verfügt im Erdgeschoss über ein sehr großes Wohnzimmer, herrliche Terrassen, eine offene Küche, ein geräumiger Windfang und ein Gäste WC.
Im Dachgeschoss finden Sie zwei Schlafzimmer, eine Galerie, ideal für Home Office, ein Bad mit Dachflächenfester und einen großen Balkon mit Blick ins Grüne.
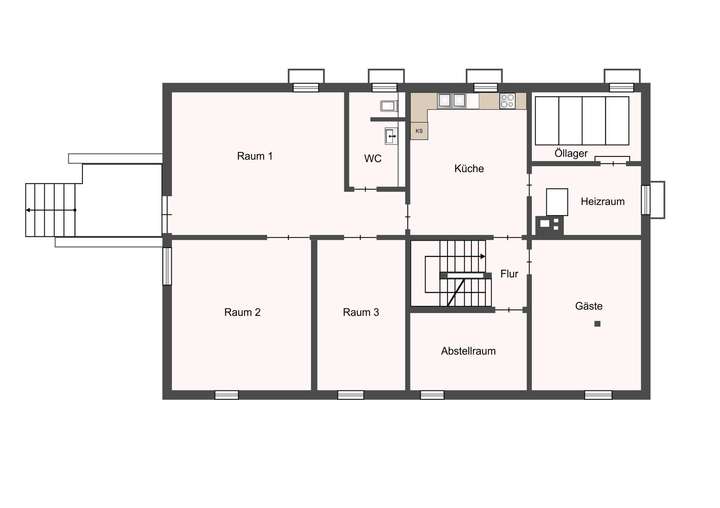
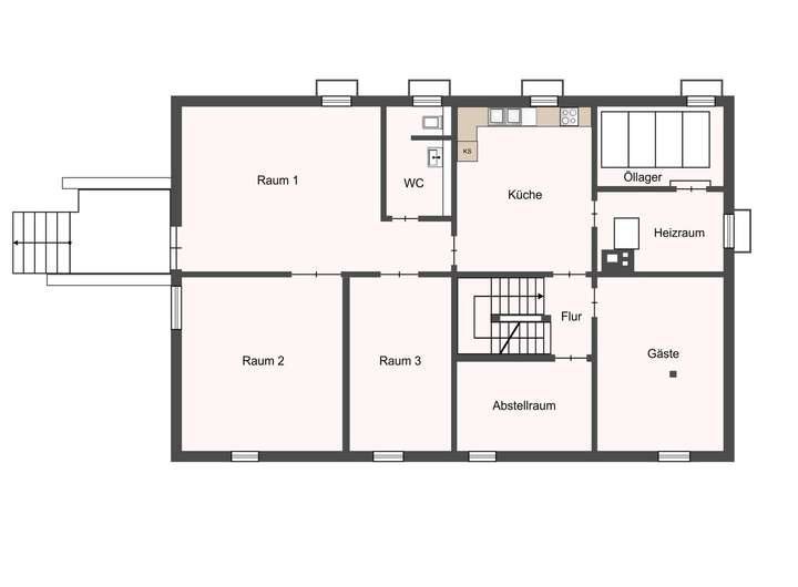
Im Souterrain befindet sich eine Praxis-/Bürofläche oder Einliegerwohnung mit drei Räumen, einem Duschbad und einer Küche. Zusätzlich sind ein Kellerraum, ein Hobbyraum und zwei Räume für die Haustechnik und Beheizung vorhanden.
Ideal für ein Mehrgenerationenhaus. Die beiden Haushälften lassen sich problemlos miteinander verbinden.
Die Süd-/Ost Haushälfte ist seit Januar 2020 an eine Einzelperson vermietet.
Für eine mögliche Neubebauung liegt ein Vorbescheid für ein Dreispännerhaus vor.
Eine Doppelgarage und zwei Aussenstellplätze sind im Kaufpreis enthalten.
Einzigartiges Grundstück in Feldafing bebaut mit HUF Zweifamilienhaus - 8 Gehminuten zum See
82340 Pöcking
Die vollständige Adresse der Immobilie erhalten Sie vom Anbieter.
Auf Karte anzeigen
Die vollständige Adresse der Immobilie erhalten Sie vom Anbieter.
Finanzierungszertifikat
In nur zwei Minuten zu Ihrem persönlichen Finanzierungszertifkat.
Infos
| Haustyp | Sonstige |
|---|---|
| Etagenzahl | 2 |
| Wohnfläche ca. | 252 m2 |
| Nutzfläche | 252 m2 |
| Grundstücksfläche | 2.300 m2 |
| Zimmer | 9 |
| Schlafzimmer | 4 |
| Badezimmer | 2 |
| Anzahl Garage/Stellplatz | 2 |
Kosten
| Kaufpreis |
2.090.000 € |
|---|---|
| Provision |
3,57 % des Kaufpreises inkl. der gesetzlichen Mehrwertsteuer |
Finanzierungsrechner:
Kaufpreis:
600.000 €
Eigenkapital:
600.000 €
Monatliche Rate
0 €
Effektiver Jahreszins
0 %
Sollzinsbindung
10 Jahre
Bausubstanz & Energieausweis
| Baujahr | 1986 |
|---|---|
| Heizungsart | Zentralheizung |
| Wesentliche Energieträger | Öl |
| Energieausweis | liegt vor |
| Energieausweistyp | Verbrauchsausweis |
| Energieverbrauchskennwert | 145,0 kWh/(m²*a) |
| Energieeffizienzklasse | E |
145,0
kWh/(m²*a)
Energieeffizienzklasse E
- A+
- A
- B
- C
- D
- E
- F
- G
- H
- 0
- 25
- 50
- 75
- 100
- 125
- 150
- 175
- 200
- 225
- >250
Beschreibung des Objekts
Ausstattung
Kamin im Wohnzimmer
Große Fensterflächen
Offenes Treppenhaus mit Galerieebene
Zwei Balkone im 1. OG.
Souterrain mit einer Praxis-/Bürofläche oder Einliegerwohnung
Doppelgarage
Zwei Aussenstellplätze
Parkähnliches Grundstück
Ölheizung neuwertig Baujahr 2022
Lage
Die angebotene Zweifamilienhaus mit parkähnlichem Grundstück befindet sich am Ortsrand in Feldafing – einer der begehrtesten Wohnlagen am Westufer des Starnberger Sees. Der malerische Ort zählt zu den exklusivsten Gemeinden im bayerischen Voralpenland und überzeugt durch seine harmonische Verbindung von Natur, Ruhe und unendlich vielen Freizeitmöglichkeiten.
Feldafing ist eingebettet in eine traumhafte Landschaft zwischen See und Alpen und bietet eine ausgezeichnete Lebensqualität. Die Nähe zum Wasser, großzügige Parkanlagen wie der Lenné-Park mit der Roseninsel, die Wolfsschlucht, sowie zahlreiche Freizeitmöglichkeiten – darunter Segeln, Golf (Golfclub Feldafing) Tennis und Wandern – machen die Lage einzigartig. Nur 8 Minuten zu Fuss zum See und zum Restaurant Forsthaus am See.
Der S-Bahnhof Feldafing und Possenhofen (S6) sind gut erreichbar und ermöglichen eine direkte Verbindung nach München in ca. 40 Minuten. Die Autobahnen A95 und A96 sind ebenfalls gut zu erreichen.
in der Ortsmitte in Feldafing befinden sich alle Einrichtungen des täglichen Bedarfs: Kindergärten, Grundschule, ärztliche Versorgung, Einkaufsmöglichkeiten und Gastronomie. Weiterführende Schulen sowie internationale Schulen sind in den umliegenden Gemeinden oder in Starnberg verfügbar.
Die Umgebung ist geprägt von eleganter Villenbebauung, großzügigen Grundstücken und einer ruhigen, gewachsenen Nachbarschaft. Die besondere Kombination aus Natur und dem See macht Feldafing zu einer der gefragtesten Adressen im süddeutschen Raum.
Sonstige Angaben
Die Courtage in Höhe von 3,57 % inkl. der gesetzlichen Mehrwertsteuer auf den Kaufpreis ist mit dem Zustandekommen des Kaufvertrages (notarieller Vertragsabschluß) verdient und fällig.
Alle Angaben sind ohne Gewähr und basieren ausschließlich auf Informationen, die uns von unserem Auftraggeber zur Verfügung gestellt wurden. Wir übernehmen keine Gewähr und keine Haftung für die Vollständigkeit, Richtigkeit und Aktualität dieser Angaben. Die Grunderwerbsteuer, Notar- und Grundbuchkosten sind vom Käufer zu tragen. Irrtum und Zwischenverkauf bleiben vorbehalten.
Weitere interessante Angebote finden Sie unter
www.select-property.de
Grundriss
Grundriss EG Doppelhaus
>
>
Grundriss DG Doppelhaus
>
>
Grundriss Souterrain
>
>
Adresse
82340 Pöcking
Interessante Orte
Preis- und Lageinformationen
Preistrend für Bestandsimmobilien in Pöcking