Dieses gepflegte Einfamilienhaus mit Einliegerwohnung aus dem Jahr 1900 befindet sich in ruhiger Wohnlage von Viersen / Dülken und vereint historischen Charme mit großzügigem Wohnraum auf ca. 233 m² Wohnfläche. Das Haus steht auf einem ca. 228 m² großen Grundstück und eignet sich ideal für Familien mit Platzbedarf, Mehrgenerationenwohnen oder als Kombination aus Eigennutzung und Vermietung.
Das Objekt teilt sich in zwei Wohneinheiten auf: Das Haupthaus und eine separat zugängliche Einliegerwohnung, die sich hervorragend zur Vermietung oder zur Nutzung durch erwachsene Kinder oder Familienangehörige eignet.
Die Hauptwohnung bietet viel Raum mit insgesamt 8 Zimmern, darunter großzügige Wohn- und Essbereiche, mehrere Schlafzimmer sowie ein Badezimmer. Die Räume bieten zahlreiche Nutzungsmöglichkeiten – ob als Arbeitszimmer, Hobbyraum oder klassisches Schlafzimmer.
Die Einliegerwohnung verfügt über 3 Zimmer, eine eigene Küche und ein Badezimmer. Sie bietet mit ihrer funktionalen Aufteilung auf einer Ebene eine komfortable Wohnlösung für Singles, Paare oder kleinere Haushalte.
Besondere Ausstattungsmerkmale des Hauses sind eine große Terrasse, die an sonnigen Tagen zum Verweilen im Freien einlädt, sowie eine Sauna, die für zusätzliche Entspannung sorgt. Das Haus ist teilunterkellert und bietet ausreichend Stauraum.
GROßZÜGIGES EINFAMILIENHAUS MIT DACHTERASSE UND EINLIEGERWOHNUNG
41751 Viersen
Die vollständige Adresse der Immobilie erhalten Sie vom Anbieter.
Auf Karte anzeigen
Die vollständige Adresse der Immobilie erhalten Sie vom Anbieter.
Finanzierungszertifikat
In nur zwei Minuten zu Ihrem persönlichen Finanzierungszertifkat.
Infos
| Haustyp | Reihenmittelhaus |
|---|---|
| Wohnfläche ca. | 233 m2 |
| Grundstücksfläche | 228 m2 |
| Zimmer | 11 |
| Schlafzimmer | 5 |
| Badezimmer | 3 |
| Anzahl Garage/Stellplatz | 1 |
Kosten
| Kaufpreis |
275.000 € |
|---|---|
| Provision |
3,57% Käufercourtage inkl. 19% Mehrwertsteuer 3,57% Käuferprovision inkl. MwSt. verdient und fällig bei Abschluss des notariellen Kaufvertrages. Wir haben mit dem Verkäufer einen provisionspflichtigen Maklervertrag in gleicher Höhe abgeschlossen (Maklervertrag nach § 656 c BGB). |
Finanzierungsrechner:
Kaufpreis:
600.000 €
Eigenkapital:
600.000 €
Monatliche Rate
0 €
Effektiver Jahreszins
0 %
Sollzinsbindung
10 Jahre
Bausubstanz & Energieausweis
| Baujahr | 1900 |
|---|---|
| Bauphase | Haus fertig gestellt |
| Objektzustand | Gepflegt |
| Qualität der Austattung | Normal |
| Heizungsart | Zentralheizung |
| Wesentliche Energieträger | Gas |
| Energieausweis | liegt zur Besichtigung vor |
Beschreibung des Objekts
Ausstattung
Die hier angebotene Immobilie hat viele Ausstattungsdetails, hier ein kleiner Auszug:
* großzügige Dachterasse
* gemütlicher Innenhof
* Sauna
* geräumiges Platzangebot
* Einliegerwohnung inkl. Einbauküche
* Gas-Heizung aus 2017
* uvm.
Lage
Das ansprechende Einfamilienhaus befindet sich in einer ruhigen und dennoch zentralen Lage im charmanten Stadtteil Dülken der Stadt Viersen. Diese Wohngegend bietet eine perfekte Mischung aus städtischem Komfort und ländlicher Idylle, ideal für Familien und Berufspendler gleichermaßen. Die ausgezeichnete Infrastruktur zeichnet sich durch kurze Wege zu wichtigen Einrichtungen aus.
In unmittelbarer Nähe befindet sich ein Kindergarten, der nur einen kurzen Spaziergang entfernt ist – perfekt für Familien mit kleinen Kindern. Auch die Grundschule und das Gymnasium sind in wenigen Minuten zu Fuß erreichbar, was den täglichen Schulweg angenehm kurz gestaltet. Die Nähe zu Bildungseinrichtungen macht diese Lage besonders attraktiv für junge Familien.
Für Pendler bietet die schnelle Erreichbarkeit der Autobahn, die in knapp über eineinhalb Kilometern Entfernung liegt, eine hervorragende Verkehrsanbindung an das regionale und überregionale Straßennetz. Zudem ist die Bahnstation Dülken nur etwa 750 Meter entfernt, sodass auch die Anbindung an den öffentlichen Nahverkehr ideal ist. Damit sind umliegende Städte und Ballungsräume bequem und schnell zu erreichen, was für Berufspendler einen klaren Vorteil darstellt.
Die insgesamt harmonische Umgebung sowie die Nähe zu allen wichtigen Einrichtungen des täglichen Bedarfs machen dieses Einfamilienhaus zu einer wertvollen Investition für die Zukunft.
Sonstige Angaben
HINWEIS:
Dieses Exposé ist eine Vorabinformation zu unserem Angebot. Alle Abmessungen, Ausstattungsmerkmale und Detailangaben sind nach Auskünften des Eigentümers wiedergegeben worden. Wir ermöglichen eine jederzeitige Nachprüfung durch den / die Käufer/ Interessenten, da wir hierfür keine Haftung übernehmen können.
PROVISIONSHINWEIS:
3,57% Käuferprovision inkl. MwSt. verdient und fällig bei Abschluss des notariellen Kaufvertrages. Wir haben mit dem Verkäufer einen provisionspflichtigen Maklervertrag in gleicher Höhe abgeschlossen (Maklervertrag nach § 656 c BGB).
FINANZIERUNG:
Sie haben noch keine Finanzierung oder wünschen ein konkretes Angebot? Gerne unterbreiten wir Ihnen in Kooperation mit unseren qualifizierten Partnern ein speziell auf Ihre Bedürfnisse zugeschnittenes Finanzierungsangebot. Es besteht durchaus die Möglichkeit auch ohne Eigenkapitaleinsatz Ihren Traum von den eigenen vier Wänden zu verwirklichen.
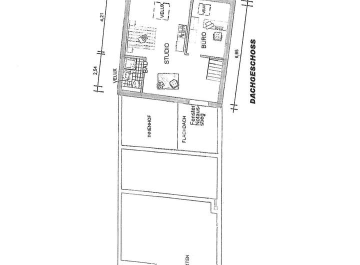
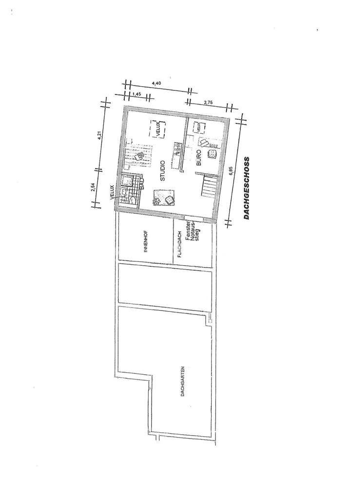
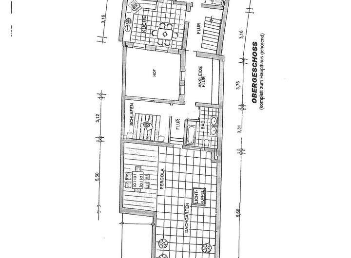
Grundriss
Grundriss EG
>
>
Grundriss OG
>
>
Grundriss DG
>
>
Adresse
41751 Viersen
Interessante Orte
Preis- und Lageinformationen
Preistrend für Bestandsimmobilien in Viersen