In ruhiger Lage von Grub am Forst steht dieses großzügige Zweifamilienhaus auf einem ca. 937 m² großen Grundstück mit traumhaftem Landschaftsblick. Die Immobilie wurde 1964 erbaut und 1983 um einen Anbau erweitert. Daraus ergibt sich ein fiktives Baujahr von 1972. Sie überzeugt durch ihre vielseitigen Nutzungsmöglichkeiten – ideal für Mehrgenerationen, Kapitalanleger oder zur Eigennutzung mit Vermietungspotenzial.
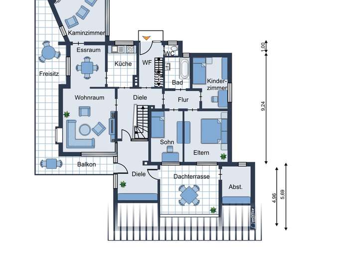
Mit einer Gesamtwohnfläche von ca. 270 m² , zwei seperaten Wohneinheiten mit Teilungserklärung (ca. 147 m² + ca. 123 m²) und zusätzlicher Nutzfläche von rund 143 m² bietet das Haus außergewöhnlich viel Platz. Die beiden separaten Wohneinheiten verfügen jeweils über eigene Zugänge und eignen sich damit optimal für unabhängiges Wohnen unter einem Dach.
Das Objekt ist sowohl für Eigennutzer, Kapitalanleger oder Mehrgeneretationenwohnen geeignet. Zudem könnten Eigennutzer eine Wohnung selbst beziehen und die andere vermieten, was die Finanzierung erleichtert.
Das Raumkonzept besticht durch große, helle Zimmer, einen lichtdurchfluteten Wintergarten und ein stilvolles Kaminzimmer mit Marmordetails. Besonders hervorzuheben ist die großzügige uneinsehbare Dachterrasse mit Panoramablick sowie das Schwimmbad mit Gegenschwimmanlage. Der liebevoll angelegte Garten bietet reichlich Gestaltungspotenzial und lädt zum Entspannen ein.
Die Immobilie ist gepflegt, erfordert jedoch Modernisierungsmaßnahmen. So lässt sich das Haus individuell an heutige Wohnstandards anpassen und bietet zugleich eine solide Basis für langfristige Wertsteigerung.
Herrschaftliches Zweifamilien-Haus in Bestlage bei Coburg mit atemberaubendem Fernblick in die Natur
96271 Grub am Forst
Die vollständige Adresse der Immobilie erhalten Sie vom Anbieter.
Auf Karte anzeigen
Die vollständige Adresse der Immobilie erhalten Sie vom Anbieter.
Finanzierungszertifikat
In nur zwei Minuten zu Ihrem persönlichen Finanzierungszertifkat.
Infos
| Haustyp | Mehrfamilienhaus |
|---|---|
| Etagenzahl | 2 |
| Wohnfläche ca. | 270 m2 |
| Nutzfläche | 143 m2 |
| Grundstücksfläche | 937 m2 |
| Bezugsfrei ab | sofort |
| Zimmer | 12 |
| Badezimmer | 3 |
| Garage/Stellplatz | Garage |
| Anzahl Garage/Stellplatz | 2 |
Kosten
| Kaufpreis |
480.000 € |
|---|---|
| Provision |
3,57 % inkl. MwSt. |
Finanzierungsrechner:
Kaufpreis:
600.000 €
Eigenkapital:
600.000 €
Monatliche Rate
0 €
Effektiver Jahreszins
0 %
Sollzinsbindung
10 Jahre
Bausubstanz & Energieausweis
| Baujahr | 1972 |
|---|---|
| Objektzustand | Gepflegt |
| Qualität der Austattung | Gehoben |
| Heizungsart | Zentralheizung |
| Wesentliche Energieträger | Gas |
| Energieausweis | liegt vor |
| Energieausweistyp | Bedarfsausweis |
| Energieverbrauchskennwert | 224,3 kWh/(m²*a) |
| Energieeffizienzklasse | G |
224,3
kWh/(m²*a)
Energieeffizienzklasse G
- A+
- A
- B
- C
- D
- E
- F
- G
- H
- 0
- 25
- 50
- 75
- 100
- 125
- 150
- 175
- 200
- 225
- >250
Beschreibung des Objekts
Ausstattung
- Zwei separate Wohneinheiten mit eigenem Zugang (Teilungserklärung liegt vor)
- Gesamtwohnfläche ca. 270 m² (ca. 147 m² / 7 Zimmer) + (ca. 123 m² / 5 Zimmer)
- Grundstück ca. 937 m² in Hanglage mit Weitblick
- Drei Bäder inkl. WC + Gäste-WC
- Zwei Einbauküchen
- Stilvolles Kaminzimmer mit Marmorverkleidung und offenem Kamin
- Lichtdurchfluteter Wintergarten
- Schwimmbad mit Gegenschwimmanlage
- Großzügige uneinsehbare Dachterrasse mit Privatsphäre und atemberaubenden Fernblick
- Beheizbares Atelier mit Holzofen – ideal für kreative Nutzung oder Homeoffice
- Großzügiges Wohnzimmer mit Kachelofen
- Zwei Garagen
Modernisierungsbedarf:
- Erneuerung der Elektroinstallation in Wohnung 1 (Umstellung auf 3-Phasen-System)
- Verputz- und Malerarbeiten
- Optional: Installation einer Solaranlage
- Optional: Umrüstung auf Wärmepumpe (statt Gas)
Das Haus ist gepflegt und voll nutzbar, die Maßnahmen können schrittweise nach eigenem Zeitplan umgesetzt werden.
Lage
Grub am Forst liegt nur wenige Minuten südlich von Coburg und zählt zu den beliebten Wohnlagen der Region. Die Gemeinde bietet eine hervorragende Infrastruktur mit Einkaufsmöglichkeiten, Schulen, Kinderbetreuung, Ärzten sowie einer guten Verkehrsanbindung.
Über die Bundesstraße B4 erreichen Sie Coburg in etwa 10 Minuten, Lichtenfels, Bad Staffelsteinund Neustadt in rund 20 Minuten. Auch der Bahnanschluss sorgt für eine komfortable Verbindung Richtung Coburg, Bamberg und Nürnberg.
Das Grundstück befindet sich in einer ruhigen, gewachsenen Wohngegend mit herrlichem Panoramablick über die Landschaft. Die Umgebung ist geprägt von gepflegten Einfamilien- und Mehrfamilienhäusern, viel Grün und hohem Freizeitwert. Spazier- und Radwege, Wälder und Felder beginnen nahezu direkt vor der Haustür.
Sonstige Angaben
Ein vielseitiges Zweifamilienhaus in attraktiver Lage mit viel Potenzial für Familie, Generationenwohnen oder Kapitalanleger.
Die Kombination aus großzügiger Wohnfläche, traumhaftem Ausblick und flexibler Nutzung macht dieses Objekt zu einer seltenen Gelegenheit in Grub am Forst.
Hinweis zur Objektbeschreibung
Alle Angaben stammen vom Eigentümer. Für deren Richtigkeit und Vollständigkeit übernehmen wir keine Gewähr; eine Haftung ist ausgeschlossen. Maßgeblich sind ausschließlich die Vereinbarungen im notariellen Kaufvertrag.
Die Flächenangaben dienen der unverbindlichen Orientierung. Eine Wohnflächenberechnung wurde in Auftrag gegeben, liegt vor und kann bei Bedarf weitergereicht werden. Auf Wunsch kann vom Käufer eine eigene Wohn- oder Nutzflächenberechnung nach der Wohnflächenverordnung (WoFlV) bzw. DIN 277 durch einen Fachplaner beauftragt werden.
Energieausweis
Ein Energieausweis liegt vor und steht zum Download im Webexposé bereit.
Verfügbarkeit
Das Objekt ist kurzfristig verfügbar. Der Eigentümer ist flexibel in der Übergabe, sodass einem schnellen Einzug nichts im Wege steht.
Provision
Die Provision für Käufer beträgt 3,57 % inkl. MwSt. auf den notariell beurkundeten Kaufpreis. Mit dem Verkäufer besteht ein schriftlicher Maklervertrag über eine gleich hohe Innenprovision.
Hinweis zum Kaufpreis
Das Haus wird zu einem Preis von 480.000 € angeboten.
Besichtigung
Eine Besichtigung ist jederzeit nach vorheriger Absprache möglich. Wir bitten um Verständnis, dass wir nur Anfragen mit vollständigen Kontaktdaten berücksichtigen können. Gerne nehmen wir uns vor Ort Zeit für Sie, um das Objekt in aller Ruhe zu besichtigen und Ihre Fragen zu klären. Rufen Sie uns für einen Besichtigungstermin schnell und unkompliziert unter der 0152-09454055 an.
Adresse
96271 Grub am Forst
Interessante Orte
Preis- und Lageinformationen
Preistrend für Bestandsimmobilien in Grub am Forst