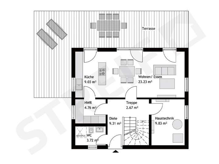
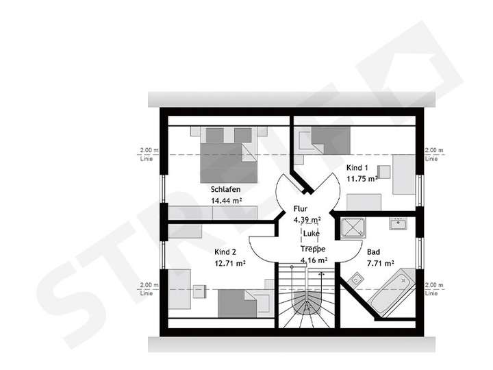
Entdecken Sie die exklusive Möglichkeit, Ihr Traumhaus in einer der begehrtesten Wohngegenden von Lehrte zu gestalten. Dieses projektierte Einfamilienhaus, das nach Ihren individuellen Wünschen entworfen wird, bietet mit seinen 117,65 m² Wohnfläche auf zwei Etagen eine ideale Kombination aus modernem Design und funktionalem Wohnkomfort. Mit vier großzügigen Schlafzimmern und zwei eleganten Badezimmern - eines davon ausgestattet mit Dusche, Badewanne und Fenster - sowie einem Gäste-WC, bietet dieses Haus ausreichend Platz für die ganze Familie. Die durchdachte Raumaufteilung und das stilvolle Ambiente machen dieses Objekt zur perfekten Wahl für anspruchsvolle Bauherren.
**Idyllisches Einfamilienhaus mit Potenzial für Ihre individuelle Gestaltung mit Klinkeraktion
31275 Lehrte
Die vollständige Adresse der Immobilie erhalten Sie vom Anbieter.
Auf Karte anzeigen
Die vollständige Adresse der Immobilie erhalten Sie vom Anbieter.
Finanzierungszertifikat
In nur zwei Minuten zu Ihrem persönlichen Finanzierungszertifkat.
Infos
| Haustyp | Einfamilienhaus |
|---|---|
| Etagenzahl | 2 |
| Wohnfläche ca. | 117 m2 |
| Nutzfläche | 25 m2 |
| Grundstücksfläche | 711 m2 |
| Bezugsfrei ab | 2025 |
| Zimmer | 4 |
| Schlafzimmer | 4 |
| Badezimmer | 2 |
Kosten
| Kaufpreis |
566.299 € |
|---|---|
| Provision | Nein |
Finanzierungsrechner:
Kaufpreis:
600.000 €
Eigenkapital:
600.000 €
Monatliche Rate
0 €
Effektiver Jahreszins
0 %
Sollzinsbindung
10 Jahre
Bausubstanz & Energieausweis
| Baujahr | 2025 |
|---|---|
| Bauphase | Haus in Planung (projektiert) |
| Qualität der Austattung | Gehoben |
| Heizungsart | Wärmepumpe |
| Energieausweis | liegt zur Besichtigung vor |
Beschreibung des Objekts
Ausstattung
Die Ausstattung Ihres neuen Zuhauses lässt keine Wünsche offen. Hochwertige Bodenbeläge aus Fliesen und Materialien Ihrer Wahl vereinen Funktionalität mit ästhetischem Anspruch und tragen zu einem exklusiven Wohngefühl bei. Die umweltfreundliche Wärmepumpe sorgt nicht nur für ein angenehmes Raumklima, sondern reduziert auch Ihre Energiekosten nachhaltig. Das Gebäude entspricht dem KFW40 Standard, was Ihnen zusätzliche Energieeinsparungen garantiert. Erleben Sie höchste Qualität in der Bauausführung, die Ihnen lange Freude an Ihrem Zuhause bereiten wird.
Lage
Das Haus befindet sich in einem charmanten Wohngebiet von Lehrte, das durch seine hervorragende Infrastruktur besticht. In unmittelbarer Nähe finden Sie alles, was das Herz begehrt: Einkaufsmöglichkeiten, Apotheken sowie Bildungs- und Betreuungseinrichtungen wie Grundschulen, Kindergärten und weiterführende Schulen sind schnell erreichbar. Zudem bieten zahlreiche Busverbindungen eine bequeme Anbindung an die Umgebung. Freuen Sie sich auf eine familienfreundliche Nachbarschaft mit Spielplätzen und reichlich Grünflächen für entspannte Stunden im Freien.
Sonstige Angaben
STREIF Haus - der Pionier der deutschen Fertighausbranche
Die langjährige Firmentradition des Unternehmens reicht bis in das Jahr 1929 zurück. In den 50er und 60er Jahren wurde in Deutschland schnell und viel Wohnraum für Familien benötigt, seitdem konzentrierte sich das Unternehmen auf die Entwicklung und Produktion von Fertighaustypen, die im Werk in großen Stückzahlen hergestellt werden konnten. So kann das Unternehmen auf 90.000 gebaute Hausobjekte zurückblicken und sich zu Recht als Pionier der deutschen Fertighausbranche bezeichnen.
Die neuen Energiesparhäuser - So baut man heute.
Unser Anspruch ist es, in enger Partnerschaft mit unseren Kunden langlebige Häuser zu bauen, mit einer hohen architektonischen Qualität, individuell geplant und dabei energieeffizient und ressourcenschonend. Jedes STREIF-Haus ist einzigartig und wird speziell für jeden Kunden "maßgeschneidert" und gebaut. Passend zu den persönlichen Wünschen, dem vorgegebenen Budget und dem vorhandenen Grundstück planen und bauen wir jedes Haus mit viel Liebe zum Detail.
Grundriss
unsere-besten-family-grundriss
>
>
unsere-besten-family-grundriss
>
>
Adresse
31275 Lehrte
Interessante Orte
Preis- und Lageinformationen
Preistrend für Bestandsimmobilien in Lehrte