Dieses großzügige Einfamilienhaus in bester Lage von Gelsenkirchen-Buer überzeugt durch sein außergewöhnliches Raumkonzept, helle Wohnbereiche und ein weitläufiges Grundstück von ca. 1.870 m².
Bereits der Eingangsbereich vermittelt ein offenes Wohngefühl: Eine stilvolle, weiß gestrichene Treppe mit Plexiglas-Absturzsicherung führt elegant ins Dachgeschoss und eröffnet eine Galerie. Rechterhand befindet sich das großzügige Wohn- und Esszimmer mit Panoramaverglasung zum Garten, Zugang zur großen Terrasse sowie einem offenen Kamin. Die Küche ist separat angelegt, ebenfalls geräumig und mit direktem Terrassen- und Gartenzugang.
Der Privatbereich im Erdgeschoss bietet drei Kinderzimmer, ein Gäste-WC und einen zusätzlichen kleinen Garderobenraum. Das Haus ist lichtdurchflutet und vermittelt zu jeder Tageszeit eine freundliche Wohnatmosphäre...
Wenn Sie mehr erfahren möchten, fordern Sie bitte jetzt Ihr Exposé an.
Großzügiger Familientraum in erstklassiger Lage
45894 Gelsenkirchen
Die vollständige Adresse der Immobilie erhalten Sie vom Anbieter.
Auf Karte anzeigen
Die vollständige Adresse der Immobilie erhalten Sie vom Anbieter.
Finanzierungszertifikat
In nur zwei Minuten zu Ihrem persönlichen Finanzierungszertifkat.
Infos
| Haustyp | Einfamilienhaus |
|---|---|
| Etagenzahl | 3 |
| Wohnfläche ca. | 217 m2 |
| Grundstücksfläche | 1.873 m2 |
| Zimmer | 7 |
| Schlafzimmer | 6 |
| Badezimmer | 2 |
| Garage/Stellplatz | Garage |
| Anzahl Garage/Stellplatz | 2 |
Kosten
| Kaufpreis |
730.000 € |
|---|---|
| Provision |
Käuferprovision beträgt 3,57 % (inkl. MwSt.) des beurkundeten Kaufpreises |
Finanzierungsrechner:
Kaufpreis:
600.000 €
Eigenkapital:
600.000 €
Monatliche Rate
0 €
Effektiver Jahreszins
0 %
Sollzinsbindung
10 Jahre
Bausubstanz & Energieausweis
| Baujahr | 1961 |
|---|---|
| Objektzustand | Gepflegt |
| Qualität der Austattung | Gehoben |
| Heizungsart | Zentralheizung |
| Wesentliche Energieträger | Gas |
| Energieausweis | liegt vor |
| Energieausweistyp | Bedarfsausweis |
| Energieverbrauchskennwert | 382,1 kWh/(m²*a) |
| Energieeffizienzklasse | H |
382,1
kWh/(m²*a)
Energieeffizienzklasse H
- A+
- A
- B
- C
- D
- E
- F
- G
- H
- 0
- 25
- 50
- 75
- 100
- 125
- 150
- 175
- 200
- 225
- >250
Beschreibung des Objekts
Ausstattung
GEHOBENE AUSSTATTUNG
• Satteldach mit Walmdachaufbau (80'er Jahre)
• Echtholzparkettböden | Terrazzoboden | Fliesen in Bädern
• Gaszentralheizung (2009) mit zentraler Warmwasserbereitung
• Flachheizkörper
• 2-fach-verglaste Holzfenster mit Rollläden im Erdgeschoss
• Große feststehende Fensterelemente im Wohnraum
• Offener Kamin im Wohnraum
• Gäste-WC
• Zwei Vollbäder (eines je Etage)
• Zwei Einzelgaragen am Rande des Grundstücks
• Einzigartiger Hortensiengarten mit altem Baumbestand
Lage
Diese besondere Immobilie liegt in einer der begehrtesten Wohnlagen von Gelsenkirchen-Buer, eingebettet in eine ruhige und grüne Umgebung. Die Straße, die dezent und ohne Durchgangsverkehr am Grundstück vorbeiführt, vermittelt sofort ein Gefühl von Privatsphäre und Diskretion. Die Nachbarhäuser sind mit großzügigem Abstand zueinander errichtet – hier genießt man Ruhe und Rückzug, ohne auf die Vorzüge einer zentralen Lage verzichten zu müssen.
Buer-Mitte selbst verbindet auf einzigartige Weise städtisches Flair mit naturnahem Wohnen. Der charmante Ortskern mit seinen Cafés, Restaurants und Boutiquen ist in wenigen Minuten erreichbar, ebenso Schulen, Kindergärten und sämtliche Einrichtungen des täglichen Bedarfs. Gleichzeitig laden die nahegelegene Hülser Heide, weitläufige Felder und gepflegte Parkanlagen zu Spaziergängen, Radtouren und sportlichen Aktivitäten im Freien ein.
Die Verkehrsanbindung ist ideal: Über die nahegelegenen Autobahnen A2 und A52 erreicht man schnell die umliegenden Städte des Ruhrgebiets und darüber hinaus. Auch mit öffentlichen Verkehrsmitteln ist die Anbindung hervorragend, sodass sowohl Berufspendler als auch Familien von der Lage profitieren.
Kurzum: Eine Wohnlage, die Diskretion und Großzügigkeit mit urbaner Nähe und naturnahem Lebensgefühl verbindet – ein Standort, der Ruhe und Rückzug bietet, ohne abgeschieden zu sein.
Sonstige Angaben
GELDWÄSCHE: Als Immobilienmaklerunternehmen ist die von Poll Immobilien GmbH nach § 2 Abs. 1 Nr. 14 und § 11 Abs. 1, 2 Geldwäschegesetz (GwG) dazu verpflichtet, bei der Begründung einer Geschäftsbeziehung die Identität des Vertragspartners festzustellen und zu überprüfen, bzw. sobald ein ernsthaftes Interesse an der Durchführung des Immobilienkaufvertrages besteht. Hierzu ist es erforderlich, dass wir nach § 11 Abs. 4 GwG die relevanten Daten Ihres Personalausweises festhalten (wenn Sie als natürliche Person handeln) – beispielsweise mittels einer Kopie. Bei einer juristischen Person benötigen wir eine Kopie des Handelsregisterauszugs, aus welchem der wirtschaftlich Berechtigte hervorgeht. Das Geldwäschegesetz sieht vor, dass der Makler die Kopien bzw. Unterlagen fünf Jahre aufbewahren muss. Als unser Vertragspartner haben Sie auch eine Mitwirkungspflicht nach § 11 Abs. 6 GwG.
HAFTUNG: Wir weisen darauf hin, dass die von uns weitergegebenen Objektinformationen, Unterlagen, Pläne etc. vom Verkäufer bzw. Vermieter stammen. Eine Haftung für die Richtigkeit oder Vollständigkeit der Angaben übernehmen wir daher nicht. Es obliegt daher unseren Kunden, die darin enthaltenen Objektinformationen und Angaben auf ihre Richtigkeit hin zu überprüfen. Alle Immobilienangebote sind freibleibend und vorbehaltlich Irrtümer, Zwischenverkauf- und Vermietung oder sonstiger Zwischenverwertung.
UNSER SERVICE FÜR SIE ALS EIGENTÜMER:
Planen Sie den Verkauf oder die Vermietung Ihrer Immobilie, so ist es für Sie wichtig, deren Marktwert zu kennen. Lassen Sie kostenfrei und unverbindlich den aktuellen Wert Ihrer Immobilie professionell durch einen unserer Immobilienspezialisten einschätzen. Unser bundesweites und internationales Netzwerk ermöglicht es uns, Verkäufer bzw. Vermieter und Interessenten bestmöglich zusammenzuführen.
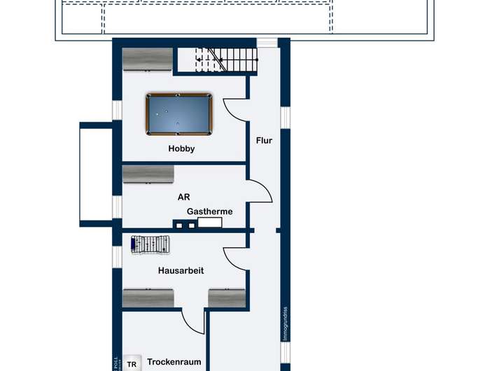
Grundriss
Erdgeschoss
>
>
Dachgeschoss
>
>
Kellergeschoss
>
>
Adresse
45894 Gelsenkirchen
Interessante Orte
Preis- und Lageinformationen
Preistrend für Bestandsimmobilien in Buer