Zum Verkauf stehen 2 Mehrfamilienhäuser im Zentrum von Richtenberg.
Eines der Häuser wird zum 1.Januar 2026 frei.
Das zweite Haus wird nach Absprache frei.
Es wird zur Übergabe komplett freigezogen an den neuen Eigentümer übergeben.
Das Gebäude hat eine Wohnfläche von ca. 412 m²und eine Nutzfläche von ca. 478 m².
Die Grundstücksfläche beträgt 2.477 m² und bietet daher auch einen hohen Erholungswert.
In den beiden Gebäude sind derzeit 3 Wohnungen vorhanden.
Mit den 18 Zimmern können aber auch durchaus 4 Wohnungen eingerichtet werden.
Die vorhandenen 5 Bäder sind dafür eine gute Voraussetzung.
In den letzten Jahren wurden am Objekt umfangreiche Modernisierungen und Sanierungen vorgenommen.
Dadurch wirkt das Gebäude sehr modern und zeitgemäß.
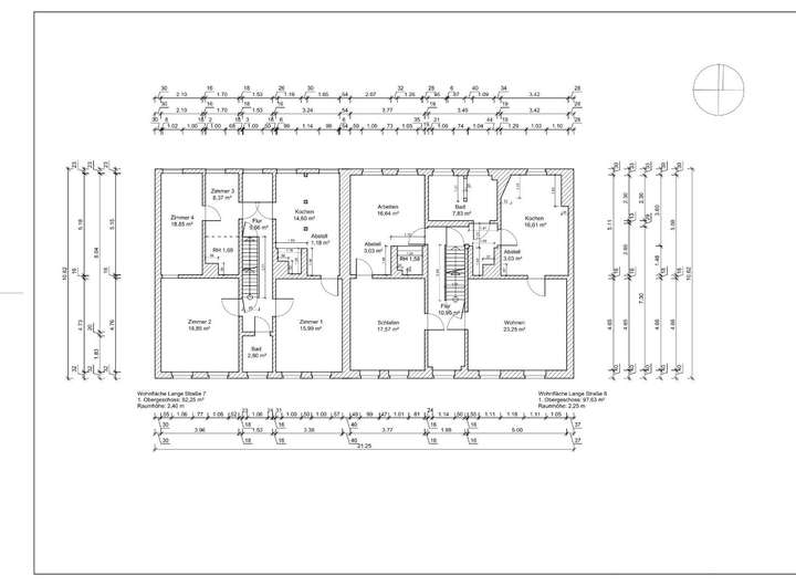
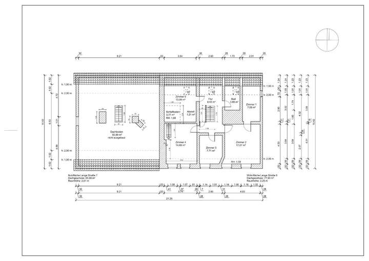
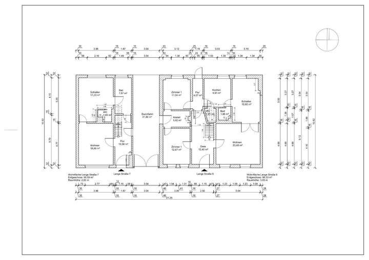
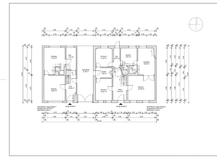
Die Aufteilung der Etagen können Sie den beigefügten Grundrissen entnehmen.
Auf dem Grundstück stehen dem Besitzer umfangreiche Nebengelässe zur Verfügung.
Dazu gehört eine kleine Kfz-Werkstatt, die auch mit einer Grube ausgestattet ist.
Weiter vorhanden ist ein Festraum, der ideal für Feiern genutzt werden kann - siehe beigefügte Bilder.
Ebenfalls vorhanden sind zahlreiche Lagerräume und das erwähnte Gartenhaus.
Diese ist modern eingerichtet und verfügt über ein Duschbad.
Der große Garten ist mit einer überdachten Terrasse ein optimaler Platz für laue Abende mit Blick auf die hinter dem Grundstück liegende Felder.
Im Garten stehen viele Obstbäume, und sogar ein kleines "Hochhaus" für Kinder.
Das Objekt ist hervorragend für ein Generationenwohnen, oder als Anlageimmobilien zur Vermietung geeignet.
Schuster aus Preussen - 2 Mehrfamilienäuser! Generationenwohnen oder Anlageobjekt kurz vor Stralsund
18461 Richtenberg
Die vollständige Adresse der Immobilie erhalten Sie vom Anbieter.
Auf Karte anzeigen
Die vollständige Adresse der Immobilie erhalten Sie vom Anbieter.
Finanzierungszertifikat
In nur zwei Minuten zu Ihrem persönlichen Finanzierungszertifkat.
Infos
| Haustyp | Mehrfamilienhaus |
|---|---|
| Etagenzahl | 3 |
| Wohnfläche ca. | 412 m2 |
| Grundstücksfläche | 2.477 m2 |
| Bezugsfrei ab | nach Absprache |
| Zimmer | 18 |
| Schlafzimmer | 14 |
| Badezimmer | 6 |
| Garage/Stellplatz | Garage |
| Anzahl Garage/Stellplatz | 4 |
Kosten
| Kaufpreis |
499.000 € |
|---|---|
| Provision |
7,14 % inkl. Mwst. |
Finanzierungsrechner:
Kaufpreis:
600.000 €
Eigenkapital:
600.000 €
Monatliche Rate
0 €
Effektiver Jahreszins
0 %
Sollzinsbindung
10 Jahre
Bausubstanz & Energieausweis
| Baujahr | 1918 |
|---|---|
| Bauphase | Haus fertig gestellt |
| Objektzustand | Gepflegt |
| Qualität der Austattung | Normal |
| Heizungsart | Gas-Heizung |
| Wesentliche Energieträger | Gas |
| Energieausweis | liegt zur Besichtigung vor |
Beschreibung des Objekts
Ausstattung
Bitte wählen Sie für die erste Anfrage die Kontaktaufnahme per Mail aus der Anzeige heraus!
Die Merkmale dieses Angebotes im Überblick:
+ 2 Mehrfamilienhäuser im Zentrum von Richtenbergkomplett
+ Objekt besteht aus 2 Gebäuden mit eigener Hausnummer
+ das Haus wird nach dem Verkauf vollständig freigezogen!
+ malerisches Grundstück von ca. 2.477 m²
+ Wohnfläche von insgesamt ca. 412 m²
+ 18 Zimmer, derzeit aufgeteilt in 3 Wohnungen
+ 5 Bäder und ein weiteres Bad im Gartenhaus auf dem Hof
+ eine Aufteilung in 4 Wohnungen ebenfalls ist unproblematisch möglich
+ Grundbaujahr 1918
+ in den letzten Jahren wurden umfangreiche Modernisierungen und Sanierungen vorgenommen
+ neben dem Wohnhaus steht ein ummfangreiches Nebengelaß - mit Ferienwohnung - und das schon erwähnte malerische Grundstück zur Verfügung
+ zu dem Nebengelaß gehören unter Anderem eine kleine Kfz-Werkstatt mit Grube, ein großer Festraum und umfangreiches Nebengelass
+ idealerweise kann das Grundstück auch von hinten befahren und begangen werden
+ die Erschließungssituation ist vollständig, also Wasser, Abwasser, DSL, Strom und Erdgas
Lage
Dieses unvermietete Mehrfamilienhaus liegt im Zentrum von Richtenberg, einer Kleinstadt ca. 15 km vor Stralsund.
In der Stadt gibt es zahlreiche Einkaufsmöglichkeiten und weitere - wichtige - urbane Voraussetzungen für ein komplettes Umfeld.
Sonstige Angaben
Bitte wählen Sie für die erste Anfrage die Kontaktaufnahme per Mail aus der Anzeige heraus!
Ist in der Anzeige kein Energiekennwert angegeben, so wird der Energieausweis derzeit erstellt, und rechtzeitig zur ersten Besichtigung zur Verfügung gestellt.
Besichtigungen vereinbaren Sie bitte unter schusterauspreussen@mail.de mit Herrn Rainer Schuster.
Alle Informationen sind Informationen des Verkäufers. Trotz gewissenhafter Erstellung des Exposés können Irrtümer auftreten. Eine Haftung dafür schließen wir ausdrücklich aus.
Der Zwischenverkauf bleibt vorbehalten.
Die Verhandlung mit dem Verkäufer sind stets freibleibend, vorbehaltlich des Zwischenverkaufs sowie vorbehaltlich der Zustimmung des Verkäufers.
Schadensersatzansprüche aus Beratungs-, Finanzierungskosten etc. werden nicht anerkannt bzw. übernommen.
Adresse
18461 Richtenberg
Interessante Orte
Preis- und Lageinformationen
Preistrend für Bestandsimmobilien in Richtenberg
>
>
>