In ruhiger Wohnlage von Ennepetal befindet sich dieses Reihenmittelhaus, das im Jahr 1978 in massiver Bauweise errichtet wurde.
Insgesamt stehen rd. 104 m² Wohnfläche und rd. 21 m² Nutzfläche zur Verfügung, die Aufteilung ist wie folgt:
Untergeschoss: Flur, zwei Kellerräume, Garage (vom Flur aus begehbar).
Erdgeschoss: Küche, Gäste-WC, Wohn-/Esszimmer, Wintergarten (rd. 19 m²), kleine Gartenfläche.
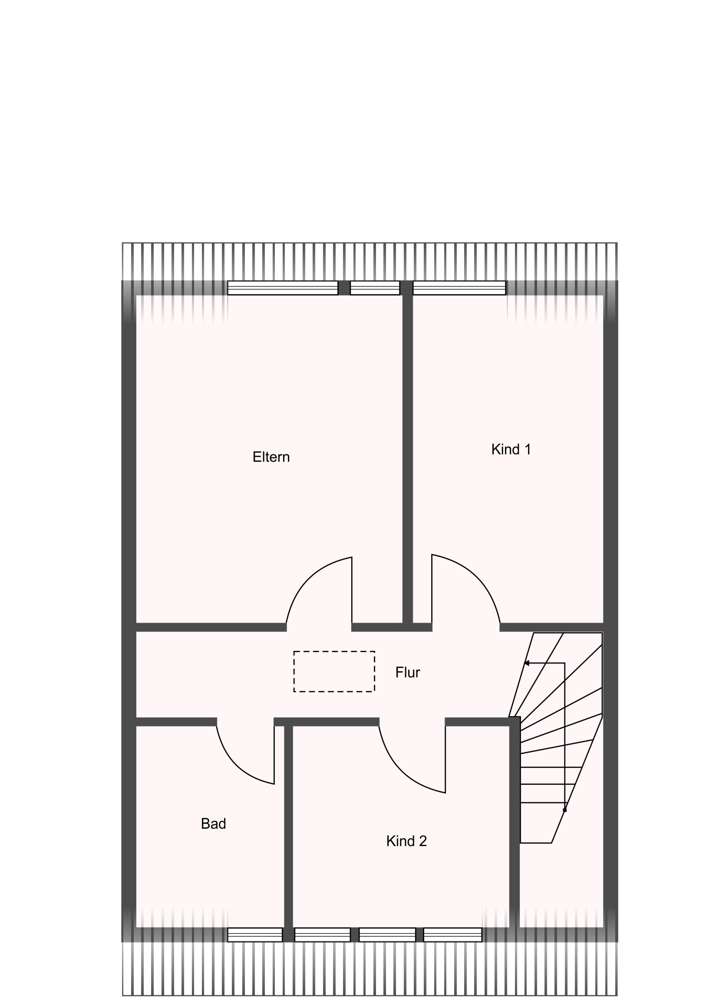
Dachgeschoss: Drei (Schlaf-)Räume, Flur, Badezimmer, ausgestattet mit Dusche, Badewanne, Waschbecken, WC, Fenster. Von einem der Schlafräume aus erfolgt der Zugang zum Spitzboden, der reichlich Stauraum bietet.
Insgesamt ist das Wohnhaus in einem gepflegten Zustand, die Ausstattung entspricht allerdings nicht mehr dem heutigen Zeitgeschmack.
Gerne präsentieren wir Ihnen die Immobilie in einem persönlichen Besichtigungstermin.
Gemütliches Reihenmittelhaus - Keller - Wintergarten - Garage -
58256 Ennepetal
Die vollständige Adresse der Immobilie erhalten Sie vom Anbieter.
Auf Karte anzeigen
Die vollständige Adresse der Immobilie erhalten Sie vom Anbieter.
Finanzierungszertifikat
In nur zwei Minuten zu Ihrem persönlichen Finanzierungszertifkat.
Infos
| Haustyp | Reihenmittelhaus |
|---|---|
| Wohnfläche ca. | 104 m2 |
| Nutzfläche | 21 m2 |
| Grundstücksfläche | 143 m2 |
| Bezugsfrei ab | nach Absprache |
| Zimmer | 4 |
| Schlafzimmer | 3 |
| Badezimmer | 1 |
| Garage/Stellplatz | Garage |
| Anzahl Garage/Stellplatz | 1 |
Kosten
| Kaufpreis |
250.000 € |
|---|---|
| Provision |
3,57 % (3 % zzgl. 19 % MwSt.) Nach Abschluss des notariellen Kaufvertrags ist eine Maklercourtage in Höhe von 3,57 % an Martin-Perez Immobilien GmbH fällig. |
Finanzierungsrechner:
Kaufpreis:
600.000 €
Eigenkapital:
600.000 €
Monatliche Rate
0 €
Effektiver Jahreszins
0 %
Sollzinsbindung
10 Jahre
Bausubstanz & Energieausweis
| Baujahr | 1978 |
|---|---|
| Letzte Sanierung | 2016 |
| Objektzustand | Gepflegt |
| Qualität der Austattung | Einfach |
| Heizungsart | Zentralheizung |
| Wesentliche Energieträger | Gas |
| Energieausweis | liegt vor |
| Energieausweistyp | Bedarfsausweis |
| Energieverbrauchskennwert | 238,0 kWh/(m²*a) |
| Energieeffizienzklasse | G |
238,0
kWh/(m²*a)
Energieeffizienzklasse G
- A+
- A
- B
- C
- D
- E
- F
- G
- H
- 0
- 25
- 50
- 75
- 100
- 125
- 150
- 175
- 200
- 225
- >250
Beschreibung des Objekts
Ausstattung
Baujahr: 1978
Bauweise: massiv
Grundstücksfläche: 143 m²
Wohnfläche: rd. 104 m²
Nutzfläche: rd. 21 m² (Garage, 2 Kellerräume)
Heizung: Gas Zentralheizung 1998, (Warmwasser über Durchlauferhitzer)
Fenster: Holzrahmen braun, 2-fach verglast
Böden: Laminat, Fliesen
Wände: Tapete, Fliesen
Modernisierungen:
2003 Wintergarten
2016 tlw. Fenster DG
Extras: Wintergarten (rd. 19 m²), Garten, Keller, Garage
Lage
Ennepetal liegt am nördlichen Rand des Ruhrgebiets, hat rd. 30.000 Einwohner und zeichnet sich durch die Nähe an die angrenzenden Städte Gevelsberg, Schwelm und Hagen aus.
Das Wohnhaus befindet sich in einem verkehrsberuhigten Wohngebiet in Ennepetal Milspe, nicht weit entfernt vom Stadtzentrum.
Die Stadt Ennepetal verfügt über eigene Infrastruktureinrichtungen wie Schulen, Kindergärten, Kreditinstitute, Ärzte sowie Einkaufsmöglichkeiten zur Deckung des täglichen Bedarfs. Auch die Anbindung an den öffentlichen Nahverkehr ist in der Nähe vorhanden.
Sonstige Angaben
Alle in dem Exposé genannten Angaben wurden vom Eigentümer gemacht. Diese wurden mit Sorgfalt übernommen. Eine Garantie, Haftung oder Gewährleistung kann durch die Maklerfirma nicht übernommen werden und ist damit ausgeschlossen. Ihre Daten werden nur zur Bearbeitung Ihrer Anfrage gespeichert und ohne Ihre Zustimmung nicht an Dritte weitergleitet. Sie haben das Recht zu jeder Zeit Auskunft über Ihre bei uns hinterlegten Daten zu erhalten oder die Löschung dieser Daten zu verlangen, sofern dies nicht gesetzlichen Vorgaben (z. B. ordnungsgemäße Buchführung) nach Abschluss eines Kaufvertrages widerspricht. Bitte haben Sie Verständnis, dass wir Ihnen das Exposé nur nach Angabe Ihres Namens, Ihrer Adresse und Telefonnummer zusenden.
Hinweis zur Maklercourtage: Die Gesamtcourtage beträgt 6 % zzgl. 19 % MwSt., diese wird hälftig zwischen Käufer und Verkäufer geteilt. Mit Beurkundung des notariellen Kaufvertrags ist eine Käuferprovision in Höhe von 3 % zzgl. 19 % MwSt. (insgesamt 3,57 %) fällig. Mit dem Verkäufer wurde ein provisionspflichtiger Maklervertrag in gleicher Höhe abgeschlossen.
Grundriss
Untergeschoss
>
>
Erdgeschoss
>
>
Dachgeschoss
>
>
Adresse
58256 Ennepetal
Interessante Orte
Preis- und Lageinformationen
Preistrend für Bestandsimmobilien in Ennepetal