Neubau mit Traumlage in Riegelsberg. 700m Entfernung zur Saarbahn, Bushaltestelle in unmittelbarer Nähe.
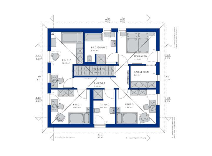
Grundrisse und Abbildungen können Extras zeigen. Flächenangaben nach DIN 277.
Ihr Bien-Zenker Traumhaus: Modernes Wohnen in Riegelsberg
66292 Riegelsberg
Die vollständige Adresse der Immobilie erhalten Sie vom Anbieter.
Auf Karte anzeigen
Die vollständige Adresse der Immobilie erhalten Sie vom Anbieter.
Finanzierungszertifikat
In nur zwei Minuten zu Ihrem persönlichen Finanzierungszertifkat.
Infos
| Haustyp | Einfamilienhaus |
|---|---|
| Wohnfläche ca. | 164 m2 |
| Grundstücksfläche | 696 m2 |
| Zimmer | 5 |
Kosten
| Kaufpreis |
647.361 € |
|---|
Finanzierungsrechner:
Kaufpreis:
600.000 €
Eigenkapital:
600.000 €
Monatliche Rate
0 €
Effektiver Jahreszins
0 %
Sollzinsbindung
10 Jahre
Bausubstanz & Energieausweis
| Baujahr | 2026 |
|---|---|
| Qualität der Austattung | Gehoben |
Beschreibung des Objekts
Ausstattung
Die moderne Stadtvilla ist ausgestattet mit einer effizienten Wärmepumpe und wird schlüsselfertig (bezugsfertig) angeboten.
Weitere Ausstattungsvarianten und Extras sind möglich.
Lage
Riegelsberg, ein charmantes Städtchen, bietet Ihnen eine ideale Mischung aus ruhigem Leben und urbaner Anbindung. In der Umgebung finden Sie zahlreiche Bildungseinrichtungen, darunter Schulen und Kindergärten, die sowohl kurze Wege als auch hohe Bildungsstandards garantieren. Einkaufsmöglichkeiten sind ebenfalls reichlich vorhanden, sodass Sie alles für den täglichen Bedarf in unmittelbarer Nähe finden. Die gute Anbindung an den öffentlichen Nahverkehr ermöglicht es Ihnen, schnell und unkompliziert in die umliegenden Städte zu gelangen, während die Autobahn in kurzer Zeit erreichbar ist und Ihnen eine komfortable Verbindung zu den größeren Ballungszentren bietet. Freizeitmöglichkeiten sind in Riegelsberg ebenso zahlreich, ob Sie Sport treiben, die Natur genießen oder kulturelle Veranstaltungen besuchen möchten - hier finden Sie alles, was Ihr Herz begehrt. Die Saarbahn ist nur 700m vom Bauplatz entfernt und eine Bushaltestelle befindet sich in unmittelbarer Nähe.
Sonstige Angaben
Weitere Dachformen, Grundrissgestaltungen und Ausstattungen möglich. Der angegebene Preis beinhaltet bereits den Grundstückskaufpreis sowie den schlüsselfertigen Hauspreis exkusive. Bau- und Kaufnebenkosten.
Die Abbildung kann Extras enthalten.
Grundriss
EG
>
>
DG
>
>
Adresse
66292 Riegelsberg
Interessante Orte
Preis- und Lageinformationen
Preistrend für Bestandsimmobilien in Riegelsberg