Erfüllen Sie sich Ihren Traum vom Eigenheim im Grünen!
Unser Aktionshaus Edition 123 V3 bietet Platz für die Familie!
Profitieren Sie von unseren Bien - Zenker - Vorteilen:
18 Monate Festpreisgarantie
BAUPREISINDEX-SICHERUNG (bei fallenden Baupreis sinkt auch Ihr Hauspreis)
Premium Versicherungspaket inkl.
KFN und KFN-Q förderfähige Planung (Dank klimafreundlichem Neubau Förderkredit von bis zu 150 000 Euro; inkl. Baubegleitung durch eigene Bien-Zenker Sachverständige)
Bien-Zenker App (direkter Kontakt zu Ansprechpartnern, Überblick Projektfortschritt, Budgetrechner Zugriff auf Bauunterlagen und Inspirationspinnwand)
Baustelleneinrichtung (Abfallcontainer, Baustellen-WC, Montagekran, Montagegerüst)
DGNB-Zertifikat in Gold (der gesamte Lebenszyklus Ihres Bien-Zenker Hauses hat Gold-Standard für höchste ökologische, ökonomische, funktionale und technische Qualität)
QNG-Zertifizierung (Qualitätssiegel Nachhaltiges Gebäude) für KFN-QNG KFW-Förderung optional
PV-Anlage und Speicherbatterie bei förderfähigen Häusern (Effizienzklasse 40 Plus) inkl., ansonsten optional
Bis zu EUR 60.000,-- Einsparung durch KfW-Förderung!
Hohe Energieeinsparung durch Niedrigenergie!
Bestpreisgarantie mit Bien-Zenker- Moderner Baustil - Ihr neues Zuhause!
66578 Schiffweiler
Die vollständige Adresse der Immobilie erhalten Sie vom Anbieter.
Auf Karte anzeigen
Die vollständige Adresse der Immobilie erhalten Sie vom Anbieter.
Finanzierungszertifikat
In nur zwei Minuten zu Ihrem persönlichen Finanzierungszertifkat.
Infos
| Haustyp | Einfamilienhaus |
|---|---|
| Wohnfläche ca. | 126 m2 |
| Grundstücksfläche | 375 m2 |
| Zimmer | 6 |
Kosten
| Kaufpreis |
344.192 € |
|---|---|
| Provision | Nein |
Finanzierungsrechner:
Kaufpreis:
600.000 €
Eigenkapital:
600.000 €
Monatliche Rate
0 €
Effektiver Jahreszins
0 %
Sollzinsbindung
10 Jahre
Bausubstanz & Energieausweis
| Baujahr | 2024 |
|---|---|
| Qualität der Austattung | Gehoben |
Beschreibung des Objekts
Ausstattung
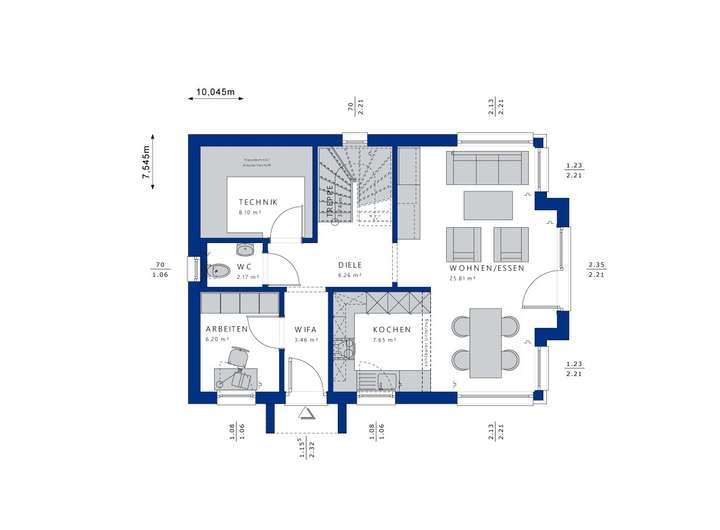
Dieser Grundriss bietet eine Wohnfläche von ca. 126,41 m².
Gerne planen wir Ihr Haus individuell nach Ihren Wünschen und Vorstellungen!
Wärmepumpe inkl. Be- und Entlüftung
Das Haus wird Ihnen Zur Ausstattung Fertig angeboten (ZAF).
Ihre Eigenleistung beinhaltet den Innenausbau: Fliesen, Böden, Wände, die sanitären Objekte und die Innentüren
Auf Wunsch führen wir Ihnen das Haus auch schlüsselfertig aus.
Lage
Das 375 m² große und ebene Baugrundstück liegt in unmittelbarer Nähe zu Feld und Wald in Stennweiler. Durch das ebene Gelände bietet sich eine Bebauung auf Bodenplatte für Ihr neues Haus an.
Stennweiler ist der nördlichste Ortsteil der Gemeinde Schiffweiler. Im Nordwesten grenzt er an den Ortsteil Welschbach der Gemeinde Illingen (Saar), im Nordosten an die Stadt Ottweiler. Geschäfte des täglichen Lebens finden Sie in der Nähe genauso wie z.B. einen Kindergarten.
Sonstige Angaben
Das Baugrundstück wird uns von einem privaten Verkäufer zur kostenfreien Vermarktung angeboten und ist bereits im Preis inkludiert. Bitte berücksichtigen Sie für Ihre Anfragen, dass wir nur Anfragen beantworten, deren vollständige Kontaktdaten (Adresse, Mail und Telefonnummer) angegeben sind.
Grundriss
33249-1432-4-g
>
>
33234-1432-3-g
>
>
Adresse
66578 Schiffweiler
Interessante Orte
Preis- und Lageinformationen
Preistrend für Bestandsimmobilien in Schiffweiler