Unser Edition 145 auf Keller ist einfach ein Hingucker.
Profitieren Sie von unseren Bien - Zenker - Vorteilen:
18 Monate Festpreisgarantie
BAUPREISINDEX-SICHERUNG (bei fallenden Baupreis sinkt auch Ihr Hauspreis)
Premium Versicherungspaket inkl.
KFN und KFN-Q förderfähige Planung (Dank klimafreundlichem Neubau Förderkredit von bis zu 150 000 Euro; inkl. Baubegleitung durch eigene Bien-Zenker Sachverständige)
Bien-Zenker App (direkter Kontakt zu Ansprechpartnern, Überblick Projektfortschritt, Budgetrechner Zugriff auf Bauunterlagen und Inspirationspinnwand)
Baustelleneinrichtung (Abfallcontainer, Baustellen-WC, Montagekran, Montagegerüst)
DGNB-Zertifikat in Gold (der gesamte Lebenszyklus Ihres Bien-Zenker Hauses hat Gold-Standard für höchste ökologische, ökonomische, funktionale und technische Qualität)
QNG-Zertifizierung (Qualitätssiegel Nachhaltiges Gebäude) für KFN-QNG KFW-Förderung optional
PV-Anlage und Speicherbatterie bei förderfähigen Häusern (Effizienzklasse 40 Plus) inkl., ansonsten optional
Bis zu EUR 60.000,-- Einsparung durch KfW-Förderung!
Hohe Energieeinsparung durch Niedrigenergie!
Bestpreisgarantie mit Bien-Zenker- Ihr neues Zuhause in idyllischer Lage!
66589 Merchweiler
Die vollständige Adresse der Immobilie erhalten Sie vom Anbieter.
Auf Karte anzeigen
Die vollständige Adresse der Immobilie erhalten Sie vom Anbieter.
Finanzierungszertifikat
In nur zwei Minuten zu Ihrem persönlichen Finanzierungszertifkat.
Infos
| Wohnfläche ca. | 145 m2 |
|---|---|
| Grundstücksfläche | 463 m2 |
| Zimmer | 5 |
Kosten
| Kaufpreis |
413.587 € |
|---|
Finanzierungsrechner:
Kaufpreis:
600.000 €
Eigenkapital:
600.000 €
Monatliche Rate
0 €
Effektiver Jahreszins
0 %
Sollzinsbindung
10 Jahre
Bausubstanz & Energieausweis
| Baujahr | unbekannt |
|---|
Beschreibung des Objekts
Ausstattung
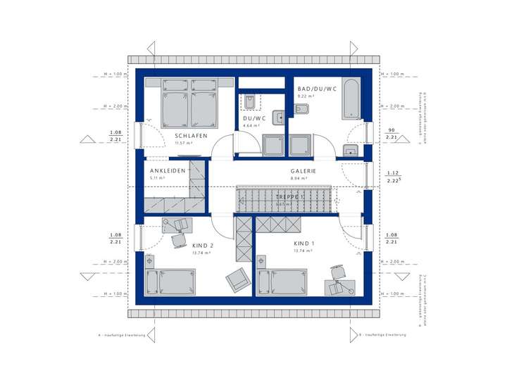
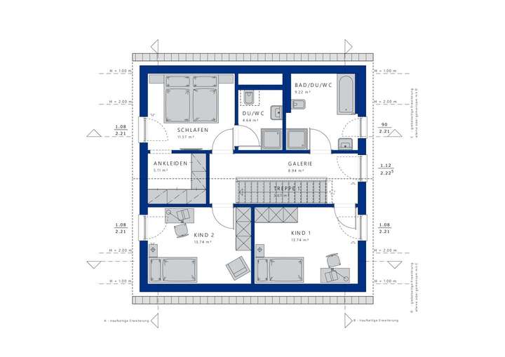
Dieser Grundriss bietet eine Wohnfläche von ca. 145,72 m².
Gerne planen wir Ihr Haus individuell nach Ihren Wünschen und Vorstellungen!
Wärmepumpe inkl. Be- und Entlüftung
Das Haus wird Ihnen Zur Ausstattung Fertig angeboten (ZAF).
Ihre Eigenleistung beinhaltet den Innenausbau: Fliesen, Böden, Wände, die sanitären Objekte und die Innentüren
Auf Wunsch führen wir Ihnen das Haus auch schlüsselfertig aus.
Lage
Merchweiler Wemmetsweiler ist eine Gemeinde im Saarland und verfügt über eine gute Infrastruktur. Die Lage ist ideal, da sie nahe an wichtigen Verkehrswegen liegt. Zudem gibt es ein breites Spektrum von Grundschulen und weiterführenden Schulen, um eine gute Schulbildung zu bieten.
Freizeitmöglichkeiten sowie Erholungsgebiete sind vorhanden!
Das Baugrundstück führt hinten heraus mit Hanglage.
Grundriss
33302-1435-4-g
>
>
33305-1435-1-g
>
>
Adresse
66589 Merchweiler
Interessante Orte
Preis- und Lageinformationen
Preistrend für Bestandsimmobilien in Merchweiler