Entdecken Sie den Kronenpark, ein einzigartiges Wohnensemble auf einem parkähnlichen Grundstück, das Ruhe und Erholung mitten in Königs Wusterhausen ermöglicht. Hier erwarten Sie 14 exklusive Häuser mit jeweils 4 Geschossen, die höchsten Wohnkomfort und moderne Architektur vereinen.
Im Haus E, das gerade fertiggestellt wurde, finden Sie großzügige 2- und 3-Zimmer-Neubauwohnungen, die durch ihre gehobene Ausstattung und durchdachte Raumaufteilung bestechen.
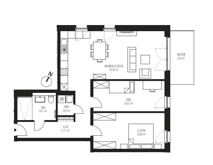
Diese exklusive 3-Zimmer-Neubauwohnung im 2. Obergeschoss weiß durch ihre hochwertige Ausstattung und durchdachte Raumgestaltung zu überzeugen. Auf rund 90 m² erwartet Sie ein lichtdurchfluteter Wohn- und Essbereich mit offener Einbauküche samt Markengeräten sowie Zugang zum großzügigen Balkon. Zwei Schlafzimmer, ein modernes Bad mit hochwertigen Armaturen von Grohe und Duravit sowie ein praktischer Hauswirtschaftsraum runden das Raumangebot ab. Bodentiefe Fenster, Fußbodenheizung, elektrische Rollläden und eine Video-Gegensprechanlage unterstreichen den modernen und innovativen Wohnkomfort. Ein Tiefgaragenstellplatz mit Wallbox verfügt über genug Stellfläche für Ihren PKW.
Lassen Sie sich von der exklusiven Wohnqualität im Kronenpark begeistern und erleben Sie ein neues Zuhause, das alle Ihre Ansprüche erfüllt.
Wunderschöne 3-Zimmer-Wohnung mit Balkon vor den Toren Berlins!
15711 Königs Wusterhausen
Die vollständige Adresse der Immobilie erhalten Sie vom Anbieter.
Auf Karte anzeigen
Die vollständige Adresse der Immobilie erhalten Sie vom Anbieter.
Finanzierungszertifikat
In nur zwei Minuten zu Ihrem persönlichen Finanzierungszertifkat.
Infos
| Wohnungskategorie | Etagenwohnung |
|---|---|
| Etage | 2 von 4 |
| Wohnfläche ca. | 89 m2 |
| Zimmer | 3 |
| Schlafzimmer | 2 |
| Badezimmer | 1 |
| Garage/Stellplatz | Tiefgarage |
| Anzahl Garage/Stellplatz | 1 |
Kosten
| Kaufpreis |
441.232 € |
|---|---|
| Preis für Garage/Stellplatz | 36.500 € |
| Provision | Nein |
Finanzierungsrechner:
Kaufpreis:
600.000 €
Eigenkapital:
600.000 €
Monatliche Rate
0 €
Effektiver Jahreszins
0 %
Sollzinsbindung
10 Jahre
Bausubstanz & Energieausweis
| Baujahr | 2024 |
|---|---|
| Objektzustand | Erstbezug |
| Qualität der Austattung | Gehoben |
| Heizungsart | Fernwärme |
| Wesentliche Energieträger | KWK fossil |
| Energieausweis | liegt vor |
| Energieausweistyp | Bedarfsausweis |
| Energieverbrauchskennwert | 47,7 kWh/(m²*a) |
| Energieeffizienzklasse | A |
47,7
kWh/(m²*a)
Energieeffizienzklasse A
- A+
- A
- B
- C
- D
- E
- F
- G
- H
- 0
- 25
- 50
- 75
- 100
- 125
- 150
- 175
- 200
- 225
- >250
Beschreibung des Objekts
Ausstattung
- Luxuriöses Badezimmer mit begehbarer Dusche
- Offener Wohn- und Küchenbereich: Perfekt für ein entspanntes und gemütliches Beisammensein.
- Einbauküche mit Markengeräten wie AEG
- Großer Balkon: Sommer, Sonne und Entschleunigung.
- Kinderzimmer oder Home Office
- Hauswirtschaftsraum: Mit Waschmaschinenanschluss für mehr Komfort.
- Fußbodenheizung: Sorgt für behagliche Wärme in der gesamten Wohnung.
- Elektrische Rollläden und Video-Gegensprechanlage: ermöglichen Komfort und Sicherheit.
- Bodentiefe Fenster: Lassen viel Licht in die Räume und schaffen eine freundliche Atmosphäre.
- Hochwertiger Parkettboden im Landhausdielen-Stil
- Badezimmereinrichtungen von renommierten Herstellern wie Grohe und Duravit.
- Tiefgaragen-Stellplatz inklusive Wallbox (zzgl. 36.500 €)
Lage
Königs Wusterhausen – ein charmanter Vorort von Berlin, der idyllisches Wohnen mit exzellenter Anbindung verbindet. Hier finden Sie die perfekte Mischung aus ruhigem, naturnahem Leben und der pulsierenden Energie der Hauptstadt.
Die Umgebung verfügt über eine Vielzahl von Einkaufsmöglichkeiten, darunter verschiedene Supermärkte, Drogerien und Geschäfte des täglichen Bedarfs, die bequem zu Fuß oder mit dem Fahrrad erreichbar sind. Die umliegenden Grünflächen und die nahegelegenen Seen, wie der Zeesener See, laden zu Spaziergängen, Joggingrunden oder Fahrradtouren ein. Für Familien sind zahlreiche Schulen und Kindergärten gut erreichbar, was die Lage besonders attraktiv macht. Eine Auswahl an Cafés, Restaurants und Bars sorgt für kulinarische Abwechslung.
Über die nahegelegene A10 sind sowohl das Stadtzentrum Berlins als auch andere wichtige Verkehrsknotenpunkte schnell erreichbar. Der Bahnhof Königs Wusterhausen ist nur wenige Minuten entfernt und stellt regelmäßige Verbindungen nach Berlin bereit. Mit der Regionalbahn gelangen Sie in etwa 25 Minuten zum Bahnhof Berlin Ostkreuz, einem zentralen Umsteigepunkt. Der Flughafen Berlin Brandenburg (BER) ist in etwa 20 Minuten mit dem Auto erreichbar, was besonders für Vielflieger und Geschäftsreisende von Vorteil ist. Zudem garantiert die strategische Lage eine schnelle Anbindung an Grünheide, den Standort der Tesla Gigafactory, und den renommierten Technologiepark Adlershof, der in weniger als 30 Minuten erreichbar ist.
Sonstige Angaben
Bitte haben Sie Verständnis dafür, dass wir Ihre Anfrage nur in schriftlicher Form (bevorzugt per E-Mail) unter Angabe des vollständigen Namens und Ihrer Adresse bearbeiten können.
Eine Besichtigung ist nach vorheriger Absprache mit uns möglich.
Gerne sind wir bei der Finanzierung dieses Objektes behilflich.
Hinweis: Die Angaben zum Objekt erfolgen auf Basis der Information der Verkäufer. Eine Gewähr für die Vollständigkeit und Richtigkeit der Angaben kann nicht übernommen werden. Bitte beachten Sie, dass die Angaben von derzeitigen Kosten, wie z. B. Hausgeld, Betriebskosten oder auch Renditeberechnungen, lediglich eine Momentaufnahme darstellen und sich diese Angaben in der Zukunft ändern können. Das Exposé ist nicht für Dritte bestimmt!
Gerne nehmen wir Sie in unsere Interessentendatenbank auf und senden Ihnen unverbindlich passende Exposés. Hier können Sie Ihr Suchprofil hinterlegen: https://www.bsk-immobilien.de/kontakt/suchprofilanfrage
Sie besitzen einen Schatz? Ermitteln Sie hier (https://www.bsk-immobilien.de/verkaufen/) schnell und kostenlos den Wert Ihrer Immobilie!
Grundriss
Grundriss
>
>
Adresse
15711 Königs Wusterhausen
Interessante Orte
Preis- und Lageinformationen
Preistrend für Bestandsimmobilien in Königs Wusterhausen