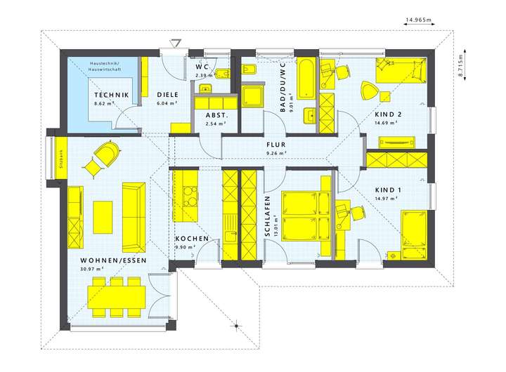
Stell dir vor, du betrittst dein neues Zuhause, einen liebevoll geplanten Bungalow mit klassischem Satteldach, der ganz auf deine Wünsche und Vorstellungen abgestimmt ist. Mit einer großzügigen Wohnfläche von 110 m² und einem durchdachten Grundriss, der vier Zimmer, darunter zwei Schlafzimmer und zwei Badezimmer umfasst, bietet dieses Fertighaus ausreichend Platz für dich und deine Familie. Der Giebelerker im Dach sorgt dafür, dass sowohl das Kinder- als auch das Schlafzimmer mehr Raum zum Spielen und Entspannen bieten. Das angrenzende Querhaus mit Satteldach erweitert nicht nur dein Ankleidezimmer, sondern auch deine Küchenzeile, die perfekt für gesellige Kochabende mit Freunden und Familie geeignet ist. Der direkte Zugang zur Terrasse ermöglicht es dir, die warmen Sonnenstrahlen und die frische Luft zu genießen, während du deine Freizeit im Freien verbringst.
Mit LivingHaus in Dreetz - Fertighaus individuell nach Maß !
16845 Dreetz
Die vollständige Adresse der Immobilie erhalten Sie vom Anbieter.
Auf Karte anzeigen
Die vollständige Adresse der Immobilie erhalten Sie vom Anbieter.
Finanzierungszertifikat
In nur zwei Minuten zu Ihrem persönlichen Finanzierungszertifkat.
Infos
| Haustyp | Bungalow |
|---|---|
| Etagenzahl | 1 |
| Wohnfläche ca. | 110 m2 |
| Nutzfläche | 118 m2 |
| Grundstücksfläche | 512 m2 |
| Zimmer | 4 |
| Schlafzimmer | 3 |
| Badezimmer | 2 |
Kosten
| Kaufpreis |
418.350 € |
|---|
Finanzierungsrechner:
Kaufpreis:
600.000 €
Eigenkapital:
600.000 €
Monatliche Rate
0 €
Effektiver Jahreszins
0 %
Sollzinsbindung
10 Jahre
Bausubstanz & Energieausweis
| Baujahr | 2026 |
|---|---|
| Bauphase | Haus in Planung (projektiert) |
| Qualität der Austattung | Gehoben |
| Heizungsart | Wärmepumpe |
| Energieausweis | liegt vor |
| Energieausweistyp | Bedarfsausweis |
| Energieverbrauchskennwert | 18,0 kWh/(m²*a) |
| Energieeffizienzklasse | A+ |
18,0
kWh/(m²*a)
Energieeffizienzklasse A+
- A+
- A
- B
- C
- D
- E
- F
- G
- H
- 0
- 25
- 50
- 75
- 100
- 125
- 150
- 175
- 200
- 225
- >250
Beschreibung des Objekts
Ausstattung
In deinem neuen Zuhause profitierst du von einer Vielzahl hochwertiger Ausstattungsmerkmale. Die Traumküche von Living Haus wird individuell nach deinem Grundriss und deinen Bedürfnissen gestaltet, ausgestattet mit modernster Technik und cleveren Stauraumlösungen. Im Zuhause-Paket erhältst du edle Türen, moderne Böden und stilvolle Sanitäranlagen, die perfekt aufeinander abgestimmt sind. Dank des Living Haus Bau-Cockpits hast du jederzeit den Überblick über dein Bauprojekt und kannst alle Informationen digital abrufen. Zudem sorgt die I-KON-Technologie für ein energieeffizientes und umweltfreundliches Zuhause. Mit dem DIY-Ausbau-Coaching wirst du zum Profi in deinem eigenen Heim und kannst den Innenausbau selbst gestalten. So wird dein Fertighaus genau so, wie du es dir immer gewünscht hast - dein "Wie ich es will Fertighaus".
Lage
Dreetz ist ein malerischer Ort, der dir und deiner Familie eine hohe Lebensqualität bietet. In der näheren Umgebung findest du zahlreiche Schulen, darunter die Grundschule in Dreetz, die für ihre familiäre Atmosphäre und engagierten Lehrkräfte bekannt ist. Für die Kleinsten gibt es einen Kindergarten, der ebenfalls in der Nähe liegt. Die medizinische Versorgung wird durch mehrere Arztpraxen sichergestellt, sodass du im Bedarfsfall schnell einen Facharzt erreichen kannst. Einkaufsmöglichkeiten sind durch Supermärkte wie den Edeka in der Nachbargemeinde gut vertreten, die für frische Lebensmittel und eine breite Auswahl an Produkten sorgen. Für Freizeitaktivitäten gibt es in Dreetz und Umgebung zahlreiche Möglichkeiten, angefangen bei Wander- und Radwegen bis hin zu Sportvereinen, die ein abwechslungsreiches Freizeitangebot bieten. Die Anbindung an den öffentlichen Nahverkehr sowie die Autobahn sind ebenfalls gegeben, sodass du schnell in die nächstgelegenen Städte wie Neuruppin oder das größere Potsdam gelangst. Ideal für Pendler und Naturliebhaber - hier vereinen sich Ruhe und die Annehmlichkeiten des städtischen Lebens.
Sonstige Angaben
Das hier angebotene Grundstück ist im obigen Preis eingerechnet, es wird ohne zusätzliche Provision an einen Living Haus-Bauherren bereitgestellt.
Zusätzliche Baunebenkosten müssen noch hinzugerechnet werden, hierüber beraten wir dich gern.
Wir bieten auch interessante Finanzierungsmöglichkeiten inklusive Beantragung aller Fördermittel!
Die Hausabbildungen und die Bilder der Inneneinrichtung zeigen möglicherweise Extras, die nicht im angegebenen Kaufpreis inbegriffen sind.
Gute Beratung ist der Anfang von Allem. Deshalb analysieren wir gemeinsam mit euch eure Vorstellungen, Wünsche und Bedürfnisse und finden so das für Dich und Deine Familie passende Living Haus.
Interessiert? Kontaktiere mich und vereinbare noch heute einen kostenlosen und unverbindlichen Beratungstermin unter +49 0176/21774090
.
Adresse
16845 Dreetz
Interessante Orte
Preis- und Lageinformationen
Preistrend für Bestandsimmobilien in Dreetz