Zum Verkauf steht dieses historisch gewachsene Anwesen in Alleinlage, eingebettet im Außenbereich, mit unverbautem Blick auf den Wendelstein und die umliegenden Berge des Leitzachtals.
Erstmals in der Mitte des 14. Jahrhunderts erwähnt, ist das Anwesen seit 1635 in Familienbesitz und zeugt von einer bewegten, regional verwurzelten Geschichte. Ursprünglich als kleine Landwirtschaft genutzt und später auch als Weberei betrieben. Heute bietet sich für neue Eigentümer die besondere Gelegenheit, ein liebevoll erhaltenes Zuhause voller Geschichte zu übernehmen und mit eigenen Ideen weiterleben zu lassen.
Traditionsreiches Anwesen in Alleinlage mit ca. 3,5 Hektar Grund und herrlichem Bergblick
83730 Fischbachau
Die vollständige Adresse der Immobilie erhalten Sie vom Anbieter.
Auf Karte anzeigen
Die vollständige Adresse der Immobilie erhalten Sie vom Anbieter.
Finanzierungszertifikat
In nur zwei Minuten zu Ihrem persönlichen Finanzierungszertifkat.
Infos
| Haustyp | Mehrfamilienhaus |
|---|---|
| Etagenzahl | 2 |
| Wohnfläche ca. | 510 m2 |
| Grundstücksfläche | 34.500 m2 |
| Bezugsfrei ab | nach Vereinbarung |
| Zimmer | 16 |
| Garage/Stellplatz | Garage |
| Anzahl Garage/Stellplatz | 4 |
Kosten
| Kaufpreis |
4.150.000 € |
|---|---|
| Provision |
3,57 % inkl. der gesetzl. MwSt. bezogen auf den Kaufpreis |
Finanzierungsrechner:
Kaufpreis:
600.000 €
Eigenkapital:
600.000 €
Monatliche Rate
0 €
Effektiver Jahreszins
0 %
Sollzinsbindung
10 Jahre
Bausubstanz & Energieausweis
| Baujahr | 1700 |
|---|---|
| Heizungsart | Holz-Pelletheizung |
| Wesentliche Energieträger | Pelletheizung |
| Energieausweis | liegt vor |
| Energieausweistyp | Verbrauchsausweis |
| Energieverbrauchskennwert | 145,1 kWh/(m²*a) |
| Energieeffizienzklasse | E |
145,1
kWh/(m²*a)
Energieeffizienzklasse E
- A+
- A
- B
- C
- D
- E
- F
- G
- H
- 0
- 25
- 50
- 75
- 100
- 125
- 150
- 175
- 200
- 225
- >250
Beschreibung des Objekts
Ausstattung
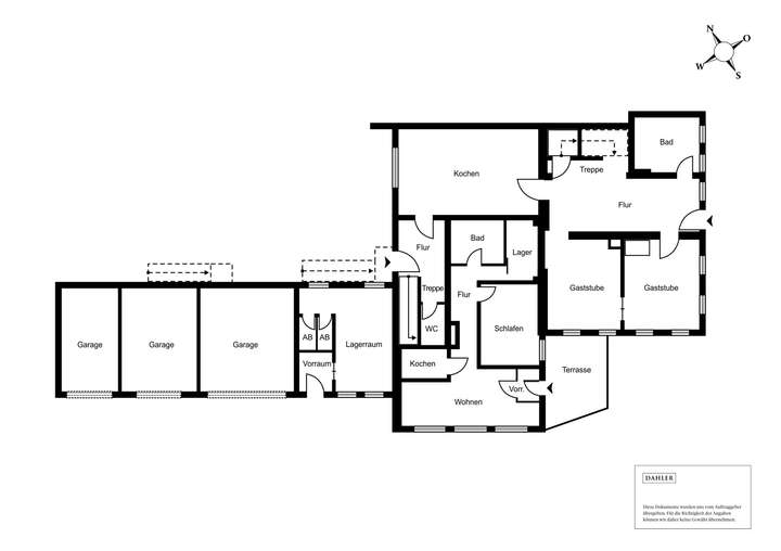
* Erdgeschoss ca. 80 m²: stillgelegtes Gewerbe
* weiß gefliestes Tageslicht Bad im Erdgeschoss
* helles Treppenhaus mit Wandschmuck aus der Jagdtradition und Einbauschränken
* Obergeschoss ca. 79 m²: geräumige Diele, Räume teilweise mit Holzdecken, innenliegendes gefliestes Bad
* Balkon mit Blick auf die Berge
* Dachgeschoss: teilausgebaut mit Balkon
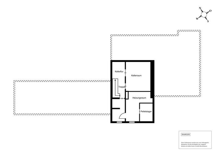
* Untergeschoss ca. 74 m², Heizung, Pelletlager und Lagerräume
* vier vermietete Wohnungen mit ca. 50-100 m² Wohnfläche
* Werkstatt, Garage und Lagerräume
* privates Zufahrtsstraße
* eigene Wasserquelle mit Sickergrube und Kleinkläranlage
* kein Denkmalschutz
* Garagenhaus mit zwei Garagen und weiteren Lagermöglichkeiten
Lage
Das Anwesen befindet sich auf einer kleinen Anhöhe, eingebettet am unteren Hang des nördlich verlaufenden Bergrückens, in sonniger Alleinlage. Im Norden grenzt ein Waldbestand an, während sich südlich, östlich und westlich weitläufige Wiesen und Felder erstrecken – ein naturnahes Umfeld mit Blick auf den Wendelstein.
Die tägliche Versorgung ist gut erreichbar: In der Nähe finden sich Nahversorger, Metzgerei und Bäckerei, die bequem in wenigen Minuten erreichbar sind.
In unmittelbarer Nähe eröffnen sich vielfältige Freizeitmöglichkeiten: Wander- und Spazierwege verlaufen direkt vor der Haustür, während die umliegenden Wälder und Wiesen zu Erkundungstouren, Radtouren oder sportlichen Aktivitäten im Freien einladen. Auch Wintersportbegeisterte finden in der näheren Umgebung zahlreiche Angebote für Langlauf, Skifahren und Schneeschuhwanderungen. Die gelungene Verbindung aus ruhiger Natur und abwechslungsreichen Freizeitangeboten macht die Lage besonders attraktiv für Familien und Naturliebhaber.
Sonstige Angaben
Gerne senden wir Ihnen auf Anfrage unser ausführliches Exposé mit weiterführenden Informationen zu. Bitte beachten Sie, dass wir Anfragen ausschließlich mit vollständiger Anschrift und Telefonnummer berücksichtigen können. Die Übermittlung des Exposés erfolgt nach einem persönlichen Telefonat.
Sämtliche Fotografien und grafischen Darstellungen sind urheberrechtlich geschützt und Eigentum von DAHLER Tegernsee / Bad Tölz, Inh. Fine Estate GmbH. Eine Vervielfältigung oder Weitergabe an Dritte ist nicht gestattet.
Alle Angaben basieren auf den Informationen der Eigentümer sowie auf sorgfältiger Recherche, erfolgen jedoch ohne Gewähr. Die Vermarktung dieser Immobilie erfolgt im qualifizierten Alleinauftrag.
Grundriss
Erdgeschoss
>
>
Obergeschoss
>
>
Untergeschoss
>
>
Adresse
83730 Fischbachau
Interessante Orte
Preis- und Lageinformationen
Preistrend für Bestandsimmobilien in Fischbachau