Dieses Wohnhaus befindet sich in ruhiger, ländlicher Umgebung im Ort Berumerfehn, einem idyllischen Teil der Gemeinde Großheide. Der Standort zeichnet sich durch seine entspannte, naturnahe Atmosphäre aus und bietet gleichzeitig eine hervorragende Anbindung an sowohl städtische als auch ländliche Infrastruktur. In wenigen Fahrminuten erreichen Sie den Ortskern von Großheide mit allen Geschäften des täglichen Bedarfs, Ärzten, Apotheken und Restaurants.
Das Wohnhaus teilt sich, wie folgt auf:
Erdgeschoss:
Wohnzimmer
Küche
Esszimmer
Schlafzimmer
Bad/Dusche
sep. WC
HWR
Vorratsraum
Flure
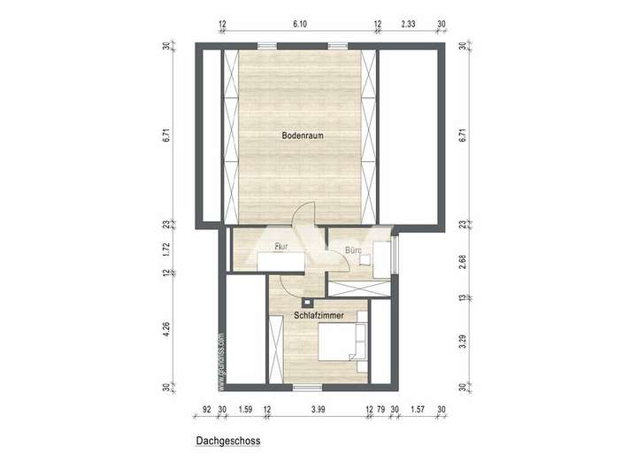
Dachgeschoss:
Schlafzimmer
Büro
Flur
Ausstattung:
Bodenraum
Hochkeller
großer Garten
Garage
Schuppen
Eigentumsgrundstück
die Immobilie verfügt über eine eigene Kläranlage
miet- und pachtfrei
Sehr gepflegtes Wohnhaus mit Nebengebäude in Berumerfehn! Objekt-Nr.: 25-100-S
26532 Großheide
Die vollständige Adresse der Immobilie erhalten Sie vom Anbieter.
Auf Karte anzeigen
Die vollständige Adresse der Immobilie erhalten Sie vom Anbieter.
Finanzierungszertifikat
In nur zwei Minuten zu Ihrem persönlichen Finanzierungszertifkat.
Infos
| Haustyp | Einfamilienhaus |
|---|---|
| Wohnfläche ca. | 110 m2 |
| Nutzfläche | 81 m2 |
| Grundstücksfläche | 1.688 m2 |
| Bezugsfrei ab | nach Vereinbarung! |
| Zimmer | 5 |
| Anzahl Garage/Stellplatz | 2 |
Kosten
| Kaufpreis |
179.500 € |
|---|---|
| Provision |
3,57 % inkl. MwSt |
Finanzierungsrechner:
Kaufpreis:
600.000 €
Eigenkapital:
600.000 €
Monatliche Rate
0 €
Effektiver Jahreszins
0 %
Sollzinsbindung
10 Jahre
Bausubstanz & Energieausweis
| Baujahr | 1958 |
|---|---|
| Wesentliche Energieträger | Gas |
| Energieausweis | liegt vor |
| Energieausweistyp | Bedarfsausweis |
| Energieverbrauchskennwert | 241,4 kWh/(m²*a) |
| Energieeffizienzklasse | G |
241,4
kWh/(m²*a)
Energieeffizienzklasse G
- A+
- A
- B
- C
- D
- E
- F
- G
- H
- 0
- 25
- 50
- 75
- 100
- 125
- 150
- 175
- 200
- 225
- >250
Beschreibung des Objekts
Adresse
26532 Großheide
Interessante Orte
Preis- und Lageinformationen
Preistrend für Bestandsimmobilien in Großheide