Dieses solide und gepflegte Zweifamilienhaus aus dem Jahr 1960, befindet sich in ruhiger und familienfreundlichen Wohnlage von Schenefeld. Es wurde in massiver Bauweise errichtet und ist vollständig unterkellert. Das Gebäude beherbergt drei separate Wohneinheiten mit einer Gesamtwohnfläche von ca. 170,39 m², verteilt auf Erdgeschoss und Obergeschoss, inklusive einer Maisonettewohnung im hinteren Teil des Hauses.
Die Immobilie steht auf einem ca. 1.012 m² großen Grundstück mit großzügigen Gartenflächen, gepflasterten Wegen, mehreren Terrassen sowie einer modernen Metallgarage (Baujahr ca. 2021). Zusätzlich stehen ein Pkw-Stellplatz vor dem Haus sowie ein Holz-Gartenschuppen zur Verfügung.
Das Haus präsentiert sich gepflegt und wurde in den letzten Jahren teils umfangreich renoviert. Die weiße Putzfassade wurde energetisch mit einer Einblasdämmung versehen. Die Beheizung erfolgt über eine zentrale Gasheizung. Zwei der drei Wohneinheiten wurden vollständig modernisiert und befinden sich in sehr gutem Zustand. Die Maisonettewohnung bietet weiteres Entwicklungspotenzial, da das Erdgeschoss derzeit im Rohbauzustand ist und individuell nach eigenen Vorstellungen fertiggestellt werden kann.
Die Grundrissgestaltung ist funktional und vielseitig nutzbar – ideal für Investoren, Mehrgenerationenwohnen oder als Kombination aus Eigennutzung und Vermietung.
Grundstückserwerb: Investition in Volleigentum und maximale Sicherheit
Das Grundstück ist derzeit mit einem Erbbaurecht belastet, das in 32 Jahren ausläuft. Diese zeitliche Begrenzung und die laufende Zahlung des Erbbauzinses (Erbpacht) stellen für langfristige Eigentümer und Investoren einen potenziellen Unsicherheitsfaktor dar.
Ihr Angebot zur Ablösung des Erbbaurechts:
Sie haben die exklusive Möglichkeit, das Grundstück zum Kaufpreis von 250.000 Euro zu erwerben.
Der entscheidende finanzielle und rechtliche Vorteil:
Mit dem Kauf wandeln Sie das Erbbaurecht in vollständiges, unbelastetes Eigentum (Grund und Boden) um.
Beseitigung der Unsicherheit: Die Herausforderung einer notwendigen Verlängerung oder des Auslaufens nach 32 Jahren entfällt.
Wegfall der Erbpacht: Die laufenden Kosten für die Grundstücksnutzung entfallen dauerhaft.
Wichtiger Orientierungswert: Der Bodenrichtwert liegt in dieser Lage bei 600 Euro/m². Dieser Wert dient als wichtiger Anhaltspunkt für den reinen Bodenwert und unterstreicht die Attraktivität Ihrer Investition in die Umwandlung zu Volleigentum.
Sichern Sie sich jetzt die volle Verfügungsgewalt, höchste Investitionssicherheit und die Wertsteigerung, die nur unbelastetes Volleigentum bietet.
KAUFPREISREDUZIERUNG! Vielseitiges Zweifamilienhaus mit drei Wohneinheiten und weitläufigem Garten
22869 Schenefeld
Die vollständige Adresse der Immobilie erhalten Sie vom Anbieter.
Auf Karte anzeigen
Die vollständige Adresse der Immobilie erhalten Sie vom Anbieter.
Finanzierungszertifikat
In nur zwei Minuten zu Ihrem persönlichen Finanzierungszertifkat.
Infos
| Haustyp | Sonstige |
|---|---|
| Etagenzahl | 2 |
| Wohnfläche ca. | 170 m2 |
| Nutzfläche | 70 m2 |
| Grundstücksfläche | 1.012 m2 |
| Bezugsfrei ab | sofort |
| Zimmer | 10 |
| Schlafzimmer | 9 |
| Badezimmer | 3 |
| Anzahl Garage/Stellplatz | 3 |
Kosten
| Kaufpreis |
460.000 € |
|---|---|
| Provision |
3,57 % (inklusive Mehrwertsteuer) vom Kaufpreis Im Erfolgsfall ist vom Käufer an die Maklerfirma BLASCH IMMOBILIEN eine Maklerprovision/Courtage zu zahlen. Die Provision/Courtage beträgt 3,57 % inklusive der gesetzlichen Mehrwertsteuer vom Kaufvertragsgegenstandswert. Die Provision/Courtage ist beim Abschluss eines notariellen Kaufvertrags fällig und verdient. (Hinweis: Der Verkäufer zahlt an BLASCH IMMOBILIEN eine Provision in gleicher Höhe) |
Finanzierungsrechner:
Kaufpreis:
600.000 €
Eigenkapital:
600.000 €
Monatliche Rate
0 €
Effektiver Jahreszins
0 %
Sollzinsbindung
10 Jahre
Bausubstanz & Energieausweis
| Baujahr | 1960 |
|---|---|
| Letzte Sanierung | 2020 |
| Qualität der Austattung | Normal |
| Heizungsart | Zentralheizung |
| Wesentliche Energieträger | Gas |
| Energieausweis | liegt vor |
| Energieausweistyp | Bedarfsausweis |
| Energieverbrauchskennwert | 230,0 kWh/(m²*a) |
| Energieeffizienzklasse | G |
230,0
kWh/(m²*a)
Energieeffizienzklasse G
- A+
- A
- B
- C
- D
- E
- F
- G
- H
- 0
- 25
- 50
- 75
- 100
- 125
- 150
- 175
- 200
- 225
- >250
Beschreibung des Objekts
Ausstattung
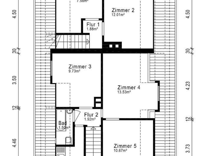
Die vermietete Erdgeschosswohnung zur Straßenseite verfügt über eine Wohnfläche von ca. 56,46 Quadratmetern und wurde im Jahr 2014 vollständig renoviert. Sie ist mit neuen Fenstern, PVC-Bodenbelägen, teilweise erneuerter Elektrik, einer modernen Küche, neuen Wasserleitungen und einer eigenen Terrasse ausgestattet. Die vermietete Obergeschosswohnung auf der Straßenseite bietet ca. 41,5 Quadratmeter Wohnfläche, ist ebenfalls vollständig modernisiert und verfügt über ein neues Bad, eine neue Küche, neue Bodenbeläge, teilweise neue Elektrik sowie neue Wasserleitungen. Die dritte Wohnung, eine Maisonette im hinteren Bereich des Hauses, erstreckt sich über ca. 72 Quadratmeter. Während das Obergeschoss bereits renoviert wurde, befindet sich das Erdgeschoss aktuell im teilrenovierten und bietet somit Raum für individuelle Gestaltung. Ausgestattet ist diese Einheit mit einer neuen Treppe, teilweise erneuerten Fenstern und einer eigenen Terrasse. Diese Wohneinheit wird frei von Mietverhältnissen übergeben.
Ergänzend zu den Wohneinheiten bietet das Gebäude einen voll unterkellerten Bereich mit kleinem Bad, Waschraum und mehreren Abstellräumen. Eine moderne Metallgarage aus dem Baujahr 2021 mit gepflastertem Boden, ein Pkw-Stellplatz vor dem Haus, ein Holz-Gartenschuppen sowie gepflegte Außenanlagen mit gepflasterten Flächen und Grünbereichen runden das Angebot ab.
Besonders hervorzuheben ist die Grundstückssituation: Das Haus steht auf einem Erbpachtgrundstück mit einer Restlaufzeit von derzeit 32 Jahren. Für Käufer besteht jedoch die Möglichkeit, das Grundstück zusätzlich käuflich zu erwerben, um sich langfristig vollständiges Eigentum zu sichern – ein klarer Vorteil für zukunftsorientierte Investoren und Eigennutzer.
Lage
Schenefeld, eine charmante Gemeinde im Kreis Pinneberg, bietet eine ideale Wohnlage für Familien und Berufstätige, die die Nähe zu Hamburg schätzen. Diese Immobilie befindet sich in einer ruhigen Wohngegend, die dennoch eine hervorragende Anbindung an die Stadt Hamburg gewährleistet.
Innerhalb weniger Minuten erreichen Sie die A23 und die S-Bahn-Station, die eine direkte Verbindung in die Hamburger Innenstadt bietet. Die exzellente Infrastruktur von Schenefeld umfasst eine Vielzahl von Einkaufsmöglichkeiten, Restaurants und Cafés, die für jeden Geschmack etwas bieten.
Darüber hinaus profitieren Sie von ausgezeichneten Bildungseinrichtungen, darunter Kindergärten, Grundschulen und weiterführende Schulen, die sich alle in unmittelbarer Nähe befinden. Die grünen Parks und Naherholungsgebiete laden zu Spaziergängen und Outdoor-Aktivitäten ein, während der nahegelegene Eidelstedter See ideale Bedingungen für Wassersport und Entspannung bietet.
Schenefeld zeichnet sich durch seine hohe Lebensqualität aus, die durch eine sichere Wohnumgebung und eine freundliche Nachbarschaft ergänzt wird. Hier genießen Sie das Beste aus beiden Welten: die Ruhe und Idylle einer Kleinstadt kombiniert mit der Nähe zu den Annehmlichkeiten und Möglichkeiten einer Großstadt.
Sonstige Angaben
Datenschutzhinweis: Zum Schutz der Privatsphäre der Bewohner/Mieter wurden die ursprünglichen Fotografien unter Einsatz von KI-Technologie nachbearbeitet. Persönliche Gegenstände und identifizierende Merkmale wurden entfernt oder unkenntlich gemacht. Die entsprechenden Bilder sind entsprechend gekennzeichnet.
Eine Innenbesichtigung ist nur nach vorheriger Terminvereinbarung mit unserem Büro möglich (Tel.-Nr. 0179 399 64 97). Bei einer Außenbesichtigung bitten wir Sie, die nötige Diskretion walten zu lassen.
Grundriss
Kellergeschoss
>
>
Dachgeschoss
>
>
Erdgeschoss
>
>
Adresse
22869 Schenefeld
Interessante Orte
Preis- und Lageinformationen
Preistrend für Bestandsimmobilien in Schenefeld