Willkommen in Ihrem neuen Einfamilienhaus, das nach Ihren persönlichen Wünschen und Vorstellungen projektiert wird. Auf einem großzügigen Grundstück von 880 m² erwartet Sie ein modernes Zuhause mit 123,32 m² Wohnfläche, verteilt auf zwei Etagen. Das Haus bietet Ihnen vier Zimmer, darunter drei einladende Schlafzimmer, ein stilvolles Badezimmer mit Dusche, Wanne und Fenster, sowie ein zusätzliches Gäste-WC. Hier können Sie Familienmomente genießen und Ihre Wohnträume verwirklichen.
Das durchdachte Baukonzept gewährleistet, dass Sie bei der Gestaltung Ihres neuen Heims alle Freiheiten haben. Die Verwendung von hochwertigen Materialien und eine durchdachte Raumaufteilung schaffen ein wohnliches Ambiente, das sowohl Funktionalität als auch Ästhetik vereint.
Lassen Sie sich von den vielen Möglichkeiten inspirieren und gestalten Sie Ihr Zuhause nach Ihrem persönlichen Stil!
Ihr Traumhaus in Fischbach bei Dahn - Individuell, modern und nachhaltig!
66996 Fischbach bei Dahn
Die vollständige Adresse der Immobilie erhalten Sie vom Anbieter.
Auf Karte anzeigen
Die vollständige Adresse der Immobilie erhalten Sie vom Anbieter.
Finanzierungszertifikat
In nur zwei Minuten zu Ihrem persönlichen Finanzierungszertifkat.
Infos
| Haustyp | Einfamilienhaus |
|---|---|
| Etagenzahl | 2 |
| Wohnfläche ca. | 123 m2 |
| Grundstücksfläche | 880 m2 |
| Zimmer | 4 |
| Schlafzimmer | 3 |
| Badezimmer | 1 |
| Garage/Stellplatz | Garage |
| Anzahl Garage/Stellplatz | 1 |
Kosten
| Kaufpreis |
309.889 € |
|---|---|
| Preis für Garage/Stellplatz | 8.000 € |
Finanzierungsrechner:
Kaufpreis:
600.000 €
Eigenkapital:
600.000 €
Monatliche Rate
0 €
Effektiver Jahreszins
0 %
Sollzinsbindung
10 Jahre
Bausubstanz & Energieausweis
| Baujahr | unbekannt |
|---|---|
| Bauphase | Haus in Planung (projektiert) |
| Qualität der Austattung | Gehoben |
| Heizungsart | Wärmepumpe |
Beschreibung des Objekts
Ausstattung
Die gehobene Ausstattung des Hauses lässt keine Wünsche offen. Die Bodenbeläge können individuell gewählt werden: Dielen, Fertigparkett, Fliesen, Granit, Laminat, Marmor oder PVC - all diese Materialien bieten nicht nur ein ansprechendes Design, sondern auch hervorragende Laufeigenschaften und Pflegeleichtigkeit.
Die Wärmepumpe sorgt für eine effiziente Heiz- und Warmwasserbereitung und bietet Ihnen somit eine kostengünstige und umweltschonende Befeuerungsart. Der Neubaustandard KFW40 oder KFW55 garantiert Ihnen zudem, dass Ihr neues Zuhause energetisch auf dem neuesten Stand ist.
Lage
Das Haus ist auf einem realen Baugrundstück geplant oder auf einem Grundstück in einer Planungsphase. Das Grundstück erwerben Sie direkt vom Eigentümer.
Bitte haben Sie Verständnis, dass wir ohne ein persönliches Gespräch keine Grundstücksdaten weiterleiten.
Gern sind wir bei der Wahl Ihres Traumgrundstückes behilflich! Natürlich können wir ihren Haustraum auch auf einem anderen Grundstück realisieren, lassen Sie sich dazu in einem unverbindlichen Gespräch zu Ihrem Bauvorhaben beraten.
Wir freuen uns auf Sie!
Stefan Wirth
Verkaufsberatung Einfamilienhaus (IHK zertifiziert)
Am Rangierbahnhof 6
67661 Kaiserslautern
Mobil 0174 2463732
Mail: stefan.wirth@allkauf.de
Sonstige Angaben
allkauf heißt: Maximale Sicherheit, kurze Lieferzeiten, garantierte Fertigstellung. Sie profitieren von kurzen Lieferzeiten, einer Liefergarantie sowie einer Festpreisgarantie, die Ihnen Planungssicherheit bei Ihrem Hausbau bietet. Zu allen Häusern gehört:
- Energieeffizienzwand
- Echtholztreppe
- Luft-Wasser-Wärmepumpe
- Fußbodenheizung
- Be- und Entlüftungsanlage
- 3-fach verglaste Fenster inklusive Rollläden mit Aluminiumlamellen
- Lichte Raumhöhe 2,75 m
+ inkl. erhöhten Fenstern und Türen
- TOXPROOF Gütesiegel - schadstoffgeprüfter Materialien
- Just-in-Time-Lieferungen
- Bemustern im eigenen Bemusterungszentrum mit Markenprodukten
Vereinbaren Sie noch heute Ihren Termin zur Planung Ihres allkauf Traumhauses!
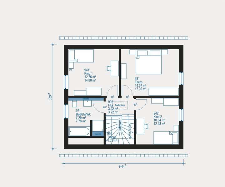
Grundriss
Grundriss OG
>
>
Grundriss EG
>
>
Adresse
66996 Fischbach bei Dahn
Interessante Orte
Preis- und Lageinformationen
Preistrend für Bestandsimmobilien in Fischbach bei Dahn