Willkommen in Ribnitz-Damgarten – einer traditionsreichen Bernsteinstadt zwischen Rostock und Stralsund, welche durch ihre Nähe zu den Ostseestränden und zum Bodden ein ideales Umfeld für Wohnen und Erholung bietet. In ruhiger Stadtrandlage präsentieren wir Ihnen dieses gepflegte Einfamilienhaus aus dem Jahr 1983, das auf einem großzügigen Grundstück von rund 868 m² viel Platz für Familie, Freizeit und individuelle Wohnideen bereithält.
Mit einer Wohnfläche von ca. 145 m² überzeugt die Immobilie durch eine durchdachte Raumaufteilung und helle, einladende Wohnbereiche. Das großzügige Wohnzimmer mit seinen großen Fensterflächen schafft eine angenehme Wohlfühlatmosphäre und bietet direkten Zugang zum sonnigen Südwest-Balkon – perfekt, um den Tag entspannt ausklingen zu lassen. Das Badezimmer im Erdgeschoss wurde bereits modernisiert und bietet mit Wanne, Duschabtrennung und raumhoher Verfliesung angenehmen Komfort.
Die Immobilie wurde im Laufe der Jahre kontinuierlich gepflegt und teilweise modernisiert. Zu den durchgeführten Maßnahmen zählen unter anderem der Einbau neuer Fenster mit Rollläden, die Umstellung auf Gas mit neuer Gastherme, Bodenbeläge, Badrenovierungen sowie eine Dacheindeckung mit glasierten Dachziegeln im Jahr 2007. Damit bietet es eine solide Basis, auf der neue Eigentümer ihre eigenen Ideen und Modernisierungsvorstellungen verwirklichen können. Investitionen sollten für Fassadenanstrich, Kücheneinbauten, Elektrik sowie zukünftig sicherlich einer neuen Heizung mit ca. 40.000 € vorbehalten werden.
Ein besonderes Highlight ist die Einliegerwohnung im Untergeschoss – ideal als separates Gästeappartement, Büro oder zur Vermietung als Ferienwohnung.
Ergänzt wird das Angebot durch eine beheizbare Tiefgarage, viel weiteren Stauraum im Untergeschoss, einem Gartenhäuschen, einem Gewächshaus sowie ein zusätzlich angrenzendes Pachtgrundstück von etwa 274 m², das Ihnen weitere Gestaltungsmöglichkeiten eröffnet. Der Käufer kann problemlos den Pachtvertrag neu schließen und somit für wenig Geld auf dieses Land zugreifen. Eine Fertigteilgarage ergänzt das attraktive Angebot.
Das Wohnhaus verfügt über einen Kabelanschluss, und der Glasfaseranschluss wurde bereits beantragt – beste Voraussetzungen für modernes Wohnen und Arbeiten im Homeoffice.
Die ruhige Wohnlage mit guter Anbindung an Einkaufsmöglichkeiten, Schulen und öffentliche Verkehrsmittel sowie die nur rund 15 Autominuten entfernten Ostseestrände von Dierhagen und Graal-Müritz machen dieses Haus zu einer besonders attraktiven Option – sowohl für dauerhaftes Wohnen als auch als Feriendomizil.
Im Rahmen einer gemeinsamen Besichtigung stellen wir Ihnen diese attraktive Immobilie gern näher vor und bieten Ihnen im Vorfeld die Möglichkeit der virtuellen Besichtigung des Hauses.
Sollten Sie eine eigene Immobilie verkaufen wollen, helfen wir Ihnen gern bei der Einwertung und Vermarktung zum attraktiven Kaufpreis.
Wir freuen uns auf Ihr Interesse.
Zwischen Stadt und Strand - Ihr neues Zuhause in Ribnitz-Damgarten!
18311 Ribnitz-Damgarten
Die vollständige Adresse der Immobilie erhalten Sie vom Anbieter.
Auf Karte anzeigen
Die vollständige Adresse der Immobilie erhalten Sie vom Anbieter.
Finanzierungszertifikat
In nur zwei Minuten zu Ihrem persönlichen Finanzierungszertifkat.
Infos
| Haustyp | Einfamilienhaus |
|---|---|
| Etagenzahl | 1 |
| Wohnfläche ca. | 144 m2 |
| Nutzfläche | 56,84 m2 |
| Grundstücksfläche | 868 m2 |
| Bezugsfrei ab | Kaufpreiszahlung |
| Zimmer | 4 |
| Schlafzimmer | 2 |
| Badezimmer | 2 |
| Garage/Stellplatz | Garage |
| Anzahl Garage/Stellplatz | 2 |
Kosten
| Kaufpreis |
275.000 € |
|---|---|
| Provision |
3,57 % inkl. gesetzl. MwSt. vom not. Kaufpreis |
Finanzierungsrechner:
Kaufpreis:
600.000 €
Eigenkapital:
600.000 €
Monatliche Rate
0 €
Effektiver Jahreszins
0 %
Sollzinsbindung
10 Jahre
Bausubstanz & Energieausweis
| Baujahr | 1983 |
|---|---|
| Heizungsart | Zentralheizung |
| Wesentliche Energieträger | Gas |
| Energieausweis | liegt vor |
| Energieausweistyp | Verbrauchsausweis |
| Energieverbrauchskennwert | 145,9 kWh/(m²*a) |
| Energieeffizienzklasse | E |
145,9
kWh/(m²*a)
Energieeffizienzklasse E
- A+
- A
- B
- C
- D
- E
- F
- G
- H
- 0
- 25
- 50
- 75
- 100
- 125
- 150
- 175
- 200
- 225
- >250
Beschreibung des Objekts
Ausstattung
Die Immobilie gliedert sich wie folgt:
Erdgeschoss (insgesamt ca. 99,85 m²):
ca. 33,39 m² Wohnen
ca. 16,48 m² Schlafen
ca. 14,84 m² Flur
ca. 14,18 m² Kind
ca. 11,71 m² Küche
ca. 05,25 m² Bad
ca. 04,00 m² Windfang
ca. 02,63 m² Balkon (1/4 der Grundfläche von ca. 10,52 m²)
zzgl. Gartenhaus mit Abstellfläche
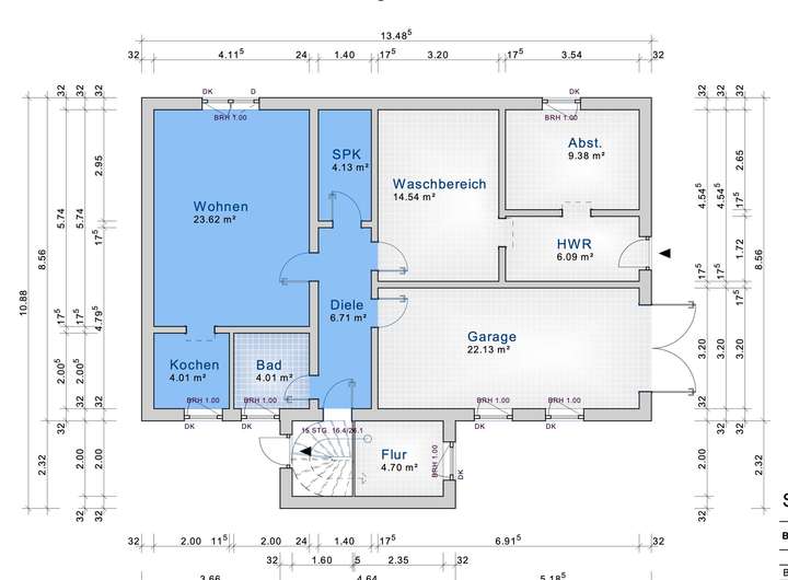
Untergeschoss - Einliegerwohnung - Wohnfläche (insgesamt ca. 42,48 m²):
ca. 23,62 m² Wohnen / Schlafen
ca. 06,71 m² Diele
ca. 04,13 m² Abstellraum
ca. 04,01 m² Bad
ca. 04,01 m² Kochen
Untergeschoss - Nutzfläche (insgesamt ca. 56,84 m²):
ca. 22,13 m² Garage
ca. 14,54 m² Waschküche
ca. 09,38 m² Abstellraum
ca. 06,09 m² Haustechnik / Hauswirtschaftsraum
ca. 04,70 m² Flur
Lage
Die Immobilie befindet sich in einer ruhigen und gepflegten Wohnlage am östlichen Stadtrand von Ribnitz-Damgarten, einer charmanten Bernsteinstadt zwischen Rostock und Stralsund. Beliebte Urlaubsregion mit Nähe zu den Ostseestränden. Die Umgebung ist geprägt von Einfamilienhäusern, viel Grün und einer angenehmen Nachbarschaftsatmosphäre – ideal für Familien, Paare oder Ruhesuchende.
Dank der Nähe zum Bodden und zur Ostseeküste bietet der Standort ein naturnahes Wohnumfeld mit hohem Freizeitwert. Spaziergänge, Radtouren oder Wassersportaktivitäten sind in wenigen Minuten erreichbar. Auch der Ribnitzer Stadtforst sowie das Naturschutzgebiet Ribnitzer Großes Moor laden zu Erholung und Naturerlebnissen ein.
Die Infrastruktur ist hervorragend ausgebaut: Einkaufsmöglichkeiten für den täglichen Bedarf, Ärzte, Apotheken, Banken sowie gastronomische Angebote befinden sich in kurzer Entfernung. Das Stadtzentrum von Ribnitz-Damgarten ist schnell erreichbar und bietet eine Vielzahl an weiteren Geschäften, Dienstleistern und kulturellen Einrichtungen.
Für Familien ist die Lage besonders attraktiv: Kindergärten, Grund- und weiterführende Schulen liegen in gut erreichbarer Nähe. Zudem bestehen sehr gute Verkehrsanbindungen – sowohl mit dem Auto über die B105 und die A20, als auch mit öffentlichen Verkehrsmitteln durch Bus- und Bahnverbindungen Richtung Rostock, Stralsund und Barth.
Sonstige Angaben
Die Übernahme / Übergabe erfolgt im Leerstand nach Kauf und Vereinbarung.
Besichtigungen erfolgen ausschließlich nach terminlicher Absprache mit unserem Hause.
Die Angaben zum Energieverbrauch beruhen auf Grundlage des Energieausweises.
Das Objekt wird frei von Lasten in Abt. III des Grundbuches übergeben.
Fordern Sie uns! Sie suchen ein Objekt, das Ihren persönlichen Vorstellungen entspricht? Kein Problem! Geben Sie uns einfach Ihre ganz individuellen Vorstellungen auf. Selbstverständlich kostenfrei für Sie.
Als überregional tätiges Unternehmen in Schleswig-Holstein und Mecklenburg können wir Ihnen ganz bestimmt weiterhelfen.
Grundriss
Grundriss
>
>
Grundriss
>
>
Adresse
18311 Ribnitz-Damgarten
Interessante Orte
Preis- und Lageinformationen
Preistrend für Bestandsimmobilien in Ribnitz-Damgarten