Hinweis:
Der Eigentümer dieser Immobilie ist kürzlich verstorben. Das Haus ist derzeit noch nicht geräumt. Aus Rücksicht auf die Privatsphäre der Angehörigen können derzeit keine Innenaufnahmen veröffentlicht werden, da sich noch persönliche Gegenstände im Haus befinden.
Die vollständigen Objektunterlagen, die genaue Objektadresse sowie der Zugang zum 360 Grad Rundgang werden ausschließlich nach Bestätigung des Maklervertrages freigeschaltet. Sie erhalten dazu zwei separate E-Mails. Bitte befolgen Sie die Hinweise in den E-Mails vollständig , damit wir Ihnen das Exposé vollständig freischalten können. Vielen Dank!
Dieses gepflegte Einfamilienhaus befindet sich in einer der begehrtesten Wohnlagen Rödermarks - im ruhigen, grünen und familienfreundlichen Wohngebiet Breidert von Ober-Roden. Das freistehende Haus steht auf einem großzügigen, ca. 647 m² großen Grundstück mit idealer Süd-/ Südwest-Ausrichtung. Mit einer Wohnfläche von rund 100 m² bietet es viel Raum für individuelle Wohnideen.
Der klassische Grundriss überzeugt durch klare Aufteilung: ein helles Wohnzimmer mit Blick in den Garten, angrenzender Essbereich, Küche, Eltern-und Kinderzimmer, 2 Bäder und 1 separates Gäste-WC.
Der weitläufige Außenbereich ist das Herzstück der Immobilie: eine große Rasenfläche mit viel Platz - hier genießen Sie Sonne bis in die Abendstunden. Eine Garage sowie ein PKW Stellplatz vor der Garage komplettieren das Angebot.
Das Haus wurde in solider Massivbauweise errichtet. Je nach Wunsch lässt sich die Immobilie modernisieren und an aktuelle Wohnbedürfnisse anpassen - eine hervorragende Basis für Familien, die ihren Traum vom Eigenheim verwirklichen möchten.
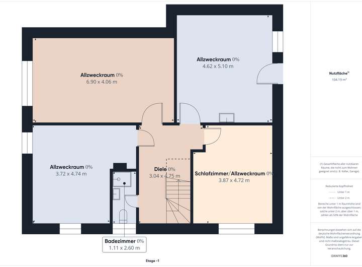
Das großzügige Dachgeschoss mit einer Grundfläche von 11,60 x 10,11 m ist ausbaufähig und ermöglicht eine Erweiterung um mehrere zusätzliche Zimmer, ein Studio, Büro oder Hobbybereich. Somit bietet die Immobilie beste Voraussetzungen, sich langfristig an wachsende Wohnbedürfnisse anzupassen.
Besonders praktisch: Im Untergeschoss befinden sich zusätzlich ein wohnlich ausgebautes Schlafzimmer sowie ein Bad mit Dusche und WC - ideal z.B. für Gäste, Jugendliche oder als separates Homeoffice.
Fazit:
Diese Immobilie vereint eine hervorragende Lage, solide Bausubstanz und vielfältige Nutzungsmöglichkeiten - ideal für Familien, die Wert auf ruhiges Wohnen in gefragter Umgebung legen. Hinweis: Der Angebotspreis stellt eine unverbindliche Preisvorstellung des Eigentümers dar. Änderungen bleiben vorbehalten.
🏡*Familienidylle im beliebten Ober-Roden Breidert - Einfamilienhaus mit großem Garten*
63322 Rödermark
Die vollständige Adresse der Immobilie erhalten Sie vom Anbieter.
Auf Karte anzeigen
Die vollständige Adresse der Immobilie erhalten Sie vom Anbieter.
Finanzierungszertifikat
In nur zwei Minuten zu Ihrem persönlichen Finanzierungszertifkat.
Infos
| Haustyp | Einfamilienhaus |
|---|---|
| Wohnfläche ca. | 100 m2 |
| Grundstücksfläche | 647 m2 |
| Bezugsfrei ab | 02.02.2026 |
| Zimmer | 3 |
Kosten
| Kaufpreis |
525.000 € |
|---|---|
| Provision |
3,57 % inkl. ges. MwSt. |
Finanzierungsrechner:
Kaufpreis:
600.000 €
Eigenkapital:
600.000 €
Monatliche Rate
0 €
Effektiver Jahreszins
0 %
Sollzinsbindung
10 Jahre
Bausubstanz & Energieausweis
| Baujahr | 1978 |
|---|---|
| Bauphase | Haus fertig gestellt |
| Objektzustand | Nach Vereinbarung |
| Heizungsart | Zentralheizung |
| Wesentliche Energieträger | Gas |
| Energieausweis | liegt vor |
| Energieausweistyp | Verbrauchsausweis |
| Energieverbrauchskennwert | 216,2 kWh/(m²*a) |
| Energieeffizienzklasse | G |
216,2
kWh/(m²*a)
Energieeffizienzklasse G
- A+
- A
- B
- C
- D
- E
- F
- G
- H
- 0
- 25
- 50
- 75
- 100
- 125
- 150
- 175
- 200
- 225
- >250
Beschreibung des Objekts
Ausstattung
Individuelle Ausstattungsmerkmale:
- Garage
- gute Infrastruktur
- Parkettboden
Lage
🏡 Lagebeschreibung – Rödermark / Ober-Roden – Wohngebiet Breidert
Das Objekt befindet sich in einer der begehrtesten Wohnlagen Rödermarks, im ruhigen und familienfreundlichen Wohngebiet Breidert des Ortsteils Ober-Roden. Die Umgebung ist geprägt von gepflegten Einfamilienhäusern, begrünten Straßen und einer angenehmen Nachbarschaftsatmosphäre. Dank der verkehrsberuhigten Lage genießen Sie hier eine hohe Wohn- und Lebensqualität, ohne auf städtische Infrastruktur verzichten zu müssen.
In unmittelbarer Nähe befinden sich mehrere Kindertagesstätten (z. B. die Kita Breidertweg und der Kindergarten St. Nazarius) sowie die Travis-Grundschule in Ober-Roden. Weiterführende Schulen wie die Oswald-von-Nell-Breuning-Schule (Gesamtschule mit gymnasialer Oberstufe) sind ebenfalls schnell erreichbar. Damit bietet die Lage ideale Bedingungen für Familien mit Kindern.
Für den täglichen Bedarf stehen im Breidert und im nahegelegenen Ortskern von Ober-Roden zahlreiche Einkaufsmöglichkeiten zur Verfügung – darunter Supermärkte, Bäckereien, Apotheken, Banken, Restaurants und weitere Dienstleister. Das nahe Breidert-Zentrum bietet zudem kleine Fachgeschäfte und Gastronomie, die bequem zu Fuß erreichbar sind.
Die Verkehrsanbindung ist hervorragend: Der S-Bahnhof Ober-Roden (Linie S1) ist nur wenige Minuten entfernt und bietet eine direkte Verbindung nach Frankfurt am Main, Offenbach und Wiesbaden. Über die Bundesstraßen B45 und B486 erreicht man in kurzer Zeit die Autobahnen A3 und A661 sowie die umliegenden Städte Darmstadt, Dieburg und Hanau.
Zahlreiche Grünflächen, Spazierwege und Sportmöglichkeiten in der Umgebung – darunter der Ober-Röder Wald und die Rodauauen – laden zu Freizeitaktivitäten in der Natur ein. Breidert gilt als besonders lebenswerte und sichere Wohnlage, die sowohl Familien als auch Berufspendler anspricht.
Sonstige Angaben
Die veröffentlichten Grundrisse sind nicht maßstabgerecht und mit Einrichtungsvorschlägen unserer Grafikabteilung versehen. Die Immobilien können anders eingerichtet sein oder sind sogar leer.
Fotoaufnahmen:
Um so viel Rauminhalte wie möglich darstellen zu können, wird teilweise mit Weitwinkelobjektiven gearbeitet und die Visualisierung kann abweichen. Ebenfalls wird teilweise retuschiert um die Privatsphäre von Eigentümern oder Mietern zu wahren.
Sie wollen selbst eine Immobilie verkaufen oder vermieten? Wir ermitteln den Wert seriös und marktgerecht und optimieren die Vermittlungschancen Ihrer Immobilie, indem wir eine speziell auf Ihr Objekt abgestimmte Vermarktungsidee erstellen. Wir begleiten Sie auf dem Weg zum erfolgreichen Vertragsabschluss und stehen Ihnen auch danach noch gerne zur Verfügung. Nutzen Sie unser überregionales Netzwerk und unseren Kundenstamm von über 12,5 Millionen Postbankkunden und die Kunden der Deutschen Bank für die bestmögliche Vermittlung Ihrer Immobilie! Sprechen Sie uns an – wir freuen uns auf Sie!
Unsere Angaben basieren auf den vom Auftraggeber erteilten Auskünften. Für unrichtige Angaben haften wir nur bei Vorsatz und/oder grober Fahrlässigkeit. Die Weitergabe dieses Angebotes an Dritte ist nur mit unserer ausdrücklichen und schriftlichen Zustimmung zulässig.
Zu allen Fragen der Finanzierung stehen Ihnen unsere Finanzierungspezialisten mit Rat und Tat zur Verfügung.
Rechtlicher Hinweis auf den Urheber des Exposés
Michaela Otto
Selbstständige Immobilienberaterin
Kirchstraße 7 55459 Aspisheim
E-Mail: michaela-gisela.otto@db.com
Telefon: 0170 5494453
Aufsichtsbehörde: Kreis Offenbach
Internet: www.kreis-offenbach.de
Anschrift: Werner-Hilpert-Str. 1, 63128 Diezenbach
Grundriss
Grundriss
>
>
Adresse
63322 Rödermark
Interessante Orte
Preis- und Lageinformationen
Preistrend für Bestandsimmobilien in Rödermark