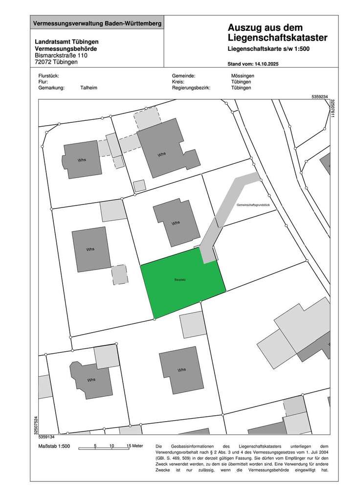
Entdecken Sie dieses attraktive Grundstück in Mössingen-Talheim, ideal für Bauherren, die eine ruhige Wohnlage schätzen. Das Angebot umfasst ein Grundstück von 383 m² sowie einen Anteil von 95 m² an einem Gemeinschaftsgrundstück. Insgesamt bietet dies eine großzügige Fläche für Ihr Traumhaus.
Das Grundstück befindet sich in einer zweiten Reihe, was Ihnen Privatsphäre und eine geschützte Umgebung garantiert.
Hier sind die wichtigsten Details:
- Grundstücksgröße: 383 m²
- Anteil am Gemeinschaftsgrundstück: 95 m²
- Gesamtfläche: 478 m²
- Lage: Mössingen, zweiter Reihe
Dieses Baugrundstück bietet Ihnen die perfekte Gelegenheit, Ihr individuelles Zuhause zu errichten. Nutzen Sie die vorhandene Fläche, um ein Haus nach Ihren Wünschen zu gestalten – ob modern, klassisch oder im Landhausstil.
Die Infrastruktur in Mössingen-Talheim ist hervorragend. Sie profitieren von einer guten Anbindung an das öffentliche Verkehrsnetz, kurzen Wegen zu Einkaufsmöglichkeiten, Schulen und Kindergärten sowie einer Vielzahl von Freizeitmöglichkeiten in der nahen Natur.
Überzeugen Sie sich selbst von diesem tollen Angebot und vereinbaren Sie noch heute einen Besichtigungstermin. Wir freuen uns darauf, Ihnen alle Details persönlich zu präsentieren.
Bauplatz in zweiter Reihe
72116 Mössingen
Die vollständige Adresse der Immobilie erhalten Sie vom Anbieter.
Auf Karte anzeigen
Die vollständige Adresse der Immobilie erhalten Sie vom Anbieter.
Finanzierungszertifikat
In nur zwei Minuten zu Ihrem persönlichen Finanzierungszertifkat.
Infos
| Vermarktungsart | Kaufen |
|---|---|
| Grundstücksfläche | 478 m2 |
| Grundflächenzahl (GRZ) | 0.4 |
| Geschossflächenzahl (GFZ) | 0.8 |
| Verfügbar ab | ab sofort |
Kosten
| Miete pro Jahr |
175.000 € |
|---|---|
| Provision |
3,57% 3,57 %: Bei Zustandekommen eines Kaufvertrags sind 3,57 % Käuferprovision vom Kaufpreis inklusive MwSt., an die Fa. Sebastian Mayer Immobilien, Mühlenweg 9, in 72379 Hechingen zu entrichten. |
Finanzierungsrechner:
Kaufpreis:
600.000 €
Eigenkapital:
600.000 €
Monatliche Rate
0 €
Effektiver Jahreszins
0 %
Sollzinsbindung
10 Jahre
Beschreibung des Objekts
Grundriss
Lageplan
>
>