++ Stilvoller Bungalow mit durchdachter Raumaufteilung ++
Der im Jahr 2001 errichtete Bungalow überzeugt durch eine moderne Raumgestaltung und kontinuierliche Pflege sowie durchdachte Erweiterungen.
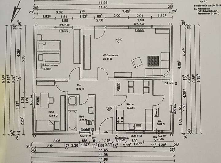
Die Immobilie umfasst 3 gut geschnittene Zimmer und wird über eine zentrale Gasheizung beheizt.
Ergänzend wurde im Jahr 2023 ein Kamin im Wohnzimmer installiert, der für eine angenehme Wohnatmosphäre sorgt.
Im Zuge einer Umgestaltung wurde 2022 die Trennwand zwischen Küche und Wohnzimmer entfernt, wodurch ein großzügiger, offener Wohn- und Essbereich entstand – ideal für modernes Wohnen.
Das Schlafzimmer wurde durch den Einbau einer Leichtbauwand funktional erweitert und verfügt nun über einen begehbaren Kleiderschrank.
Zur Immobilie gehört eine Garage, die nachträglich um einen Anbau ergänzt wurde. Dieser zusätzliche Raum wird derzeit als Werkstatt genutzt und bietet vielseitige Nutzungsmöglichkeiten.
Der Außenbereich präsentiert sich gepflegt und einladend.
Im Jahr 2023 wurde ein halb eingelassener Pool in den Garten integriert, der 2025 um eine neue Terrasse ergänzt wurde.
Eine fest installierte Markise über der Sitzecke sorgt für zuverlässigen Witterungsschutz und rundet das Angebot ab.
Aufteilung:
Küche mit offenem Wohnbereich, Flur, Bad mit Wanne/Fenster und Dusche, Kinderzimmer, Schlafzimmer mit begehbarem Kleiderschrank und eine Abstellkammer
Finanzierungszertifikat
In nur zwei Minuten zu Ihrem persönlichen Finanzierungszertifkat.
Infos
| Haustyp | Bungalow |
|---|---|
| Etagenzahl | 1 |
| Wohnfläche ca. | 110 m2 |
| Nutzfläche | 110 m2 |
| Grundstücksfläche | 587 m2 |
| Bezugsfrei ab | nach Absprache |
| Zimmer | 3 |
| Schlafzimmer | 2 |
| Badezimmer | 1 |
| Garage/Stellplatz | Garage |
| Anzahl Garage/Stellplatz | 1 |
Kosten
| Kaufpreis |
250.000 € |
|---|---|
| Provision |
3,57 % inkl. MwSt. |
Finanzierungsrechner:
Kaufpreis:
600.000 €
Eigenkapital:
600.000 €
Monatliche Rate
0 €
Effektiver Jahreszins
0 %
Sollzinsbindung
10 Jahre
Bausubstanz & Energieausweis
| Baujahr | 2001 |
|---|---|
| Letzte Sanierung | 2023 |
| Bauphase | Haus fertig gestellt |
| Objektzustand | Vollständig Renoviert |
| Qualität der Austattung | Gehoben |
| Heizungsart | Zentralheizung |
| Wesentliche Energieträger | Gas |
| Energieausweis | liegt vor |
| Energieausweistyp | Verbrauchsausweis |
| Energieverbrauchskennwert | 85,6 kWh/(m²*a) |
| Energieeffizienzklasse | C |
85,6
kWh/(m²*a)
Energieeffizienzklasse C
- A+
- A
- B
- C
- D
- E
- F
- G
- H
- 0
- 25
- 50
- 75
- 100
- 125
- 150
- 175
- 200
- 225
- >250
Beschreibung des Objekts
Ausstattung
+ Bad mit Dusche, Wanne und Fenster von 2001 (Dusche 2022 erneuert)
+ Kamin von 2023 (nachträglich eingebaut)
+ Abstellkammer mit WM- Anschluss (vom Wohnzi. /Küche)
+ Gasheizung von VIESSMANN v. 2001
+ Fußbodenheizung im Bad
+ Fußböden: Fliesen (von 2001- im Bad) und Laminat (von 2022 - komplett)
+ Kunststofffenster 2-fach verglast von 2001
+ Jalousien
+ Walmdach von 2001
+ 1 Garage mit Anbau - Werkstatt
+ 1 Carport Stellplatz
+ 2 Außenstellplätze
+ Pool (teilweise eingelassen) von 2023
+ Terrasse von 2025 mit Markise
Lage
Das Objekt befindet sich in Ackendorf Berge. In der Umgebung liegt Gardelegen. Der öffentliche Personennahverkehr ist über die Buslinie 100 angebunden. Fußläufig von der Immobilie entfernt erreichen Sie ein Restaurant. Weiter entfernt finden Sie zudem mehrere Einkaufsmöglichkeiten und Schulen. Eine gute medizinische Versorgung und verschiedene Erholungs- und Sportangebote (u. a. eine Grün- und Parkanlage) erreichen Sie schließlich ebenfalls im größeren Umkreis.
Sonstige Angaben
Wir hoffen mit diesem attraktivem Hausangebot Ihr Interesse geweckt zu haben.
Gerne stehen wir Ihnen für ein persönliches Gespräch zur Beantwortung weiterer Fragen und einen gemeinsamen Besichtigungstermin zur Verfügung.
Telefonisch erreichen Sie uns unter:
Telefon 03907 / 42169 (Bürozentrale)
Mobil 0151 / 58019319
Mail LH@betreuungpur.de
Ihr H. Schwarzlose Immobilien Team
www.schwarzlose-immobilien.de
Adresse
Am Reuthen 50, 39638 Berge
Interessante Orte
Preis- und Lageinformationen
Preistrend für Bestandsimmobilien in Berge
>