Das hier angebotene projektierte Neubauvorhaben besticht durch eine beeindruckende, moderne Architektur und bietet mit einer großzügigen Gesamtfläche von rund 553 m² ein Wohnerlebnis der Extraklasse. Das Haus, das sich in einer leichten Hanglage befinden wird, ist bereits projektiert und final genehmigt, sodass dem baldigen Baubeginn nichts im Wege steht.
Die exklusive, dreistöckige Villa bietet höchsten Wohnkomfort in Aussichtslage. Die Immobilie verfügt über eine offene Wohnetage mit großem Wohn- und Essbereich, eine großzügig geplante Küche, sowie einen Gästebereich und Büro im Erdgeschoss. Das Penthouse ähnliche Obergeschoss bietet Zugang zu einer großzügigen Dachterrasse, während das Untergeschoss zwei Schlafzimmer mit jeweils eigenem Bad und direktem Zugang zur Poolterrasse beherbergt. Ergänzt wird das Angebot durch einen Sport- oder Wellnessbereich, Doppelgarage und umfangreiche Außenanlagen. Ein Zuhause, das luxuriöses Wohnen perfekt mit modernem Design vereint.
Das Grundstück kann ansprechend gestaltet werden und nutzt die leichte Hanglage perfekt aus, um verschiedene Ebenen und Rückzugsorte im Außenbereich zu schaffen. Der Poolbereich, verbunden mit der Terrasse des Untergeschosses, bildet den idealen Ort zum Entspannen und Genießen.
Nutzen Sie diese einzigartige Möglichkeit, in einer modernen und luxuriösen Umgebung zu leben, die sowohl durch ihre Architektur als auch durch die hochwertige Ausstattung überzeugt. Hier können Sie Ihre Wohnträume in die Realität umsetzen!
Euer Meisterstück: Luxusvilla mit Panoramablick, Pool und Dachterrasse!
72768 Reutlingen
Die vollständige Adresse der Immobilie erhalten Sie vom Anbieter.
Auf Karte anzeigen
Die vollständige Adresse der Immobilie erhalten Sie vom Anbieter.
Finanzierungszertifikat
In nur zwei Minuten zu Ihrem persönlichen Finanzierungszertifkat.
Infos
| Vermarktungsart | Kaufen |
|---|---|
| Grundstücksfläche | 646 m2 |
Kosten
| Miete pro Jahr |
620.000 € |
|---|---|
| Provision |
4,76 % inkl. MwSt. des beurkundeten Kaufpreises |
Finanzierungsrechner:
Kaufpreis:
600.000 €
Eigenkapital:
600.000 €
Monatliche Rate
0 €
Effektiver Jahreszins
0 %
Sollzinsbindung
10 Jahre
Beschreibung des Objekts
Lage
Das Grundstück dieses exklusiven Neubauprojekts ist in der Planung bis ins kleinste Detail durchdacht und wird die leichte Hanglage optimal nutzbar machen. Hier wird hier eine harmonische Verbindung zwischen Natur und Architektur entstehen. Die geplanten Terrassenflächen werden großzügig angelegt, um weite Ausblicke zu bieten und gleichzeitig vielseitige Nutzungsmöglichkeiten zu schaffen – sei es für gesellige Abende, entspannte Sonnenstunden oder als privater Rückzugsort. Die Gartenanlage wird mit Liebe zum Detail gestaltet und wird in Kombination mit dem luxuriös geplanten Poolbereich das Grundstück in eine echte Wohlfühloase verwandeln.
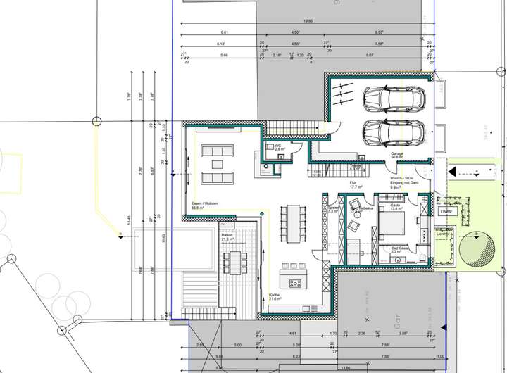
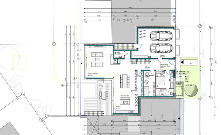
Die Doppelgarage, die im Erdgeschoss integriert ist, wird nach den Planungen ausreichend Platz für zwei Fahrzeuge bieten und einen direkten Zugang zum Haus ermöglichen – ein Vorteil, der besonders an regnerischen Tagen geschätzt wird.
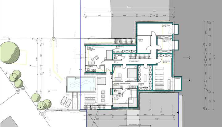
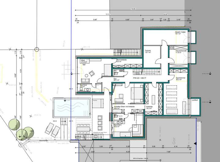
Ein besonderes Highlight in der Planung ist der rund 30 m² große Sport- oder Wellnessbereich, der im Untergeschoss entstehen soll. Dieser Raum wird durch einen Lichthof mit Tageslicht versorgt und kann vielseitig genutzt werden – ob als Fitnessstudio, Yoga- oder Meditationsraum oder als private Wellnessoase mit Sauna.
Insgesamt ist die Außenanlage dieses Projekts so konzipiert, dass sie nach Fertigstellung höchsten Ansprüchen gerecht wird und flexible Nutzungsmöglichkeiten bietet. Es wird großen Wert darauf gelegt, dass alle Bereiche sowohl funktional als auch ästhetisch ansprechend gestaltet werden und das Grundstück in ein luxuriöses, modernes Zuhause verwandeln.
Sonstige Angaben
Der Angebotspreis bezieht sich auf das Grundstück samt genehmigter Planung zzgl. Abriss des Bestandsgebäudes und Neubaukosten.
Die von uns präsentierten Objektangaben werden nicht eigenständig ermittelt; wir übernehmen keine Gewähr für Richtigkeit oder Vollständigkeit. Dieses Exposé dient ausschließlich Ihrer persönlichen Information. Die Weitergabe an Dritte bedarf unserer Zustimmung und entbindet nicht von unserem Provisionsanspruch. Alle Gespräche über die angebotenen Immobilien erfolgen ausschließlich über unser Büro.
Zum Zwecke einer besseren Visualisierung wurden die Bildaufnahmen virtuell erstellt und dienen nur als Anhaltspunkt. Diese Visualisierungen sind unverbindlich und ohne Gewähr.
Bei Zuwiderhandlung behalten wir uns das Recht vor, Schadenersatz bis zur Höhe der Provisionsansprüche geltend zu machen. Ein Zwischenverkauf der Immobilien ist möglich.
Vielen Dank für Ihr Verständnis. Bei Fragen stehen wir Ihnen gerne zur Verfügung.
Grundriss
Grundriss Hanggeschoss
>
>
Grundriss Erdgeschoss
>
>
Grundriss Dachgeschoss
>
>