***HerzensRaum*** Ein Zuhause, das verbindet
HerzensRaum ist ein romantisches Häuschen voller Geborgenheit – ein Ort, an dem Herz und Seele zur Ruhe kommen dürfen. Der große, ebene Garten ist ein kleines Paradies: hier summt das Leben, Kinder spielen barfuß im Gras, und der Blick schweift über das satte Grün. Ein Platz, der Leichtigkeit schenkt.
Das Haus bietet auf zwei Etagen vielfältige Möglichkeiten. Aktuell wird es als Einfamilienhaus genutzt und schenkt einer mehrköpfigen Familie reichlich Platz zum Leben und Wohlfühlen. Doch auch ein Mehrgenerationenkonzept lässt sich hier wunderbar umsetzen: Im oberen Geschoss sind bereits Küchen- und Badezimmeranschlüsse vorhanden, sodass zwei getrennte Einheiten mit wenig Aufwand realisierbar wären.
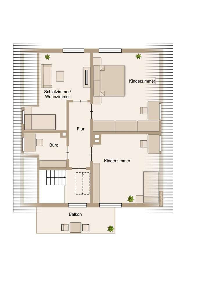
Oben befinden sich drei gemütliche Schlaf- bzw. Kinderzimmer sowie ein kleines Zimmer mit Fenster – ideal als Homeoffice oder kreativer Rückzugsort. Vom Balkon aus eröffnet sich ein herrlicher Blick ins Tal – perfekt für ruhige Momente mit Weitblick. Eine Zwischentür im Flur sorgt zudem für angenehme Ruhe und Lärmschutz zwischen den Etagen.
Im Erdgeschoss empfängt Sie eine großzügige Wohn-Essküche, in der auch der Esstisch seinen Platz findet. Ein behagliches Wohnzimmer, ein weiteres Zimmer sowie ein helles Tageslichtbad runden das Raumangebot ab. Direkt am Eingang liegt das praktische Gäste-WC – durchdacht und alltagstauglich.
Auch das Auto findet hier seinen sicheren Platz: Die im Haus integrierte Garage öffnet sich bequem per Knopfdruck – wohlbehütet und trocken parkt man direkt im eigenen Zuhause.
Das Grundstück selbst bietet zudem noch Potenzial für die Zukunft: Es ist groß genug, um möglicherweise ein weiteres Gebäude zu realisieren – Platz für neue Ideen oder zusätzliche Wohnfläche.
***HerzensRaum*** ist ein Haus, das Platz für Nähe und Freiheit zugleich schenkt – und Raum für Ihre Herzensgeschichten.
***HerzensRaum*** Romantisches Haus trifft vielseitige Möglichkeiten. Provisionsfrei für Kaufen
35638 Leun
Die vollständige Adresse der Immobilie erhalten Sie vom Anbieter.
Auf Karte anzeigen
Die vollständige Adresse der Immobilie erhalten Sie vom Anbieter.
Finanzierungszertifikat
In nur zwei Minuten zu Ihrem persönlichen Finanzierungszertifkat.
Infos
| Haustyp | Einfamilienhaus |
|---|---|
| Etagenzahl | 2 |
| Wohnfläche ca. | 145 m2 |
| Grundstücksfläche | 818 m2 |
| Zimmer | 5 |
| Schlafzimmer | 4 |
| Badezimmer | 1 |
| Garage/Stellplatz | Garage |
| Anzahl Garage/Stellplatz | 1 |
Kosten
| Kaufpreis |
268.000 € |
|---|---|
| Provision | Nein |
Finanzierungsrechner:
Kaufpreis:
600.000 €
Eigenkapital:
600.000 €
Monatliche Rate
0 €
Effektiver Jahreszins
0 %
Sollzinsbindung
10 Jahre
Bausubstanz & Energieausweis
| Baujahr | 1966 |
|---|---|
| Heizungsart | Zentralheizung |
| Wesentliche Energieträger | Öl |
| Energieausweis | liegt vor |
| Energieausweistyp | Bedarfsausweis |
| Energieverbrauchskennwert | 247,8 kWh/(m²*a) |
| Energieeffizienzklasse | H |
247,8
kWh/(m²*a)
Energieeffizienzklasse H
- A+
- A
- B
- C
- D
- E
- F
- G
- H
- 0
- 25
- 50
- 75
- 100
- 125
- 150
- 175
- 200
- 225
- >250
Beschreibung des Objekts
Ausstattung
Keller mit Garage und elektrischem Garagentor.
Erdgeschoss
Windfang
Gäste-WC
Flur
Ess- bzw. zusätzliches Schlaf-/Kinderzimmer oder Büro
Wohnzimmer
Wohnküche mit Einbauküche
Badezimmer
Treppenhaus
Obergeschoss
3 Kinder- bzw. Schlafzimmer, eines davon mit Küchenanschlüssen
Zwei Gauben zur Erweiterung der Wohnfläche
kleines Zimmer, ideal als Home office oder Kreativraum mit Badezimmeranschlüssen
Flur mit Tür zum Treppenhaus
Balkon
Dachboden (nicht ausbaufähig)
Das Dach wurde vor wenigen Jahren mit lasierten Ziegeln neu eingedeckt.
Großer, ebenerdiger Garten. Komplett eingezäunt.
Die Ölzentralheizung läuft noch einwandfrei und darf noch betrieben werden, ist aber schon in die Jahre gekommen. Hier ist gewiss ein Austausch ratsam.
Lage
Schon alleine die Fahrt zu Ihrem Haus weckt Urlaubsgefühle und birgt Vorfreude.
Leun-Stockhausen ist ein ruhiges Dorf im Lahn-Dill-Kreis in Hessen und von wunderschöner Landschaft umgeben. Die Lage von Leun-Stockhausen ist besonders idyllisch, da es von sanften Hügeln, dichten Wäldern und grünen Wiesen umgeben ist. Das Dorf selbst hat einen charmanten, ländlichen Charakter mit traditionellen Fachwerkhäusern und gepflegten Gärten. Es ist ein friedlicher Ort, ideal für Naturliebhaber und diejenigen, die dem hektischen Stadtleben entfliehen möchten. Trotz seiner Abgeschiedenheit ist Leun-Stockhausen gut mit den umliegenden Städten verbunden und bietet eine gute Anbindung an die Autobahn A45 über die B49 und öffentliche Verkehrsmittel.
In der Nähe gibt es auch verschiedene Freizeitmöglichkeiten wie Wanderwege, Radwege und Seen, die zum Entspannen und Erholen einladen. Insgesamt bietet Leun-Stockhausen eine angenehme und naturnahe Lebensumgebung für seine Einwohner.
Leun-Stockhausen verfügt über eine solide Infrastruktur und gute Verkehrsanbindungen. Das Dorf ist mit einer Straßeninfrastruktur gut erschlossen und über die Autobahn A45 und Bundesstraßen leicht erreichbar. Öffentliche Verkehrsmittel wie Busse gewährleisten eine regelmäßige Anbindung an umliegende Städte und Gemeinden. Es gibt sogar eine Zuganbindung.
Das nächstgelegene größere Verkehrszentrum ist Wetzlar, das sowohl mit dem Auto als auch mit öffentlichen Verkehrsmitteln bequem zu erreichen ist. In Leun, wenige Minuten entfernt, gibt es Geschäfte, Supermärkte und Dienstleistungen für den täglichen Bedarf. Bildungseinrichtungen wie Schulen und Kindergärten sind ebenfalls vorhanden. Das medizinische Versorgungsnetz umfasst Arztpraxen und Apotheken. Für Freizeitaktivitäten gibt es Sporteinrichtungen, Vereine, Spielplätze und vieles mehr. Insgesamt bietet Leun-Stockhausen seinen Bewohnern eine gute Infrastruktur und die Möglichkeit, die umliegenden Städte und Einrichtungen bequem zu erreiche
Sonstige Angaben
***Dieses Haus wird provisionsfrei für die Käufer vermarktet, was bedeutet, dass der Service von AW Immobilienmakler für Sie als Käufer:in komplett kostenfrei erfolgt. Bitte füllen Sie das Kontaktformular im Portal aus, ein Downloadlink für das Exposé wird Ihnen automatisiert zugesendet. Nach dem Download erhalten Sie von uns eine Email über die nächsten Schritte.
Bitte stellen Sie individuelle Fragen direkt an anja.wolff@aw-immobilienmakler.de. Ihre persönlichen Fragen und Texte über dieses Portal werden leider systembedingt nicht an AW Immobiliemmakler übertragen.
Wir sind gerne für Sie da.***
Geldwäsche: Als Immobilienmaklerunternehmen ist AW Immobilienmakler nach § 2 Abs. 1 Nr. 14 und § 11 Abs. 1, 2 Geldwäschegesetz (GwG) dazu verpflichtet, bei der Begründung einer Geschäftsbeziehung die Identität des Vertragspartners festzustellen und zu überprüfen, bzw. sobald ein ernsthaftes Interesse an der Durchführung des Immobilienkaufvertrages besteht. Hierzu ist es erforderlich, dass wir nach § 11 Abs. 4 GwG die relevanten Daten Ihres Personalausweises festhalten (wenn Sie als natürliche Person handeln) – beispielsweise mittels einer Kopie. Bei einer juristischen Person benötigen wir eine Kopie des Handelsregisterauszugs, aus welchem der wirtschaftlich Berechtigte hervorgeht. Das Geldwäschegesetz sieht vor, dass der Makler die Kopien bzw. Unterlagen fünf Jahre aufbewahren muss. Als unser Vertragspartner haben Sie auch eine Mitwirkungspflicht nach § 11 Abs. 6 GwG.
Haftung: Wir weisen darauf hin, dass die von uns weitergegebenen Objektinformationen, Unterlagen, Pläne etc. vom Verkäufer bzw. Vermieter stammen. Eine Haftung für die Richtigkeit oder Vollständigkeit der Angaben übernehmen wir daher nicht. Es obliegt daher unseren Kunden, die darin enthaltenen Objektinformationen und Angaben auf ihre Richtigkeit hin zu überprüfen. Alle Immobilienangebote sind freibleibend und vorbehaltlich Irrtümer, Zwischenverkauf- und Vermietung oder sonstiger Zwischenverwertung.
Grundriss
Leben im unteren Geschoss
>
>
Schlafen und Arbeiten im obere
>
>
Adresse
35638 Leun
Interessante Orte
Preis- und Lageinformationen
Preistrend für Bestandsimmobilien in Leun