Sie haben hier die Gelegenheit eine moderne und hochwertige Doppelhaushälfte im schönen Elisabethfehn anzumieten.
In allen Räumen sind dreifachverglaste hochwertige Fenster mit elektrischen Rollläden verbaut.
Im Erdgeschoss befindet sich ein großzügiger heller Raum mit der Teilung in einen Koch-/Ess- und Wohnbereich.
Ein wahres Schmuckstück ist die Einbauküche, dessen Planungsunterlagen Ihnen bei einer Besichtigung gerne vorgelegt werden.
Außerdem befinden sich im Erdgeschoss ein Hauswirtschaftsraum und ein Gäste-WC.
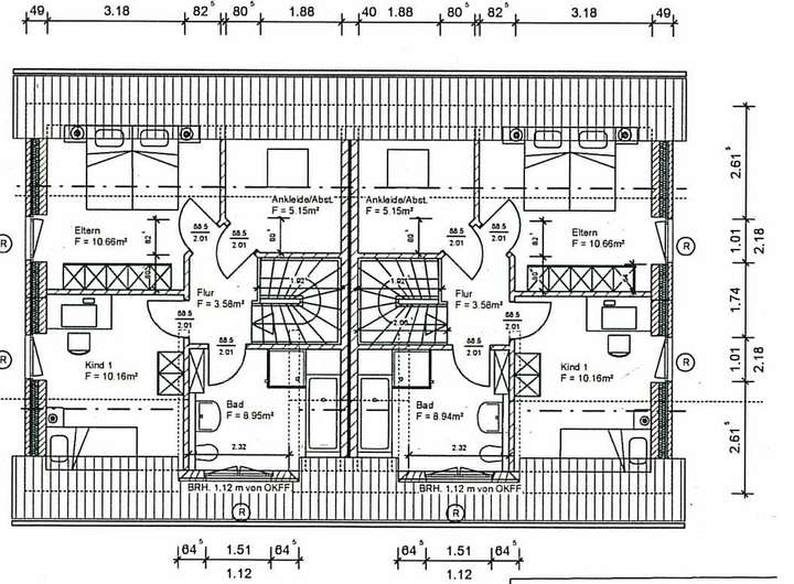
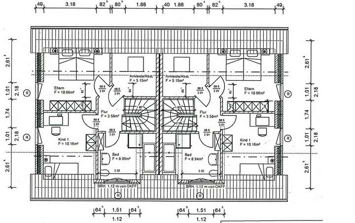
Im Dachgeschoss befinden sich insgesamt zwei Schlafräume sowie ein separater Ankleideraum.
Vervollständigt wird dieses Haus durch ein Vollbad im Obergeschoss, mit ebenerdiger Dusche und einer Badewanne.
Im Außenbereich gibt es eine Terrasse zum Entspannen.
Ebenso gibt es auch ein Carport mit praktischem Geräteschuppen für Fahrräder, Mülltonnen und Gartengeräte.
            
        Erstbezug eines hochwertiges Neubaus in Elisabethfehn/ EBK/ Caport/ Garten
                     26676 Barßel                            
Die vollständige Adresse der Immobilie erhalten Sie vom Anbieter.
        
            
            Auf Karte anzeigen
        
        
    Die vollständige Adresse der Immobilie erhalten Sie vom Anbieter.
Infos
| Haustyp | Doppelhaushaelfte | 
|---|---|
| Wohnfläche ca. | 85 m2 | 
| Grundstücksfläche | 437 m2 | 
| Bezugsfrei ab | nach Absprache | 
| Zimmer | 3 | 
| Schlafzimmer | 2 | 
| Badezimmer | 1 | 
| Garage/Stellplatz | Carport | 
Kosten
| Kaltmiete | 
                985 € | 
        
|---|---|
| Nebenkosten | + 160 € | 
| Heizkosten | keine Angabe | 
| Gesamtmiete | 1.145 € | 
| Kaution o. Genossenschaftsanteile | 1970 EUR | 
Weiter mieten oder doch kaufen?
        
        
            Wer in Miete wohnt, überweist dem Vermieter im Laufe der Jahre hohe Summen, die sich
            auch in die eigenen vier Wände investieren lassen könnten.
        
    
    
    
Bausubstanz & Energieausweis
| Baujahr | unbekannt | 
|---|---|
| Objektzustand | Erstbezug | 
| Heizungsart | Zentralheizung | 
| Energieausweis | liegt zur Besichtigung vor | 
Beschreibung des Objekts
Ausstattung
                Terrasse, Garten, Einbauküche
               
        Lage
                Dieser schöne Neubau befindet sich in einer ruhigen Siedlungsstraße in Elisabethfehn.
Elisabethfehn ist ein Teil der Gemeinde Barßel im Landkreis Cloppenburg.
In direkter Nähe im Gemeindeteil Elisabethfehn befinden sich eine Grundschule und ein Kindergarten sowie ein Anschluss an die öffentlichen Verkehrsmittel.
Durch die Nähe zu den Ortschaften Barßel und Ramsloh wird Ihnen hier eine tolle Infrastruktur mit ärztlicher Versorgung, Einkaufsmöglichkeiten und weiterbildenden Schulen (wie einer IGS, einer Haupt- und Realschule sowie auch einem Gymnasium) geboten.
Infrastruktur (im Umkreis von 5 km):
Allgemeinmediziner, Kindergarten, Grundschule, Öffentliche Verkehrsmittel
                
        Sonstige Angaben
                Heizungsart: Zentralheizung
Energieausweis nicht vorhanden
In den hochgeladenen Dokumenten dieser Anzeige finden Sie ein Formular für die Selbstauskunft. Bitte übermitteln Sie uns diese, um die weiteren Schritte zu vereinfachen und zu verkürzen.
Makleranfragen nicht erwünscht. Nach § 7 UWG sind unaufgeforderte Kontaktaufnahmen durch Makler ohne ausdrückliche Einwilligung des Empfängers verboten!
ohne-makler (OM) ist weder Anbieter noch Vermittler der Immobilie. OM betreibt eine Plattform für Immobilieneigentümer, die unter anderem die gleichzeitige Veröffentlichung einzelner Inserate auf mehreren Immobilienportalen ermöglicht. Die Inhalte dieser Inserate werden ausschließlich von Dritten verantwortet. Für die Richtigkeit, Vollständigkeit oder Rechtmäßigkeit der Angaben übernimmt OM keine Haftung. Hinweise auf mögliche Rechtsverstöße können jederzeit gemeldet werden und werden nach Prüfung umgehend bearbeitet.
           
        Weitere Dokumente
MieterselbstauskunftGrundriss
                                    Grundriss EG
                                                                            
                                        >
                                                                    
                                                                                                                
                                        >
                                                                    
                                    Grundriss OG
                                                                            
                                        >
                                                                    
                                                                        
                                        >
                                                                    Adresse
26676 Barßel
Interessante Orte
Preis- und Lageinformationen
                Preistrend für Bestandsimmobilien in Barßel