Dieses im Jahr ca. 1973 in massiver Bauweise errichtete Einfamilienhaus bietet auf ca. 170 m² Wohnfläche und einem ca. 730 m² großen Grundstück ein Zuhause mit viel Platz, Komfort und Ruhe. Die Immobilie befindet sich in einer besonders idyllischen Lage am Feldrand und verbindet erholsames Wohnen im Grünen mit einer guten Anbindung an Einkaufsmöglichkeiten, Schulen und öffentliche Verkehrsmittel.
Die Raumaufteilung ist durchdacht und funktional gestaltet. Im Erdgeschoss erwartet Sie ein helles Wohnzimmer, von dem aus Sie die Terrasse und den Garten erreichen. Die offene Küche verfügt über einen angrenzenden Essbereich und bietet Zugang zu einer weiteren Terrasse. Ein Zimmer in ruhiger Gartenlage und ein weiteres Zimmer, das sich perfekt als Kinder-, Gäste- oder Arbeitszimmer eignet, sowie ein Tageslichtbad runden das Erdgeschoss ab.
Im Dachgeschoss stehen Ihnen vier weitere Zimmer zur Verfügung, von denen zwei direkten Zugang zum Balkon bieten. Ergänzt wird die Etage durch ein helles Tageslichtbad sowie den Zugang zum Dachboden, der weiteren Stauraum bereithält.
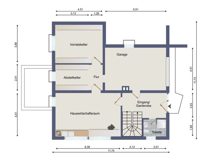
Das vollunterkellerte Haus verfügt über Abstell- und Hobbyräume sowie die integrierte Garage und ein Gäste-WC.
Der gepflegte Garten bietet viele Möglichkeiten für Freizeit, Spiel und Entspannung und macht das Grundstück zu einem idealen Ort für Familien und Naturliebhaber.
Dieses charmante Einfamilienhaus überzeugt durch seine großzügige Gestaltung, die sonnigen Außenbereiche und die herrlich ruhige Lage – ein Zuhause, in dem Sie sich wohlfühlen werden.
Ruhige Feldrandlage! Großzügiges Einfamilienhaus mit Garten in Pfinztal-Söllingen
76327 Pfinztal
Die vollständige Adresse der Immobilie erhalten Sie vom Anbieter.
Auf Karte anzeigen
Die vollständige Adresse der Immobilie erhalten Sie vom Anbieter.
Finanzierungszertifikat
In nur zwei Minuten zu Ihrem persönlichen Finanzierungszertifkat.
Infos
| Haustyp | Einfamilienhaus |
|---|---|
| Wohnfläche ca. | 170 m2 |
| Grundstücksfläche | 730 m2 |
| Bezugsfrei ab | Sofort verfügbar. |
| Zimmer | 7 |
| Badezimmer | 3 |
| Garage/Stellplatz | Garage |
| Anzahl Garage/Stellplatz | 1 |
Kosten
| Kaufpreis |
687.000 € |
|---|---|
| Provision |
3,57 % Käuferprovision inkl. 19 % MwSt. |
Finanzierungsrechner:
Kaufpreis:
600.000 €
Eigenkapital:
600.000 €
Monatliche Rate
0 €
Effektiver Jahreszins
0 %
Sollzinsbindung
10 Jahre
Bausubstanz & Energieausweis
| Baujahr | 1973 |
|---|---|
| Objektzustand | Gepflegt |
| Heizungsart | Nachtspeicherofen |
| Wesentliche Energieträger | Strom |
| Energieausweis | liegt vor |
| Energieausweistyp | Bedarfsausweis |
| Energieverbrauchskennwert | 134,3 kWh/(m²*a) |
| Energieeffizienzklasse | E |
134,3
kWh/(m²*a)
Energieeffizienzklasse E
- A+
- A
- B
- C
- D
- E
- F
- G
- H
- 0
- 25
- 50
- 75
- 100
- 125
- 150
- 175
- 200
- 225
- >250
Beschreibung des Objekts
Ausstattung
Die Ausstattung entspricht dem Standard des Baujahres und bietet Ihnen:
-Massivbauweise, teilweise Eternit-Fassadenplatten
-Satteldach mit Kriechspeicher, gedämmt und neu eingedeckt
-Isolierverglaste Kunststofffenster (weiß) ab 2022, Rollläden
-Natursteintreppe auf Vierkantstahlrohrkonstruktion
-Nachtspeicherheizung, Warmwasseraufbereitung über drei Boiler
-Photovoltaik-Anlage mit Stromspeicher (ca. 2023)
-UG: Gäste-WC mit Dusche und Handwaschbecken
-EG: Tageslichtbad mit Waschtisch, Wanne, Dusche, WC und Bidet
-DG: Tageslichtbad mit Waschtisch, Wanne und WC
-Eingangstüre als Holzelement, Innentüren als Holztüren
-Fliesen, Teppichboden, glatte Kunststoffbeläge, Holzboden (Schiffsboden natur)
-Tapeten, Rauhputz, teilweise Holzdecken
-Einbauküche, offener Kamin
-Garage im Haus integriert (elektrisches Tor)
-Einfriedung, Ziergarten mit Rasen und Buschbepflanzung
Die obige Ausstattungsbeschreibung bezieht sich auf dominierende Merkmale.
Lage
Die Immobilie befindet sich in schöner Ortsrandlage von Söllingen. Genießen Sie die Ruhe und Nähe zur Natur.
Söllingen bietet seinen 5.500 Einwohnern eine gute Infrastruktur. Alle Geschäfte für den täglichen Bedarf, Ärzte, Apotheken, Kindergärten, Grundschule sowie Freizeitmöglichkeiten sind vorhanden. Die weiterführenden Schulen befinden sich im Nachbarort Berghausen. Söllingen verfügt über einen Stadtbahnanschluss. Weitere Informationen erhalten Sie im Internet unter https://www.pfinztal.de.
Sonstige Angaben
Angaben und Haftungsvorbehalt: Alle Angaben in diesem Exposé wurden mit großer Sorgfalt zusammengestellt und auf ihre Korrektheit überprüft. Eine Haftung für Irrtümer (z. B. bei Flächen- / Maßangaben) wird dennoch ausgeschlossen. Im Exposé enthaltene Illustrationen und Fotos sind teilweise als Vorschläge, Entwürfe und Muster zu verstehen und nicht als wesentliche Elemente im Sinne der Baubeschreibung. Sie repräsentieren den Planungsstand zum Zeitpunkt der Drucklegung. Grundrissillustrationen können z. B. Sonderausstattungen enthalten. Maßgebend für Erwerber ist die Baubeschreibung sowie die Objektbeschreibung in der Teilungserklärung.
Gender-Hinweis: Die in diesem Exposé, auf unserer Webseite sowie in unseren Social Media-Kanälen gewählte männliche Form bezieht sich stets gleichermaßen auf weibliche, männliche und diverse Personen. Auf geschlechterspezifische Schreibweise und Mehrfachbezeichnungen wird ausschließlich zum Zweck der besseren Lesbarkeit verzichtet. Sämtliche personenbezogene Bezeichnungen in all unseren Publikationen sind somit geschlechtsneutral zu verstehen.
Grundriss
Untergeschoss
>
>
Erdgeschoss
>
>
Dachgeschoss
>
>
Adresse
76327 Pfinztal
Interessante Orte
Preis- und Lageinformationen
Preistrend für Bestandsimmobilien in Pfinztal