Willkommen in deinem zukünftigen Zuhause in Hannover - ein Einfamilienhaus, das nicht nur durch seine Architektur, sondern auch durch seine individuelle Anpassbarkeit begeistert. Mit einer großzügigen Wohnfläche von 145,38 m² und einem durchdachten Grundriss, der 6 Zimmer, darunter 3 Schlafzimmer und ein modernes Badezimmer umfasst, bietet dieses Haus Platz für die ganze Familie. Das klassische Satteldach mit einer Neigung von 38 Grad verleiht dem Haus einen zeitlosen Charme, während die bodentiefen Fenster für lichtdurchflutete Räume sorgen und einen direkten Blick ins Grüne ermöglichen. Die Erker erweitern den Wohnraum und schaffen eine einladende Atmosphäre, die zum Verweilen einlädt.
Doch dieses Fertighaus ist mehr als nur ein schickes Design - es ist ein Ort, der deine Wünsche und Vorstellungen in den Mittelpunkt stellt. Die Traumküche von Living Haus wird speziell nach deinem Grundriss geplant, ausgestattet mit modernster Technik und cleveren Stauraumlösungen, sodass du sofort nach dem Einzug dein kulinarisches Talent entfalten kannst. Das Living Haus Bau-Cockpit ermöglicht dir die vollständige Kontrolle über dein Bauprojekt, alles digital und unkompliziert an einem Ort. Mit I-KON, dem intelligenten Bauen, wird dein Zuhause nicht nur energieeffizient, sondern auch umweltfreundlich gestaltet, sodass du nachhaltig wohnen kannst.
Finanzielle Sicherheit bietet dir das Zuhause-Darlehen, das dir bis zu 250.000 EUR zu einem besonders günstigen Zinssatz ermöglicht. Das Zuhause-Paket sorgt dafür, dass dein Haus mit hochwertigen Materialien und modernen Ausstattungen geliefert wird, während das DIY-Ausbau-Coaching dir die Möglichkeit gibt, selbst Hand anzulegen und deinen Innenausbau kreativ zu gestalten. Das durchdachte Gesamtkonzept von Living Haus stellt sicher, dass dein Traumhaus nicht nur eine Vision bleibt, sondern Wirklichkeit wird.
Dein individuelles Fertighaus in Hannover - Wohnen nach deinen Wünschen
30539 Hannover
Die vollständige Adresse der Immobilie erhalten Sie vom Anbieter.
Auf Karte anzeigen
Die vollständige Adresse der Immobilie erhalten Sie vom Anbieter.
Finanzierungszertifikat
In nur zwei Minuten zu Ihrem persönlichen Finanzierungszertifkat.
Infos
| Haustyp | Einfamilienhaus |
|---|---|
| Etagenzahl | 2 |
| Wohnfläche ca. | 145 m2 |
| Nutzfläche | 145,38 m2 |
| Grundstücksfläche | 580 m2 |
| Zimmer | 6 |
| Schlafzimmer | 3 |
| Badezimmer | 1 |
Kosten
| Kaufpreis |
1.197.233 € |
|---|
Finanzierungsrechner:
Kaufpreis:
600.000 €
Eigenkapital:
600.000 €
Monatliche Rate
0 €
Effektiver Jahreszins
0 %
Sollzinsbindung
10 Jahre
Bausubstanz & Energieausweis
| Baujahr | 2026 |
|---|---|
| Bauphase | Haus in Planung (projektiert) |
| Qualität der Austattung | Gehoben |
| Energieausweis | liegt vor |
| Energieausweistyp | Bedarfsausweis |
| Energieverbrauchskennwert | 18,0 kWh/(m²*a) |
| Energieeffizienzklasse | A+ |
18,0
kWh/(m²*a)
Energieeffizienzklasse A+
- A+
- A
- B
- C
- D
- E
- F
- G
- H
- 0
- 25
- 50
- 75
- 100
- 125
- 150
- 175
- 200
- 225
- >250
Beschreibung des Objekts
Ausstattung
Dein individuelles Fertighaus wird mit einer Vielzahl von hochwertigen Ausstattungsmerkmalen versehen, die keine Wünsche offenlassen. Die Grundausstattung umfasst moderne Böden, edle Türen und stilvolle Sanitäranlagen, alles optimal aufeinander abgestimmt und fix und fertig geliefert. Die hochwertige Traumküche wird exakt auf deinen Grundriss angepasst und kommt mit modernster Technik. Das Zuhause-Paket sichert dir alle notwendigen Innenausbaumaterialien, inklusive Fliesen für das gesamte Erdgeschoss sowie bodengleiche Duschen mit Echtglasabtrennung. Das DIY-Ausbau-Coaching ermöglicht es dir, den Innenausbau selbst zu gestalten, unterstützt von Experten, die dir praxisnahe Tipps geben. Du hast die Möglichkeit, Baustrom- und Bauwasseranschlüsse über Living Haus organisieren zu lassen. Dank des hohen Vorfertigungsgrades wird der Bauprozess effizient gestaltet, während aluminiumgeschäumte Rollläden für optimalen Hitzeschutz und Wärmedämmung sorgen. Dein zukünftiges Zuhause ist somit nicht nur stylisch, sondern auch funktional - ein echtes "Wie ich es will Fertighaus".
Lage
Hannover, die Hauptstadt Niedersachsens, bietet dir ein vielfältiges Umfeld für dein neues Zuhause. Hier findest du zahlreiche Schulen, wie die Wilhelm-Gymnasium und die Grundschule an der Nordstraße, die für eine gute Bildung deiner Kinder sorgen. Kindergärten sind in unmittelbarer Nähe und die Stadt ist bekannt für ihre familienfreundliche Atmosphäre. Supermärkte wie Edeka und Rewe sind schnell erreichbar, sodass du deinen Wocheneinkauf bequem erledigen kannst. Für medizinische Versorgung sorgen zahlreiche Ärzte und Apotheken in der Umgebung.
Die Freizeitangebote sind ebenfalls vielfältig: Der Maschsee lädt zu entspannenden Spaziergängen und Bootsfahrten ein, während der Stadtwald Eilenriede ein beliebtes Naherholungsgebiet für Naturliebhaber ist. Für Pendler ist die Anbindung an den öffentlichen Nahverkehr optimal, mit Straßenbahnen und Bussen, die regelmäßig verkehren. Außerdem sind die Autobahn A2 und A7 leicht zu erreichen, was dir eine schnelle Verbindung in die umliegenden Städte und Regionen ermöglicht. Hannover bietet somit das perfekte Umfeld für Familien, Naturliebhaber und Berufspendler, um ein harmonisches Leben in deinem neuen, individuell gestalteten Zuhause zu führen.
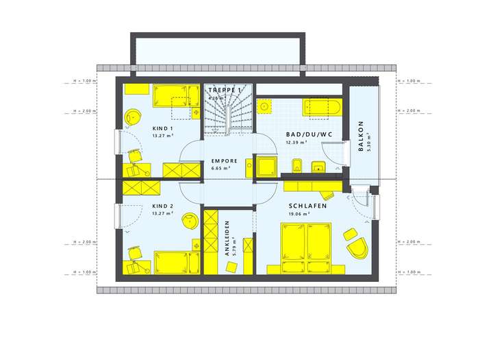
Grundriss
Gestaltungsbeispiel DG
>
>
Gestaltungsbeispiel EG
>
>
Adresse
30539 Hannover
Interessante Orte
Preis- und Lageinformationen
Preistrend für Bestandsimmobilien in Bemerode