Das Grundstück ist mit im Kaufpreis enthalten!
In Münchsmünster entstehen zwei moderne Doppelhaushälften in nachhaltiger Holzständerbauweise. Mit einer Wohnfläche von 140 m² bietet jedes Haus vier großzügige Zimmer und ein separates Gäste-WC. Aktuell haben Sie die Möglichkeit, die Raumaufteilung nach Ihren Wünschen zu gestalten.
Der Verkauf erfolgt inklusive Grundstück, sodass Sie das Haus schlüsselfertig übernehmen können. Profitieren Sie von einer Festpreisgarantie nach individueller Ausstattungswahl. Gerne vereinbaren wir einen Termin im Musterhaus unseres Partners, damit Sie sich von Qualität und Ausstattung überzeugen können.
Die Objektbilder zeigen aufpreispflichtige Zusatzausstattung (zB Wintergarten).
Lassen Sie sich diese Gelegenheit nicht entgehen! Kontaktieren Sie uns noch heute, um weitere Informationen zu erhalten oder einen Besichtigungstermin zu vereinbaren.
Ihr Traumhaus in Münchsmünster
85126 Münchsmünster
Die vollständige Adresse der Immobilie erhalten Sie vom Anbieter.
Auf Karte anzeigen
Die vollständige Adresse der Immobilie erhalten Sie vom Anbieter.
Finanzierungszertifikat
In nur zwei Minuten zu Ihrem persönlichen Finanzierungszertifkat.
Infos
| Haustyp | Doppelhaushaelfte |
|---|---|
| Etagenzahl | 2 |
| Wohnfläche ca. | 140 m2 |
| Nutzfläche | 10 m2 |
| Grundstücksfläche | 410 m2 |
| Zimmer | 4 |
| Schlafzimmer | 3 |
| Badezimmer | 2 |
| Garage/Stellplatz | Garage |
| Anzahl Garage/Stellplatz | 1 |
Kosten
| Kaufpreis |
499.000 € |
|---|---|
| Provision |
1,79% |
Finanzierungsrechner:
Kaufpreis:
600.000 €
Eigenkapital:
600.000 €
Monatliche Rate
0 €
Effektiver Jahreszins
0 %
Sollzinsbindung
10 Jahre
Bausubstanz & Energieausweis
| Objektzustand | Erstbezug |
|---|---|
| Qualität der Austattung | Normal |
| Heizungsart | Wärmepumpe |
| Energieausweis | liegt vor |
| Energieausweistyp | Bedarfsausweis |
| Energieverbrauchskennwert | 25,0 kWh/(m²*a) |
| Energieeffizienzklasse | A+ |
25,0
kWh/(m²*a)
Energieeffizienzklasse A+
- A+
- A
- B
- C
- D
- E
- F
- G
- H
- 0
- 25
- 50
- 75
- 100
- 125
- 150
- 175
- 200
- 225
- >250
Beschreibung des Objekts
Ausstattung
* bezugsfertig etwa 10 Monate nach Auftragserteilung
* KfW 40 Standard
* 3-Fach verglaste Fenster
* offene Wohnküche
* moderne Grundrisse
* klimafreundliche und nachhaltige Bauweise
* hochwertige Materialien
* frei planbar
Lage
Münchsmünster ist eine familienfreundliche Gemeinde im Landkreis Pfaffenhofen an der Ilm. Sie profitieren von einer guten Anbindung nach Ingolstadt sowie von Einkaufsmöglichkeiten, Schulen und Freizeitangeboten in direkter Umgebung.
Sonstige Angaben
Alle Angaben sind ohne Gewähr und basieren ausschließlich auf Informationen, die uns von unserem Auftraggeber übermittelt wurden. Wir übernehmen keine Gewähr für die Vollständigkeit, Richtigkeit und Aktualität dieser Angaben. Irrtum und Zwischenverkauf oder Zwischenvermietung vorbehalten. Aufgrund des Geldwäschegesetzes (GwG) sind wir verpflichtet, spätestens bei Kaufinteresse Ihre Personalien zu überprüfen und dies auch nachzuweisen. Bitte haben Sie daher Verständnis, dass wir eine Kopie Ihres Personalausweises anfertigen müssen, sowie sämtliche Daten werden durch uns selbstverständlich streng vertraulich behandelt. Erfüllungsort für alle Verpflichtungen des Kunden ist der Sitz unserer Firma. Ist der Kunde Kaufmann im Sinne des HGB, ist Gerichtsstand der Sitz unserer Firma.
Dieses Exposé ist eine Vorabinformation. Als Rechtsgrundlage gilt allein der notariell abgeschlossene Kaufvertrag.
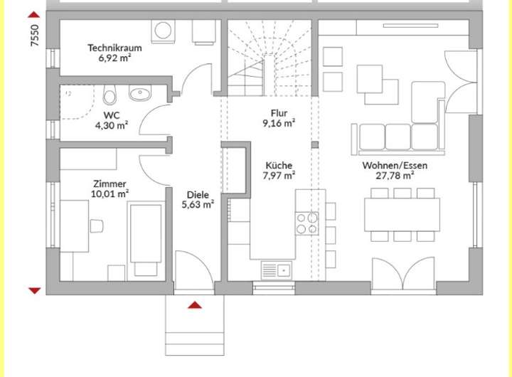
Grundriss
Grundriss EG
>
>
Grundriss OG
>
>
Adresse
85126 Münchsmünster
Interessante Orte
Preis- und Lageinformationen
Preistrend für Bestandsimmobilien in Münchsmünster