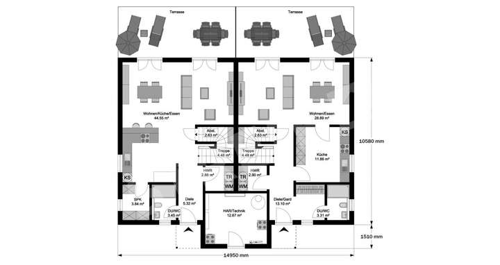
Willkommen in Ihrem neuen Traumhaus, einem modernen Zweifamilienhaus, das ganz nach Ihren Wünschen projektiert wurde. Dieses beeindruckende Objekt in Garbsen Stellingen bietet Ihnen und Ihrer Familie auf 155 m² Wohnfläche und 5 Zimmern ausreichend Platz zum Wohlfühlen. Die außergewöhnliche Raumaufteilung und die zwei Etagen ermöglichen Ihnen ein komfortables Leben, während Sie gleichzeitig die Vorteile eines energieeffizienten KfW 40 Hauses genießen. Die ideale Lösung für Familien und Paare, die Wert auf ein harmonisches Zuhause legen, ohne dabei auf hochwertige Ausstattungen verzichten zu müssen.
Der Preis bezieht sich auf das Grundstück für einen Anteil an der Haushälfte, die Sie gemeinsam kaufen können, mit Freunden zusammen oder der Familie oder eine davon vermieten. Und damit sehr viel Fördermittel sowie Steuervorteile nutzen können.
Sprechen Sie mich direkt unter 0174-6403310 an.
***Zeitlos schön - Zweifamilienhaus als DHH_Zusammen bauen gemeinsam wohnen mit Klinkeraktion ***
30827 Garbsen
Die vollständige Adresse der Immobilie erhalten Sie vom Anbieter.
Auf Karte anzeigen
Die vollständige Adresse der Immobilie erhalten Sie vom Anbieter.
Finanzierungszertifikat
In nur zwei Minuten zu Ihrem persönlichen Finanzierungszertifkat.
Infos
| Haustyp | Mehrfamilienhaus |
|---|---|
| Etagenzahl | 2 |
| Wohnfläche ca. | 160 m2 |
| Nutzfläche | 50 m2 |
| Grundstücksfläche | 515 m2 |
| Bezugsfrei ab | 2026 |
| Zimmer | 10 |
| Schlafzimmer | 3 |
| Badezimmer | 2 |
Kosten
| Kaufpreis |
615.387 € |
|---|---|
| Provision | Nein |
Finanzierungsrechner:
Kaufpreis:
600.000 €
Eigenkapital:
600.000 €
Monatliche Rate
0 €
Effektiver Jahreszins
0 %
Sollzinsbindung
10 Jahre
Bausubstanz & Energieausweis
| Baujahr | 2026 |
|---|---|
| Bauphase | Haus in Planung (projektiert) |
| Qualität der Austattung | Gehoben |
| Heizungsart | Wärmepumpe |
| Energieausweis | liegt zur Besichtigung vor |
Beschreibung des Objekts
Ausstattung
Die gehobene Ausstattung dieses Doppelhauses lässt keine Wünsche offen. Sie profitieren von einer modernen Fußbodenheizung, die mit einer umweltfreundlichen Wärmepumpe betrieben wird - eine nachhaltige Befeuerungsart, die nicht nur Ihre Energiekosten senkt, sondern auch Ihr Zuhause angenehm temperiert. Die Auswahl der Bodenbeläge aus Fliesen und individuellen Wünschen sorgt nicht nur für eine ansprechende Optik, sondern auch für eine einfache Pflege und Langlebigkeit. Die Bäder sind mit einer Dusche, einer Wanne und einem Fenster ausgestattet, und zusätzlich steht Ihnen ein Gäste-WC zur Verfügung, was den Komfort für Ihre Familie und Gäste erhöht.
STREIF-Häuser erfüllen bereits im Standard die Effizienzhaus-Klasse KfW40PLUS.
Die STREIF-Passiv-Haus-Wände, eine effiziente Heiztechnik mit integrierter Wohnraumlüftung und Wärmerückgewinnung garantieren einen geringen Energieverbrauch und ein fantastisches Raumklima, das insbesondere Allergiker aufatmen lässt.
STREIF Leistungen sind MEHR WERT - schon im Grundpreis enthalten!
- 22-monatige Festpreisgarantie
- inkl. individuelle Grundrissgestaltung und Raumaufteilung
- inkl. gedämmte Fundamentplatte
- inkl. Photovoltaikanlage (6,72 kWp) inkl. Batteriespeicher
- inkl. Wärmepumpen-Technologie mit integrierter Lüftungsanlage mit Wärmerückgewinnung
- inkl. Haustür von KERA und Fenster von Porta/Kömmerling
- inkl. Massivholz-Geschosstreppe aus eigener Produktion
- inkl. Sanitärobjekte von Markenherstellern
- inkl. Elektroinstallation
- inkl. Gütesiegel vom TÜV Rheinland- (schadstoffgeprüfte Materialien)
- inkl.. KfW-Berechnungen, Nachweise & Anträge
Was wir Ihnen sonst noch bieten:
Kostenlose Bauberatung inkl. Grundrissplanung
Ermittlung der Gesamt-Investition Ihres Bauvorhabens
Finanzierungs - & Fördermittelberatung
Die hohe Wertigkeit und Langlebigkeit eines STREIF-Energiespar-Hauses wird durch zahlreiche Auszeichnungen, Qualitäts- und Gütesiegel unabhängiger Institute und Verbände dokumentiert.
Der Angebotspreis ist inklusive Grundstück und bezieht sich auf die Standard-Ausbaustufe Fast-Fertig-Plus (Technikfertig inkl. Bäder). Somit wären Ihre Eigenleistungen: Malerarbeiten, Bodenbeläge und die Innentüren. Selbstverständlich können wir Ihr Haus auch schlüsselfertig / bezugsfertig errichten.
Lage
Dieses familienfreundliche Grundstück liegt in einer ruhigen und etablierten Wohngegend im grünen Garbsen Stellingen -. Die Umgebung zeichnet sich durch eine harmonische Nachbarschaft, viel Natur und ein angenehmes Wohnumfeld aus - perfekt für Familien, die Wert auf Lebensqualität und ein sicheres Zuhause legen.
Die weitläufigen Grünflächen und das nahegelegene Naherholungsgebiet laden zu Spaziergängen, Radtouren oder entspannten Nachmittagen im Freien ein - ideal für Kinder und naturverbundene Familien. Spielplätze und Freizeitmöglichkeiten befinden sich ebenfalls in der Umgebung.
Auch die Infrastruktur lässt keine Wünsche offen: Schulen, Kitas, Sportvereine und Einkaufsmöglichkeiten sind schnell erreichbar. Die Anbindung an den öffentlichen Nahverkehr sowie die Nähe zu wichtigen Verkehrsachsen sorgen für eine unkomplizierte Erreichbarkeit der Innenstadt und des Umlands.
Ein idealer Ort, um Wurzeln zu schlagen und der Familie ein Zuhause mit hoher Lebensqualität zu bieten - naturnah, ruhig und dennoch gut angebunden.
Genießen Sie die Vorzüge eines ruhigen Wohnviertels mit einer freundlichen Nachbarschaft, ohne auf die Annehmlichkeiten der Stadt verzichten zu müssen. Das Grundstück bietet Ihnen somit die perfekte Kombination aus Komfort, Natur und hervorragender Infrastruktur - Ihr neues Zuhause wartet auf Sie!
.
Bebauung gemäß Umgebungsbebauung. 2-geschossige Bauweise möglich. Siehe auch die andere Anzeige. Es fällt keine Maklercourtage an
Sonstige Angaben
Jetzt mit Fördermitteln ab 1,57% ins Eigenheim mit Ratenzuschuss.
Sie brauchen mehr Platz.
STREIF Haus - der Pionier der deutschen Fertighausbranche
Die langjährige Firmentradition des Unternehmens reicht bis in das Jahr 1929 zurück. In den 50er und 60er Jahren wurde in Deutschland schnell und viel Wohnraum für Familien benötigt, seitdem konzentrierte sich das Unternehmen auf die Entwicklung und Produktion von Fertighaustypen, die im Werk in großen Stückzahlen hergestellt werden konnten. So kann das Unternehmen auf 90.000 gebaute Hausobjekte zurückblicken und sich zu Recht als Pionier der deutschen Fertighausbranche bezeichnen.
Die neuen Energiesparhäuser - So baut man heute.
Unser Anspruch ist es, in enger Partnerschaft mit unseren Kunden langlebige Häuser zu bauen, mit einer hohen architektonischen Qualität, individuell geplant und dabei energieeffizient und ressourcenschonend. Jedes STREIF-Haus ist einzigartig und wird speziell für jeden Kunden "maßgeschneidert" und gebaut. Passend zu den persönlichen Wünschen, dem vorgegebenen Budget und dem vorhandenen Grundstück planen und bauen wir jedes Haus mit viel Liebe zum Detail.
Grundriss
97664-8193-42-g
>
>
97665-8193-43-g
>
>
97666-8193-41-g
>
>
Adresse
30827 Garbsen
Interessante Orte
Preis- und Lageinformationen
Preistrend für Bestandsimmobilien in Garbsen